Wohnzimmer
Wohnzimmer
Küche
Badzimmer
Schlafzimmer
Kind/Arbeitszimmer
Kind/Arbeitszimmer
Flur
Küche
Badzimmer
Schlafzimmer
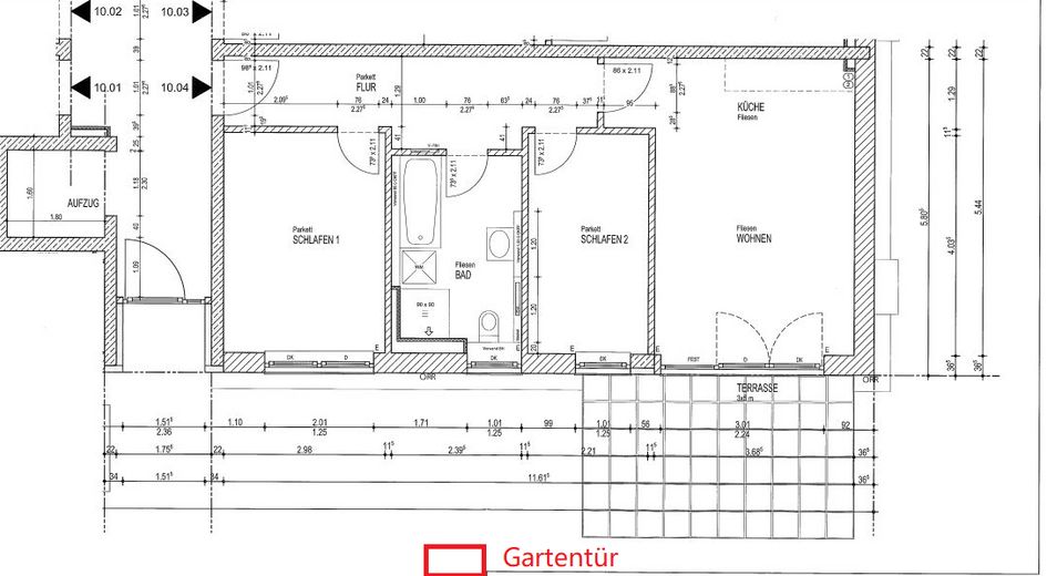
Grundriss
Wohnzimmer

Hellige 3-Zimmer-Gartenwohnung, Neubiberg

Get the full address via contact
85579 Neubiberg – Neubiberg
Bayern
1550 €
Rent without service charge
68 m²
Living Area
3
Rooms
TraumImmo-ID: NK5HBU9
Partner-ID: 404195
Partner-Property by: ohne-makler.net
Contact:
Privat von Robin

Contact now

Information

  • Type: Ground Floor
  • Storey: 0
  • Living Area ca.: 68 m²
  • Free From: 01.01.2026
  • Rooms: 3
CellarKitchenGarden

  • Construction Year: 2018
  • Condition: MintCondition
  • Heating Type: FloorHeating
  • Firing Type: Gas
  • Storeys: 3
  • Usable Floor Space: 88.0
  • Bathrooms: 1.0
  • Heating Costs included in Service Charge: True

Rent & Utilities

Rent1550 €
Additional Costs300 € incl. heating costs
Heating Costs200 €
Deposit4650€

About this dream apartment

Property Description

Diese attraktive, lichtdurchflutete 3-Zimmer-Erdgeschosswohnung mit ca. 68 m² Wohnfläche befindet sich in einem sehr gepflegten Mehrfamilienhaus aus dem Jahr 2018. Alle Zimmer sind nach Süden ausgerichtet, sodass Sie den ganzen Tag über von viel Sonne profitieren und die Räume in hellem, angenehmem Licht erstrahlen.

Ein besonderes Highlight ist der großzügige, private Garten (Sondernutzungsrecht, ca. 75 m²) mit sonniger Terrasse. Hier genießen Sie entspannte Stunden im Freien – ideal für Familien, Paare oder alle, die die Nähe zur Natur schätzen.

Ausstattungshighlights:
Fußbodenheizung in allen Räumen für angenehmes Wohnklima
Elektrische Rollläden an allen Fenstern
Einbauküche mit Spülmaschine, Kühlschrank
Eigener Kellerraum für zusätzlichen Stauraum
Tiefgaragenstellplatz inklusive – Ladestation für Elektrofahrzeuge möglich

Die Wohnung wird ab dem 1. Januar 2026 verfügbar sein.


Furnishing

Die bestehende Möbel können zu einem attraktiven Preis übernommen werden. So haben Sie die Möglichkeit, die Wohnung sofort vollständig eingerichtet und bezugsfertig zu nutzen.


Location

Location description

Neubiberg, ein beliebter Vorort im Südosten Münchens, bietet eine hervorragende Infrastruktur und Lebensqualität.
Die Wohnung liegt zentraler Lage von Neubiberg. Nur ca. 300 Meter entfernt befinden sich die nächste S-Bahn-Station sowie diverse Einkaufsmöglichkeiten wie EDEKA und REWE – ideal für den täglichen Bedarf. Schulen, Kindergärten, Cafés und Grünanlagen sind ebenfalls gut erreichbar.

ohne-makler.net
Contact:
Privat von Robin

Contact now