Außenansicht von Nordwesten
Küche, Blick in Wohnzimmer
Wohn/Essbereich
Essbereich
Küche
Treppe in Richtung OG
Schlafzimmer, Dachterrasse
Begehbarer Kleiderschrank
Badezimmer (OG)
Dachterrasse
Dachterrasse (Winter)
Eins der 2 Schlafzimmer im UG
Einfahrt
Garten
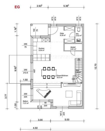
Grundriss Erdgeschoss
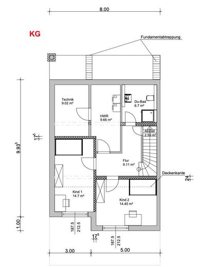
Grundriss Kellergeschoss
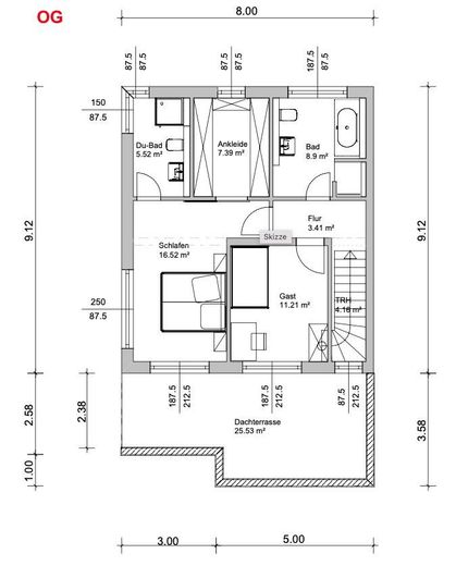
Grundriss Obergeschoss
Essbereich, offene Falttür
Terrasse, Blick nach Westen
Küche
Detail Gäste-WC
2. Schlafzimmer Obergeschoss
Freistehende Badewanne (OG)
Dusch-Bad (OG)
Dachterrasse
Nordblick von Dachterrasse
Westblick von Dachterrasse
Blick auf das Haus von Norden
Terrasse
Terrasse
Blick auf den unteren Garten
Unteres Gartengrundstück
Gartenbeleuchtung
Blick Sitzecke & Feuerstelle
Terrasse
Der noch nicht angelegte Teil
Wärmepumpe, Lüftung, Server

Energieeffizientes Familienhaus mit traumhaftem Taunusblick – stilvoll wohnen in ruhiger Lage

Get the full address via contact
65779 Kelkheim – Kelkheim (Taunus)
Hessen
1.250.000 €
Selling Price
182 m²
Living Area
5,5
Rooms
TraumImmo-ID: PJNAMH6
Partner-ID: 400466
Partner-Property by: ohne-makler.net
Contact:
Privat von Marcus Heers

Contact now

Information

  • Type: Semi-Detached House
  • Living Area ca.: 182 m²
  • Free From: Nach Vereinbarung
  • Rooms: 5,5
CellarGuest-ToiletKitchenBalconyGarden

  • Property Area: 912.0
  • Construction Year: 2018
  • Condition: MintCondition
  • Heating Type: FloorHeating
  • Storeys: 3
  • Usable Floor Space: 21.0
  • Bathrooms: 3.0

Selling Price & Extra Costs

Selling Price1.250.000 €
Courtageno courtage for buyers

About this dream house

Property Description

Dieses moderne Familienhaus mit drei Etagen verbindet großzügiges Wohnen, hochwertige Ausstattung und eine herrlich ruhige Lage – perfekt für alle, die Komfort und Natur gleichermaßen schätzen.
Durch die Hanglage eröffnet sich von der Dachterrasse ein beeindruckender Blick über den Taunus, während das weitläufige Grundstück und die grüne Umgebung ein Gefühl von Freiheit und Entspannung schaffen.
Das Haus wurde in Grenzbebauung (Doppelhaushälfte) errichtet und teilt sich die Einfahrt mit den Nachbarn.

=> Obergeschoss – Rückzugsort mit Aussicht <=
Im Obergeschoss erwarten Sie zwei helle Schlafzimmer – eines davon ideal auch als Büro mit traumhaftem Ausblick –, eine Ankleide, ein stilvolles Badezimmer mit freistehender Wanne und Doppelwaschbecken sowie ein weiteres Duschbad. Von der großzügigen Dachterrasse genießen Sie die Sonne und den Panoramablick über den Taunus.

=>Erdgeschoss – Leben, Kochen, Genießen<=
Der offen gestaltete Wohn-, Ess- und Kochbereich bildet das Herzstück des Hauses.
Die luxuriöse Einbauküche mit Kochinsel, Weinkühlschrank und hochwertigen Markengeräten lässt keine Wünsche offen. Eine große Falttüranlage öffnet den Essbereich zur Terrasse – so verschmelzen Innen- und Außenraum zu einer harmonischen Einheit. Der leicht nach unten versetzte Wohnbereich fügt sich elegant in die Hanglage ein. Ergänzt wird diese Ebene durch eine stilvolle Garderobe, ein repräsentatives Gäste-WC, einen praktischen Abstellraum sowie einen kleinen Balkon und den überdachten Eingangsbereich.

=> Untergeschoss – Platz für Gäste, Hobbys oder Teenager <=
Das Untergeschoss ist teilweise in den Hang gebaut und bietet daher sowohl funktionale als auch wohnliche Bereiche. Neben Technikraum und Waschküche finden sich hier zwei weitere Schlafzimmer mit direktem Gartenzugang – ideal für Gäste, Jugendliche oder als Homeoffice. Ein großzügiges Duschbad komplettiert das Raumangebot.

=> Außenbereich – Natur, Ruhe und Privatsphäre <=
Die liebevoll angelegte Außenanlage überzeugt mit mehreren Ebenen und vielen Gestaltungsmöglichkeiten. Ein großes Doppelcarport mit integriertem Gartenhaus bietet reichlich Platz für Fahrräder und Gartengeräte. Im unteren Gartenbereich lädt eine gemütliche Terrasse mit Feuerstelle unter altem Baumbestand zum Entspannen und Genießen ein.


Furnishing

- Moderne, energieeffiziente Wärmepumpe (per App bedienbar)
- Fußbodenheizung
- Küche mit Miele Induktionsherd und integriertem Abzug, Miele Dampfgarer/Mikrowellenkombi, Miele Backofen mit Pyrolyse, Liebherr Weinkühlschrank, Siemens Kühlschrank/Gefrierschrank mit No-Frost-Automatik, Siemens Spülmaschine, Grohe Blue Trinkwasserspender, USB und normale Steckdosen in der Kochinsel
- Aktive Lüftungsanlage mit Wärmerückgewinnung (per App bedienbar)
- Fliesen in Holzoptik in den meisten Räumen
- Echtholztreppe
- Repräsentative Ausstattung im Gäste-WC (z.B. Gessi Armaturen)
- Marken Armaturen in den Bädern sowie eingelassene Staufächer in allen Duschen
- Roca Inspira Dusch-WC in einem Duschbad; spülrandlose WCs mit Absenkautomatik in den anderen Bädern
- Bodentiefe Fenster in allen Schlaf- und Wohnräumen
- Rolladen oder Raffstores vor allen Fenstern
- Professionelle Alarmanlage mit Innen- und Außensirene, sowie Telefonbenachrichtigung
- Schneller Glasfaser-Internetanschluss
- Cat7-LAN-Anschlüsse in allen Wohn- und Schlafräumen
- Tablet-Halterung mit Internet- und Stromanschluss im EG
- Indirekt beleuchtete Stufen im EG
- Hochwertige Videosprechanlage
- Unterirdische Bewässerungsanlage für den Garten
- Beleuchtung von Eingangsbereich, Einfahrt, Carport und Gartenhaus


Other

Dieses Objekt wird OHNE Makler angeboten, daher entfallen die Maklerkosten für den Käufer.
Der Einzugstermin ist verhandelbar.


Location

Location description

Das Haus liegt in zweiter Reihe in einer ruhigen Gegend von Kelkheim (Mitte). Der Blick in den Garten schweift in unverbaubare Natur. Es existiert kein Durchgangsverkehr (Sackgasse). Einkaufsmöglichkeiten, Schulen, Kitas, Spielplätze und Ärzte sind fußläufig zu erreichen. Der Bahnhof Kelkheim Mitte mit direktem Anschluss an den Frankfurter Hauptbahnhof ist zu Fuß oder mit dem Fahrrad gut zu erreichen. Wald und Wiesen für Spaziergänge sind direkt nebenan.

ohne-makler.net
Contact:
Privat von Marcus Heers

Contact now