Schön geschnittene 3-Zimmer-Wohnung

Get the full address via contact
75428 Illingen – Illingen
Baden-Württemberg
280.000 €
Selling Price
76 m²
Living Area
3
Rooms
TraumImmo-ID: PNWR9N8
Partner-ID: 400778
Partner-Property by: ohne-makler.net
Contact:
Privat vom Eigentümer

Contact now

Information

  • Type: Flat
  • Storey: 1
  • Living Area ca.: 76 m²
  • Free From: Nach Vereinbarung
  • Rooms: 3
CellarGuest-ToiletKitchenBalcony

  • Construction Year: 1991
  • Condition: FullyRenovated
  • Heating Type: CentralHeating
  • Firing Type: Gas
  • Storeys: 2
  • Bathrooms: 1.0

Selling Price & Extra Costs

Selling Price280.000 €
Courtageno courtage for buyers

About this dream apartment

Property Description

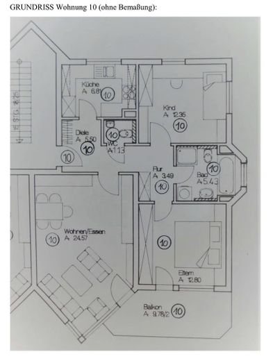
Die Wohnung mit ca. 76 m² Wohnfläche und Balkon befindet sich im 1. Obergeschoss des Mehrfamilienhauses in zweiter Reihe.
Die beiden Gebäude sind mit jeweils 6 Wohnungen durch die Tiefgarage miteinander verbunden.

Die Wohnung hat drei Zimmer, eine Küche, ein Badezimmer, ein Gäste-WC, einen Flur und einen überdachten Balkon.
Zur Wohnung gehört ein Kellerabteil mit ca. 4 m² und die gemeinschaftliche Waschküche kann mitgenutzt werden.
Ein Stellplatz in der Tiefgarage gehört zur Wohnung.


Furnishing

Die Wohnung wurde 2019 teilweise saniert

- Neue Fenster und Türen
- elektronische Rollläden
- Balkonüberdachung
- Neue Küche
- Rauputz in der kompletten Wohnung
- Neue Heizkörper
- teilweise Elektronik
- Böden in Wohn-, Ess- und Schlafzimmer
- Boden auf dem Balkon
- teilweise neue sanitäre Einrichtungen


Location

Location description

Die Immobilie befindet sich in Illingen.

Fußläufig sind der Bahnhof, der Busbahnhof, diverse Geschäfte, Banken, Bäckereien,
Supermärkte, Schule, Kindergarten und das Rathaus zu erreichen.

Die Gemeinde Illingen hat ca. 7.700 Einwohner. Illingen liegt direkt an der B 10 und B 35, und ist sehr gut mit dem ÖPNV (Bus & Bahn) zu erreichen. Illingen ist zentral zwischen Mühlacker und Vaihingen/Enz, Pforzheim und Heilbronn und Stuttgart und Karlsruhe.

ohne-makler.net
Contact:
Privat vom Eigentümer

Contact now