Properties in Germany
Guide & Blog
Back to Sachsen
Gemütliche DG 2-Zimmer mit Laminat und Dachterreasse in zentraler Lage!
Marienstraße 30
08056 Zwickau
Sachsen
349 €
Rent without service charge
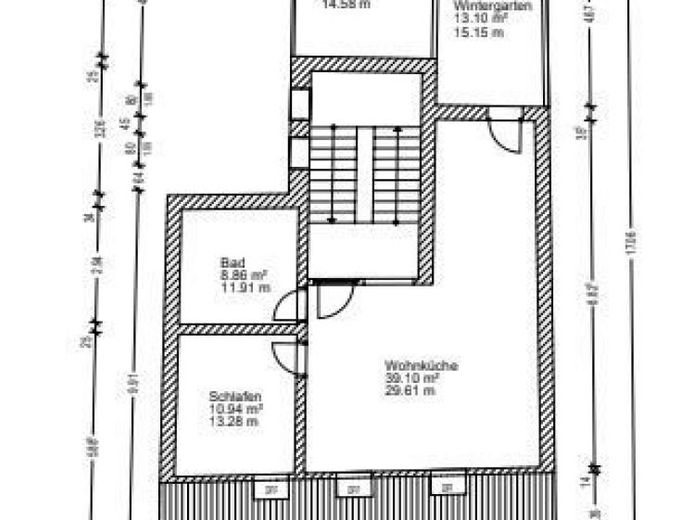
58 m²
Living Area
2
Rooms
TraumImmo-ID:
PTMNVRU
Partner-ID:
629835696
Partner-Property by: RegionalImmobilien24
Contact:
Anonymous
Contact now
Information
Type:
Roof Story
Living Area ca.:
58 m²
Rooms:
2
More Information
Rent & Utilities
Rent
349 €
Additional Costs
150 €
Total Rent
499 €
Location
Contact:
Anonymous
Contact now