Außenansicht
EG
1. OG hinten
DG - Zimmer
DG - Küche
Dachterrasse
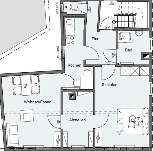
Grundriss EG
Grundriss OG vorne
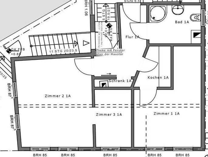
Grundriss OG hinten
1. OG vorne
1. OH hinten
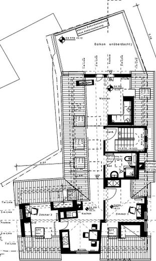
Grundriss 2. OG vorne
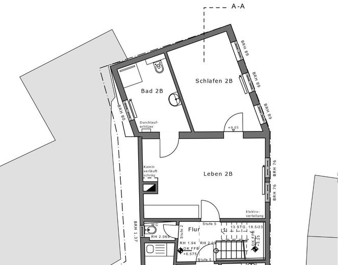
Grundriss 2. OG hinten
Grundriss DG

Mehrfamilienhaus mit 6 Wohneinheiten - Einzelkulturdenkmal

Untergasse 17
35037 Marburg – Marburg
Hessen
1.150.000 €
Selling Price
337 m²
Living Area
16
Rooms
TraumImmo-ID: QNQSKYB
Partner-ID: 392351
Partner-Property by: ohne-makler.net
Contact:
Angebot von Attila Moter

Contact now

Information

  • Type: Multi-Family House
  • Living Area ca.: 337 m²
  • Free From: sofort
  • Rooms: 16
Kitchen

  • Property Area: 143.0
  • Construction Year: 1765
  • Condition: Refurbished
  • Heating Type: CentralHeating
  • Firing Type: Gas

Selling Price & Extra Costs

Selling Price1.150.000 €
Courtageno courtage for buyers

About this dream house

Property Description

Einzigartige Kapitalanlage mit Geschichte und Zukunft.

Dieses denkmalgeschützte Wohnhaus aus dem Jahr um 1765 erzählt Geschichte – und verbindet sie zugleich mit modernem Wohnkomfort. Zwischen 2015 und 2023 wurde die Immobilie mit viel Sorgfalt umfassend saniert: energetisch aufgewertet, technisch modernisiert und mit einer neuen Gaszentralheizung ausgestattet.

Das Haus beherbergt heute 6 Wohneinheiten. Die einstige Gewerbefläche im Erdgeschoss wird bis September 2025 in attraktiven Wohnraum verwandelt. Die Wohnungen bieten jeweils 2 bis 3 Zimmer mit Küche und Bad; die Dachgeschosswohnung begeistert zusätzlich mit einer ca. 25 m² großen Dachterrasse über den Dächern der Altstadt. Vier Einheiten präsentieren sich bereits hochwertig modernisiert, zwei weitere lassen Raum für individuelle Gestaltung – ein spannendes Plus für Kapitalanleger dank der steuerlichen Denkmal-AfA.

Die Lage könnte kaum besser sein: mitten in der historischen Marburger Altstadt, zentral gelegen und hervorragend angebunden. Seit über zehn Jahren ist das Haus durchgehend voll vermietet – ein klares Zeichen für die Attraktivität des Objekts.

Wer hier investiert, sichert sich nicht nur ein Stück Baugeschichte, sondern auch eine solide Rendite mit Wachstumspotenzial, steuerlichen Vorteilen und dem unverwechselbaren Charme einer einzigartigen Immobilie.


Location

ohne-makler.net
Contact:
Angebot von Attila Moter

Contact now