Hochwertige Produktionshalle mit Büro

Get the full address via contact
48653 Coesfeld – Coesfeld
Nordrhein-Westfalen
1.289.000 €
Selling Price
TraumImmo-ID: QPPX6NC
Partner-ID: 418016
Partner-Property by: ohne-makler.net
Contact:
Privat vom Eigentümer

Contact now

Information

  • Type: Industry Hall
  • Free From: Nach Vereinbarung
Kitchen

  • Property Area: 3536.0
  • Condition: MintCondition
  • Heating Type: FloorHeating
  • Firing Type: PelletHeating

Selling Price & Extra Costs

Selling Price1.289.000 €
Courtageno courtage for buyers

About this dream industry property

Property Description

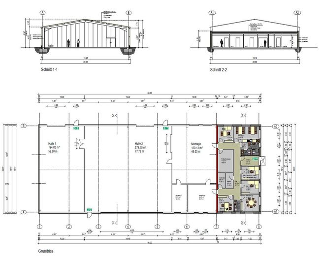
Die Gewerbeimmobilie wurde in 2011 erbaut und weist eine bebaute Fläche von 1000 qm aus. Diese teilen sich auf in 200 qm Bürofläche in Massivbauweise ( verklinkert ) und 800 qm Hallen/Produktionsfläche. Die Halle ist mit 2 elektrischen Sektionaltoren (4,0 x 4,0 Meter )ausgestattet. Das Objekt ist vermietet.


Furnishing

-Bebaute Fläche 1000 qm
200 qm Büro ( erweiterbar )
800 qm Halle ( erweiterbar )
-Grundstück ca. 3.536 qm ( mit Freifläche für weiteren Hallenbau )
-Baujahr 2011
- Bürogebäude Massivbauweise mit Klinker
- Hallengebäude mit Sandwichpaneelen anthrazit
- 2 Rolltore 4,0 x 4,0 Meter hoch
- Bürotrakt Fußbodenheizung
- elektrische Rollos
- Heizung Pelletheizung.
- Erweiterung der Elektroanlage mit Wandlermessung auf 400A
- Photovoltaikanlage aus 2022 55 kph mit 50 KW Speicher ( kann übernommen werden )
- Angemeldete Betriebsleiterwohnung mit Bad und WC
- Aufenthaltsraum mit Küchenzeile
- Außen Pflaster 500 qm
- Lage Industriegebiet Sackgasse
- Eckgrundstück


Other

Anfragen bitte an
Gewerbehalle.coe.verkauf at gmail.com


Location

Location description

Das Objekt befindet sich im Gewerbegebiet von Coesfeld, einer wirtschaftsstarken Mittelstadt im westlichen Münsterland. Die Lage zeichnet sich durch eine gute Erreichbarkeit, ruhiges Arbeitsumfeld und eine gute Infrastruktur aus.

Die Anbindung an die umliegenden Autobahnen A43 und A31 ist jeweils in wenigen Minuten erreichbar. Die B474 sowie die nahegelegene B525 ermöglichen eine schnelle Verbindung zu den umliegenden Städten wie Münster, Dülmen oder Borken. Der Bahnhof Coesfeld ist in wenigen Minuten erreichbar und bietet regelmäßige Verbindungen in Richtung Münster und Dortmund.

ohne-makler.net
Contact:
Privat vom Eigentümer

Contact now