| Selling Price | 249.900 € |
|---|---|
| Courtage | no courtage for buyers |
FREIESLEBEN-IMMOBILIEN präsentiert Ihnen dieses schöne, renovierte und laufend modernisierte, voll unterkellerte Reihenhaus in Waldrandlage mit Garage in einer beliebten Wohngegend von Datteln.
Das schicke Haus wurde im Jahr 1951 in massiver Bauweise auf einem ca. 126m² großen Eigengrundstück errichtet. Die Garage steht in unmittelbarer Nähe des Hauses auf einem zusätzlichen Teileigentumsgrundstück. Das zusätzliche, am Wald hinter dem Haus und der Garage gelegene Gartengrundstück umfasst ca. 254m² Fläche.
Das gepflegte und rundum gedämmte Haus bietet ca. 85m² Wohnfläche sowie zusätzlich ca. 65m² wohnlich ausgebaute Nutzfläche im gedämmten Dachgeschoss und Kellergeschoss.
Die moderne Haustür mit 3-fach Verriegelung stammt aus dem Jahr 2005.
Das Dach des Hauses wurde ca. im Jahr 2000 erneuert und gedämmt.
Fassade und Heizungsrohre wurden vor ca. 20 Jahren erneuert.
Beheizt wird das Haus mit einer Gas-Zentralheizung aus dem Jahr 2023.
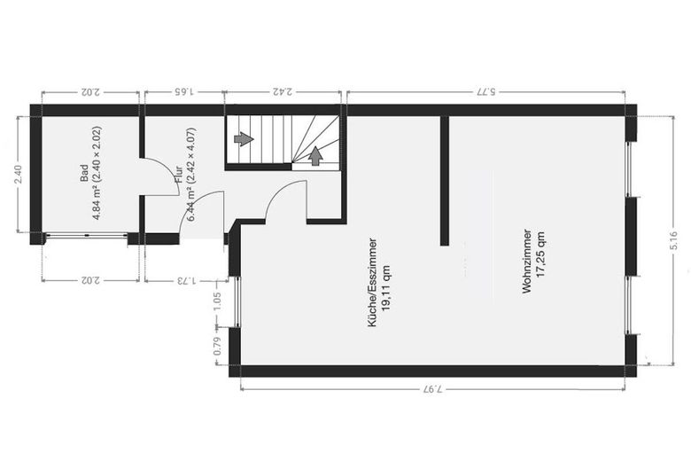
Im Erdgeschoss des Hauses befinden sich das Wohnzimmer mit schickem, ca. 4 Jahre jungen Kaminofen, die Küche mit Einbauküche mit ca. 2 Jahre jungen Elektro-Geräten sowie Essbereich, das hell gestaltete Tageslicht-Bad mit einladender Eckbadewanne und Fußbodenheizung aus dem Jahr 2017 sowie die Diele.
Im Obergeschoss befinden sich das Schlafzimmer, das Kinderzimmer und die Diele.
Der wohnlich ausgebaute Dachboden bietet ca. 33m² Nutzfläche.
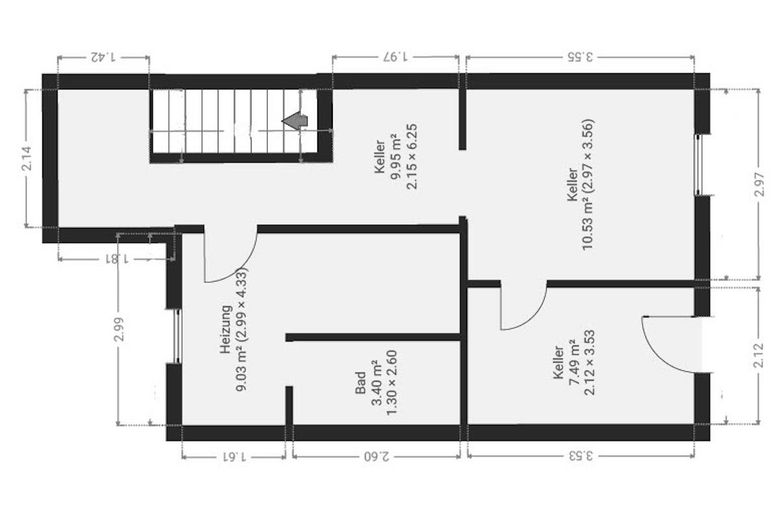
Das wohnlich ausgebaute Kellergeschoss bietet weitere Nutzfläche mit viel Tageslicht die Infrarot-Sauna, das zusätzliche Duschbad mit WC aus dem Jahr 2005 und den Heizungsraum. Ein praktischer Ausgang vom Keller in den Vorgarten ist gegeben, von dort gelangt man durch ein Tor zur Straße mit öffentlichen Parkmöglichkeiten.
Der geschmackvoll und pflegeleicht angelegte Garten direkt am idyllischen Waldrand (grüne Lunge!) bietet eine schicke Terrasse für schöne Stunden im Freien. Ein Stromanschluss ist hier vorhanden. Für Hundebesitzer: Im Garten befindet sich eine Doppelzwingeranlage mit Freilauf.
Für den PKW steht die Garage mit Stromanschluss zur Verfügung.
Die jährlichen Grundbesitzabgaben betragen: ca. 1.200,-€.
Sie möchten sofort besichtigen?
Dann senden Sie uns bitte eine Anfrage über das Kontaktformular oder per eMail unter:info@immobilienmakler12.de, wir kontaktieren Sie umgehend.
Schriftliche Anfragen werden deutlich schneller bearbeitet als telefonische Anfragen!
PROVISIONSFREI FÜR DEN KÄUFER
- Gepflegtes und voll unterkellertes Reihenhaus
- Baujahr 1951
- Massive Bauweise
- Ca. 85m² Wohnfläche + ca. 65m² Nutzfläche
- Ca. 380m² großes Eigengrundstück
- Gas-Zentralheizung aus dem Jahr 2023
- Infrarot-Sauna
- Schicker Kaminofen
- Einbauküche mit neuwertigen Elektro Geräten
- Garage mit Stromanschluss
- Pflegeleicht angelegtes Gartengrundstück mit Terrasse und Stromanschluss
Dies ist ein freibleibendes Angebot der
FREIESLEBEN GmbH,
Steinstraße 14
45657 Recklinghausen
Tel.: 02361 - 90 61 030
Internet: www.immobilienmakler12.de
eMail: info@immobilienmakler12.de
Sie können uns MONTAG bis SONNTAG
von 7:00 Uhr bis 22:00 Uhr telefonisch erreichen. Am Wochenende bieten wir Ihnen zusätzlich unseren Service für Immobilienbewertungen, Objektbesichtigungen und das Persönliche-Kennenlernen.
Hinsichtlich des Objektes sind wir auf die Auskünfte der Eigentümer und Behörden angewiesen. Für die Richtigkeit und Vollständigkeit der Angaben kann keine Haftung übernommen werden. Darüber hinaus kann für das Objekt keine Gewähr übernommen und für die Liquidität der Vertragspartner nicht gehaftet werden.
Sie möchten Ihre Immobilie auch professionell vermarkten lassen?
- Nutzen Sie unseren kostenfreien Service und lassen den aktuellen Wert Ihrer Immobilie durch einen unserer Immobilienspezialisten schätzen.
- Optimieren Sie die Verkaufschancen Ihrer Immobilie, indem wir einen speziell auf Ihr Objekt abgestimmten Vermarktungsplan erstellen.
- Nutzen Sie unser hervorragendes, bundesweites Netzwerk um Ihnen Kaufinteressenten zeitnah zuzuführen. 100te Interessenten warten auf Sie!
Rufen Sie uns an, wir freuen uns auf Sie!
Zentrale Münsterland: Tel.: 0251 - 39 444 998
Zentrale Ruhrgebiet: Tel.: 0234 - 92 56 98 00
Das attraktive Reihenhaus liegt in einem gepflegten Wohngebiet in grüner Umgebung des Dattelner Ortsteils Emscher-Lippe.
Der angrenzende Wald und der nahe gelegene Dortmund-Ems-Kanal laden zu ausgedehnten Spaziergängen ein.
Ebenfalls fussläufig erreichbar sind Lebensmittelgeschäfte, ein Arzt und eine Apotheke sowie Bushaltestellen durch welche man gut an die öffentlichen Verkehrsmittel angebunden ist.
Die Stadt Datteln bietet neben guten Einkaufsmöglichkeiten ebenfalls einen attraktiven Wirtschaftsstandort mit Zukunft, insbesondere für erfolgreiche Industrie- und Dienstleistungsunternehmen, die Gesundheitswirtschaft, sowie Freizeitwirtschaft. Datteln heißt innovative und neue Produkte, Ideen und Unternehmen herzlich willkommen. Darüber hinaus dient Datteln mit seinem größten Waldgebiet im Ruhrgebiet, idyllischen Wanderwegen und tollen Wasserlandschaften aber auch gut der Erholung.
Mit dem PKW gelangt man schnell auf die B235 und die A2 so dass auch die umliegenden Städte des Ruhrgebietes und des Münsterlandes gut erreichbar sind.