Grundriss Wohnung
Außenansicht
Flur
Flur
Bad
Zugang Rampe
Flur
Bad mit Badewann
Schlafzimmer
Aufzug
Essbereich
Tiefgarage Stellplatz
Balkon groß
 Wallbox
Balkon groß
Aufzug
Schalfzimmer
Gäste WC
Wohnzimmer
Kinderzimmer
Küche

Lichtdurchflutete 3,5-Zimmer-Wohnung in Gelsenkirchen-Horst

Get the full address via contact
45899 Gelsenkirchen – Horst
Nordrhein-Westfalen
240.000 €
Selling Price
86 m²
Living Area
3,5
Rooms
TraumImmo-ID: SYAASXT
Partner-ID: 419410
Partner-Property by: ohne-makler.net
Contact:
Privat von Sascha

Contact now

Information

  • Type: Flat
  • Storey: 2
  • Living Area ca.: 86 m²
  • Free From: Nach Vereinbarung
  • Rooms: 3,5
CellarHandicapped AccessibleGuest-ToiletKitchenBalconyGarden

  • Construction Year: 2001
  • Condition: WellKept
  • Heating Type: FloorHeating
  • Firing Type: Gas
  • Usable Floor Space: 5.0
  • Bathrooms: 1.0

Selling Price & Extra Costs

Selling Price240.000 €
Courtageno courtage for buyers

About this dream apartment

Property Description

Willkommen in Ihrem neuen Zuhause in Gelsenkirchen-Horst – einer modernen, barrierefreien 3,5-Zimmer-Wohnung, die Licht, Komfort und Funktionalität auf ideale Weise verbindet. Zwei überdachte Balkone (Balkon + Loggia), eine hochwertige Fußbodenheizung und bodentiefe Fenster schaffen ein angenehmes Wohngefühl mit viel Tageslicht und Raum zum Entspannen.
Hier genießen Sie ruhiges Wohnen mit kurzen Wegen – perfekt für Paare, kleine Familien oder Menschen, die Wert auf barrierefreies, komfortables Wohnen legen.

Raumaufteilung & Ausstattung

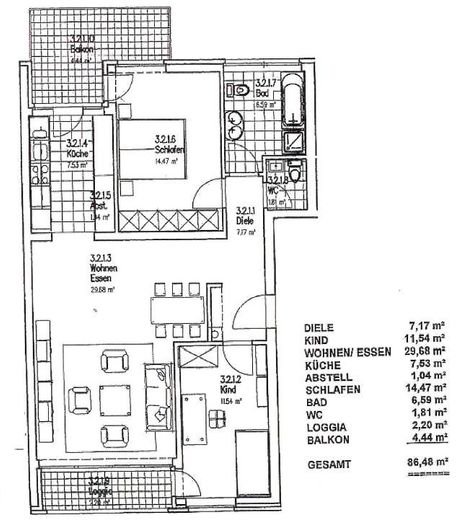
Die Wohnung umfasst 86,48 m² und überzeugt durch eine durchdachte Aufteilung:
• Großzügiges Wohnzimmer mit Essbereich – hell, offen und mit Zugang zum kleinen Balkon
• Schlafzimmer mit bodentiefen Fenstern und Zugang zum großen Balkon
• Kinder- oder Gästezimmer mit Balkontür
• Separate Küche (mit Elektrogeräten, Umluft-Abzugshaube, Außenabzug vorhanden)
• Tageslichtbad mit Dusche (Grohe Regendusche, 2021), Badewanne mit Massagefunktion und zwei Fenstern
• Gäste-WC mit Abluftventilator
• Flur mit komfortabler Aufteilung

Die gesamte Wohnung ist mit Fußbodenheizung ausgestattet.
Alle Fenster verfügen über elektrische Rollläden (neu 2021), das Bad über manuelle Rolläden mit Gurt.

Zwei Balkone für jeden Moment des Tages

Die überdachten Balkone erweitern Ihren Wohnraum ins Freie:
• Der kleinere Balkon (Wohn- & Kinderzimmer) ist ideal für den Morgenkaffee.
• Der große Balkon (Küche & Schlafzimmer) bietet Platz für eine gemütliche Sitzecke oder einen Esstisch für vier Personen – perfekt für laue Sommerabende.

Komfort im Alltag
• Tiefgaragenstellplatz mit Wallbox (11 kW, 2023) direkt am Eingang – bequemes Ein- und Aussteigen garantiert
• Kellerraum (5,48 m²) sowie Waschmaschinen- und Trocknerstellplatz
• Gemeinschaftsgarten mit Sandkasten und Sitzgelegenheiten
• Fahrradkeller und Aufzug vorhanden
• DSL & Kabelanschluss inklusive Funkablesung der Zähler

Modernisierungen & Zustand
Die Wohnung wurde regelmäßig modernisiert und befindet sich in einem gepflegten, sofort bezugsfertigen Zustand:
• 2021: elektrische Rollläden, neue Fußböden (Wohn-, Schlaf-, Kinderzimmer), Regendusche (Grohe)
• 2023: Wallbox in der Tiefgarage
• 2025: digitaler Stromzähler
• Antrag auf Balkonkraftwerk (Ostausrichtung, ca. 500–600 kWh p.a.) gestellt – zur eigenen Nutzung möglich

Die Eigentümergemeinschaft ist bestens aufgestellt:
Eine sehr gute Instandhaltungsrücklage sorgt für langfristige Sicherheit.

Das monatliche Hausgeld (inkl. Heizung, Wasser, Rücklage, Aufzug, Flurreinigung, Tiefgaragenreinigung, Winterdienst, Gartenpflege) beträgt 476,00 € bei aktuell drei Personen.

Fazit
Diese Wohnung verbindet Komfort, Qualität und eine hervorragende Lage.
Barrierefreiheit, moderne Ausstattung, zwei Balkone und ein Tiefgaragenstellplatz mit Wallbox machen sie zu einem idealen Zuhause für anspruchsvolle Käufer, die Wert auf gepflegtes, sorgenfreies Wohnen legen.

Hier erwartet Sie kein Kompromiss, sondern eine Wohnung, die Komfort und Lebensfreude vereint.


Other

Highlights auf einen Blick
• Barrierefreie, lichtdurchflutete 3,5-Zimmer-Wohnung
• Zwei überdachte Balkone
• Tiefgaragenstellplatz mit 11 kW-Wallbox
• Fußbodenheizung in allen Räumen
• Moderne Sanitärausstattung mit Regendusche & Badewanne mit Whirlpool-Funktion
• Gepflegte Eigentümergemeinschaft mit hoher Rücklage
• Zentrale Lage in Gelsenkirchen-Horst – alles fußläufig erreichbar
• Antrag auf Balkonkraftwerk (2025)
Rundum- Sorglos Paket mit Flurreingung, Tiefgaragenreinigung, Winterdienst, Aufzug


Location

Location description

zentral & grün
Gelsenkirchen-Horst überzeugt durch eine angenehme Mischung aus Natur, Kultur und urbaner Nähe.
Das historische Schloss Horst mit Park, Bürgercenter und Stadtbücherei liegt nur wenige Gehminuten entfernt.
Einkaufsmöglichkeiten wie Netto, Rossmann, dm, Penny und REWE sind bequem fußläufig erreichbar.
Schulen, Kitas, Ärzte und Apotheken befinden sich in direkter Umgebung.

Die Haltestelle Schloss Horst (ca. 6 Minuten zu Fuß) bietet Anbindung an Essen, Bottrop, Gladbeck und die Gelsenkirchener Innenstadt.
Der nahegelegene Nordsternpark lädt zu Spaziergängen, Fahrradtouren und kulturellen Events ein – ein Highlight für Freizeit und Erholung.

ohne-makler.net
Contact:
Privat von Sascha

Contact now