Ausblick aus dem Wohnzimmer
Badezimmer
Beispielküche (WE inkl. Küche)
Blick von der Fassade
Detail: Stuck
Detail: Lichtschalter
Schlafzimmer
Büro/Kinderzimmer
Küche mit Balkon
Wohnzimmer
Beispiel Wohnzimmer
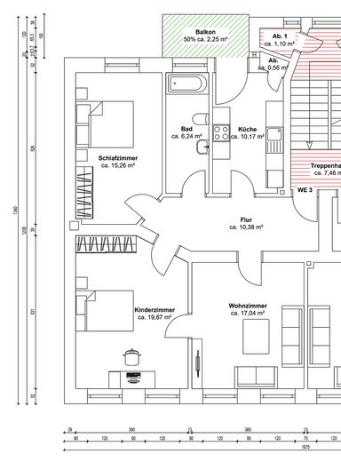
Grundriss WE03
Schlafzimmer
Detail: Denkmalgriffe

kernsanierte 3-Zimmer-Altbauwohnung mit Südbalkon & optionaler Einbauküche

Pestalozzistraße 5
04435 Sckeuditz – Schkeuditz
Sachsen
790 €
Rent without service charge
84 m²
Living Area
3
Rooms
TraumImmo-ID: SZZRRWY
Partner-ID: 403312
Partner-Property by: ohne-makler.net
Contact:
Privat von Anna Hudalla

Contact now

Information

  • Type: Flat
  • Storey: 1
  • Living Area ca.: 84 m²
  • Free From: sofort
  • Rooms: 3
CellarKitchenBalcony

  • Construction Year: 1902
  • Condition: FirstTimeUseAfterRefurbishment
  • Heating Type: CentralHeating
  • Firing Type: Gas
  • Storeys: 3
  • Heating Costs included in Service Charge: True

Rent & Utilities

Rent790 €
Additional Costs180 € incl. heating costs
Heating Costs90 €
Deposit1500€

About this dream apartment

Property Description

Diese großzügige 3-Zimmer-Wohnung mit ca. 84 m² befindet sich im 1. Obergeschoss eines gepflegten Altbaus in der Pestalozzistraße 5 in Schkeuditz. Die Wohnung wurde umfassend kernsaniert und verbindet den Charme eines Altbaus mit moderner Ausstattung.
Zu den durchgeführten Arbeiten gehören:
komplett erneuerte Elektrik
neue Fenstergriffe und Thermostate
frisch verlegter Bodenbelag in allen Räumen
neue Wand- und Deckenanstriche
abgeschliffene und neu lackierte Türen
modernisiertes Badezimmer mit neuen Fliesen und Armaturen
Das Herzstück der Wohnung ist der helle Wohnbereich mit Zugang zum Südbalkon, der zum Entspannen einlädt. Auf Wunsch bauen wir eine moderne Einbauküche für die Mieter ein. Die Wohnung ist ideal für Paare, kleine Familien oder Homeoffice-Nutzer, die Wert auf großzügige Räume und ein hochwertiges Wohnumfeld legen.


Furnishing

- Erstbezug nach Kernsanierung
- Südbalkon
- modernes Tageslichtbad mit Badewanne
- hochwertige Vinylböden
- großzügiger Grundriss mit drei hellen Zimmern
- Kellerabteil vorhanden
- gepflegtes Altbau-Mehrfamilienhaus
- Einbauküche kann auf Wunsch eingebaut werden
- Die Garate kann bei Bedarf dazugemietet werden


Location

Location description

Die Wohnung liegt in einer ruhigen Seitenstraße in 04435 Schkeuditz, nur wenige Gehminuten vom Markt und von Einkaufsmöglichkeiten entfernt. Ärzte, Schulen, Kindergärten und öffentliche Verkehrsmittel sind bequem erreichbar. Durch die Nähe zur B6, A9 und A14 sowie zum Flughafen Leipzig/Halle ist eine schnelle Anbindung an Leipzig und Halle gegeben.

ohne-makler.net
Contact:
Privat von Anna Hudalla

Contact now