| Selling Price | 348.100 € |
|---|---|
| Courtage | no courtage for buyers |
Moderne helle altersgerechte Wohnung mit moderner Technik im KFW 40 Energiesparhaus in
zentraler Lage von Koblenz - Statteil Lützel
Hohe Steuervorteile durch Neubauabschreibungen für Vermieter möglich !
Energiesparendes Bauen mit hohen Steuervorteilen für Vermieter. Altengerechtes schönes Wohnen mit moderner kostengünstiger Heiztechnik in gefragter Lage im Koblenz-Lützel. In dieser exponierten Lage entstehen moderne attraktive Eigentumswohnungen von ca. 62 bis ca. 108 m² mit moderner Technik in altersgerechter Ausführung mit Lift. Elektrische Rollläden, schöne Fliesen und Sanitärausstattungen, hochwertige Wohnungseingangstüren, moderne 3-fach verglaste Fenster, eine gute Elektroausstattung, eine kontrollierte Wohnraumbelüftung mit Wärmerückgewinnung sowie attraktive Parkettböden werden ausgeführt. Bei der Konzeption des Objektes wurde besonders auf Energiesparendes Bauen geachtet, was durch den aufwendigen KFW 40 Standard dokumentiert wird (Energieklasse A +). Die Kombination von moderner Technik sowie hochwertiger Isolierung führt zu sehr günstigen Heizkosten bzw. Nebenkosten. Alle Wohnungen verfügen über schöne Balkone im ruhigen Innenbereich mit guter Besonnung . Jeder Wohnung ist ein Abstellraum im Erdgeschoss zugeordnet.
Geniesen Sie den Wohnkomfort eines modernen hellen überwiegend barrierefreien Gebäudes mit neuester Technik.
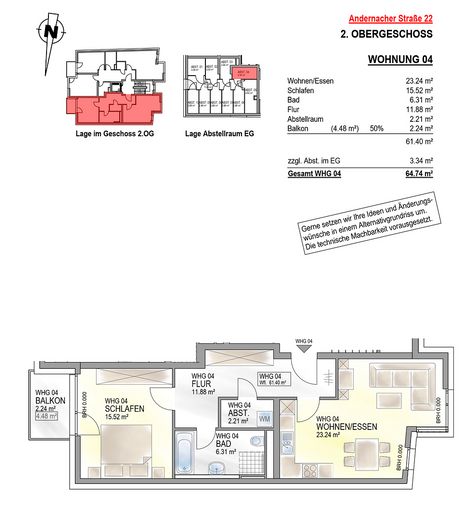
Das Angebot bezieht sich auf die Wohnung 4 im 2. Obergeschoß. Sie gelangen über eine geräumige Diele mit Garderobe in die Wohnung. Von der Diele gelangen Sie in den hellen geräumigen Wohn/Eßbereich mit offener Küche von ca. 24 m² sowie den funktionalen Abstellraum. Von der Diele gelangen Sie ebenfalls in das geräumige Bad von ca. 7 m² - ausgestattet mit Wanne und Dusche sowie das gut aufgeteilte Schlafzimmer von ca. 16 m² mit Ausgang auf den sonnigen Balkon von ca. 5 m². Die Wohnung hat eine Wohnfläche von ca. 62 m². Der Wohnung ist ein Kellerraum zugeordnet.
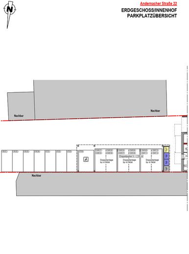
Es besteht die Möglichkeit Außenstellplätze für 17.000 EUR sowie ein Carport mit Doppelparkanlage für 35.000 EUR zu erwerben.
Die Wohnung ist kurzfristig beziehbar
Moderne helle altersgerechte Wohnung mit moderner Technik im KFW 40 Energiesparhaus in
zentraler Lage von Koblenz
Hohe Steuervorteile durch Neubauabschreibungen für Vermieter möglich !
Energiesparendes Bauen mit hohen Steuervorteilen für Vermieter. Altengerechtes schönes Wohnen mit moderner kostengünstiger Heiztechnik in gefragter Lage im Koblenz-Lützel. In dieser exponierten Lage entstehen moderne attraktive Eigentumswohnungen von ca. 62 bis ca. 108 m² mit moderner Technik in altersgerechter Ausführung mit Lift. Elektrische Rollläden, schöne Fliesen und Sanitärausstattungen, hochwertige Wohnungseingangstüren, moderne 3-fach verglaste Fenster, eine gute Elektroausstattung, eine kontrollierte Wohnraumbelüftung mit Wärmerückgewinnung sowie attraktive Parkettböden werden ausgeführt. Bei der Konzeption des Objektes wurde besonders auf Energiesparendes Bauen geachtet, was durch den aufwendigen KFW 40 Standard dokumentiert wird (Energieklasse A +). Die Kombination von moderner Technik sowie hochwertiger Isolierung führt zu sehr günstigen Heizkosten bzw. Nebenkosten. Alle Wohnungen verfügen über schöne Balkone im ruhigen Innenbereich mit guter Besonnung . Jeder Wohnung ist ein Abstellraum im Erdgeschoss zugeordnet.
Geniesen Sie den Wohnkomfort eines modernen hellen überwiegend barrierefreien Gebäudes mit neuester Technik.
Das Angebot bezieht sich auf die Wohnung 4 im 2. Obergeschoß. Sie gelangen über eine geräumige Diele mit Garderobe in die Wohnung. Von der Diele gelangen Sie in den hellen geräumigen Wohn/Eßbereich mit offener Küche von ca. 24 m² sowie den funktionalen Abstellraum. Von der Diele gelangen Sie ebenfalls in das geräumige Bad von ca. 7 m² - ausgestattet mit Wanne und Dusche sowie das gut aufgeteilte Schlafzimmer von ca. 16 m² mit Ausgang auf den sonnigen Balkon von ca. 5 m². Die Wohnung hat eine Wohnfläche von ca. 62 m². Der Wohnung ist ein Kellerraum zugeordnet.
Es besteht die Möglichkeit Außenstellplätze für 17.000 EUR sowie ein Carport mit Doppelparkanlage für 35.000 EUR zu erwerben.
Die Wohnung ist kurzfristig beziehbar
Vereinbaren Sie einen Besichtigungstermin ! In Zusammenarbeit mit einem Finanzierungsvermittler sind wir Ihnen gerne bei der Gestaltung Ihrer Finanzierung behilflich. Die Zinsen können z.B. auf die Dauer von 10 oder 15 Jahren festgeschrieben werden. Hierdurch können sich Ihre monatlichen Raten nicht verändern !
Hinweis bei Vermietung: Die Wohnungen können bei einem Erwerb bis zum Jahr der Fertigstellung und einer Vermietung entsprechend den aktuellen Änderungen des Wirtschaftschancengesetzes mit einer degressiven Abschreibung von jährlich 5 % bezogen auf den jeweiligen Buchwert abgeschrieben werden. Hierdurch werden hohe Steuervorteile erzielt. Wir übernehmen weder eine steuerliche Beratung noch die Haftung für steuerliche Ziele. Sprechen Sie mit Ihrem Steuerberater. Dieser berät Sie gerne umfassend und fachgerecht.
Weitere interessante Kauf- oder Mietangebote finden Sie unter www.scherf-immobilien.de
Koblenz- zentrale Stadtlage im Stadtteil Lützel. Alle Einrichtungen des täglichen Bedarfs sind auf kurzen Wegen erreichbar. Sie sind in wenigen Gehminuten an der Uferpromenade der Mosel, am Nahversorger oder am Bahnhof. Ebenso ist die Koblenzer Altstadt mit ihrem ganzen Flair in wenigen Gehminuten erreichbar.
Das Objekt befindet sich in der Andernacher Straße