Wohnzimmer
Küche
Büro/Schlafen/Gast
Ansicht
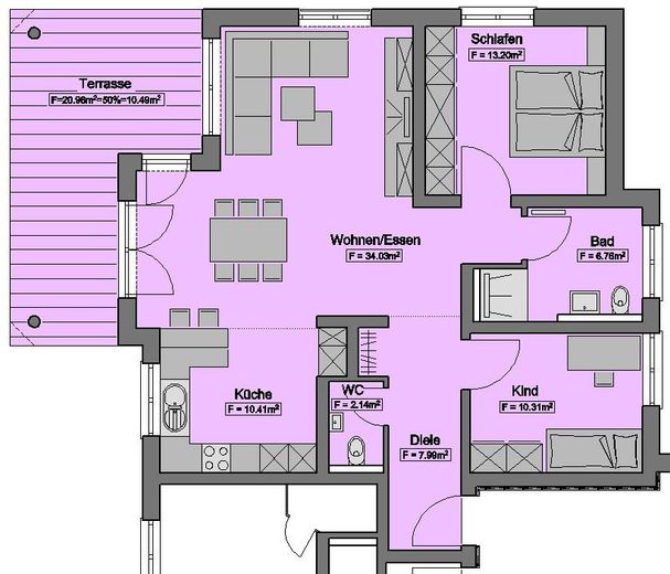
Grundriss

Stilvolle und hochwertige EG - Wohnung, hell, offen gestaltet zum Wohlfühlen

Get the full address via contact
72160 Horb – Bildechingen
Baden-Württemberg
1090 €
Rent without service charge
95 m²
Living Area
3,5
Rooms
TraumImmo-ID: TH6JNPD
Partner-ID: 404648
Partner-Property by: ohne-makler.net
Contact:
Privat vom Eigentümer

Contact now

Information

  • Type: Ground Floor
  • Storey: 0
  • Living Area ca.: 95 m²
  • Free From: 01.12.2025
  • Rooms: 3,5
CellarHandicapped AccessibleGuest-ToiletKitchenBalconyGarden

  • Construction Year: 2024
  • Heating Type: FloorHeating
  • Storeys: 1
  • Bathrooms: 1.0
  • Heating Costs included in Service Charge: True

Rent & Utilities

Rent1090 €
Additional Costs150 € incl. heating costs
Deposit2180€

About this dream apartment

Property Description

Suchen Sie ein Zuhause, das modernes Design und eine warme Atmosphäre vereint? Diese lichtdurchflutete 3,5-Zimmer-Wohnung ist perfekt für Paare oder alle, die Wohnraum mit Stil und Komfort schätzen!

• Offener Wohn- und Essbereich mit direktem Zugang zur überdachten Terrasse

• großzügiger Küchenbereich

• Tageslichtbad mit Dusche und separatem Gäste-WC

• Energieeffizient: KfW-55-Standard für niedrige Energiekosten

• Fußbodenheizung: Individuell steuerbar in jedem Raum

• Hochwertige Materialien: ,Vinylboden, exklusive Sanitärausstattung

• Netzwerkanschlüsse in allen Zimmern

• Parkmöglichkeit: Tiefgaragenplatz verfügbar, der gerne dazugemietet werden kann.

Tiefgaragenstellplatz = 55,--€/Monat
Küche= 100,-- €/Monat

Diese traumhafte Wohnung ist ab 01.12.2025 bezugsfrei und wartet darauf, Ihr neues Zuhause zu werden.

Kontaktieren Sie uns für eine Besichtigung! Wir freuen uns auf Ihre Anfrage und stehen Ihnen für alle Fragen gerne zur Verfügung
(per Mail oder auch gerne telefonisch)

Ansprechpartner: Herr Kopp 0176 / 2094326 // d.kopp@kopp-haus.de


Furnishing

· gehobene Ausstattung

· Bauausführung mit den besten

Handwerkern aus der Region garantiert Ihnen

Top-Qualität und Wertbeständigkeit

· hochwertige Fenster mit 3-fach Verglasung /

Isolierglasfenster

· modernste Zentralheizungstechnik

mit regenerativer und kostensparender

Heiztechnik, unabhängig von Öl oder Gas

· Fußbodenheizung mit Einzelraumsteuerung

· Handtuchheizkörper in den Bädern

· hochwertiger Bauausführung

· Balkon / Terrasse, Vollbad, Gäste-WC,

bodengleiche Dusche und vieles mehr...

· großzügige Fensterflächen

· Wohnungen mit Terrasse

· Natursteinsimsen

· separater Abstellraum

· Gesundes Wohnraumklima

· Ökologische massive Bauweise mit

Tonziegelmauerwerk

-hochwertige Bauweise in KFW Effizienzhaus 55 Standard.


Location

Location description

Die Immobilie befindet sich in Horb am Neckar. In Laufnähe gibt es mehrere Restaurants, Bäckereien, Supermärkte und ein Café. Einkaufszentrum - Grundschule und Kindergarten sind vorhanden. Einige gute medizinische Versorgungen und verschiedene Erholungs- und Sportmöglichkeiten (u. a. einige Fitnessstudios) erreichen Sie ebenfalls im näheren Umkreis.
Die Ortschaft Bildechingen liegt 3,5 km nordöstlich von Horb am Neckar am Südwestrand des oberen Gäus bzw. am östlichen Rande des Nordschwarzwalds auf einer Höhe von 504 m ü. NN und hat ungefähr 2.200 Einwohner.
Infrastruktur (im Umkreis von 5 km):
Apotheke, Lebensmittel-Discount, Allgemeinmediziner, Kindergarten, Grundschule, Hauptschule, Realschule, Gymnasium, Gesamtschule, Öffentliche Verkehrsmittel

ohne-makler.net
Contact:
Privat vom Eigentümer

Contact now