DHH in Hohenaschau im Chiemgau - Ihre gemütliche Festung in den Bergen

Get the full address via contact
83229 Hohenaschau
Bayern
798.000 €
Selling Price
142 m²
Living Area
5
Rooms
TraumImmo-ID: TUN26Y2
Partner-ID: 383036
Partner-Property by: ohne-makler.net
Contact:
Privat vom Eigentümer

Contact now

Information

  • Type: Semi-Detached House
  • Living Area ca.: 142 m²
  • Free From: sofort
  • Rooms: 5
Guest-ToiletKitchenBalconyGarden

  • Property Area: 290.0
  • Construction Year: 2005
  • Condition: MintCondition
  • Heating Type: CentralHeating
  • Firing Type: Oil
  • Storeys: 3
  • Bathrooms: 1.0

Selling Price & Extra Costs

Selling Price798.000 €
Courtageno courtage for buyers

About this dream house

Property Description

Sie suchen nicht einfach ein Haus, sondern ein echtes Zuhause, eine kleine Festung – inmitten unberührter Natur, mit Raum für Ruhe, Bewegung und Lebensqualität? Willkommen im wunderschönen Oberbayern, willkommen im Chiemgau, willkommen in Ihrem neuen Zuhause.


Die Doppelhaushälfte (Baujahr 2005) liegt eingebettet in eine traumhafte, ruhige Umgebung – mit direktem Zugang zu den Bergen. Ob zu Fuß oder mit dem Mountainbike: von der Haustür aus starten Sie direkt in Ihre Auszeit.

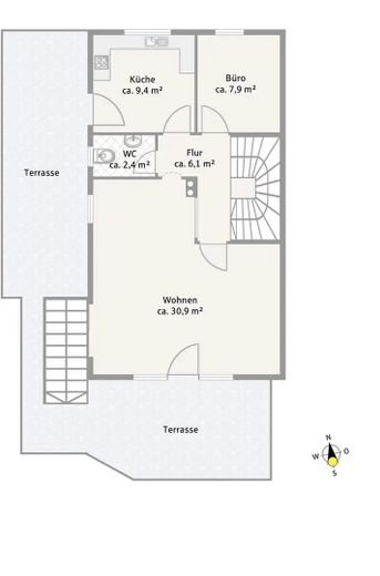
142 m² Wohnfläche | 290 m² Grundstück | Garage + Hobbyraum | Offener Sichtdachstuhl im Landhausstil | Einbauküche | Großes Badezimmer mit Dusche & Badewanne | Fußbodenheizung | u.v.m.


Furnishing

Das Haus im Überblick:

🏡 142 m² Wohnfläche – großzügig, hell und durchdacht
🌿 290 m² Grundstück mit Garten und 2 Terrassen in traumhafter Ruhelage
🪵 Landhausstil pur – offener, rustikaler Holzdachboden als Highlight
🛠️ Hobbyraum & Garage – viel Platz für Freizeit, Werkstatt oder Stauraum
🌄 Direkter Zugang zur Natur – Berge, Seen und frische Luft inklusive


Location

Location description

Die Doppelhaushälfte begeistert mit liebevollen Details, alpinem Flair und einem besonderen Wohngefühl - ob als Familiennest, Rückzugsort oder stilvolle Homebase mitten im Chiemgau. Hier stimmen Lage, Stil und Substanz. Ideal auch als Kapitalanlage oder für Wohnen & Arbeiten unter einem Dach.


Jetzt besichtigen, die Ruhe spüren – durchatmen - und auf Wunsch sofort einziehen.

ohne-makler.net
Contact:
Privat vom Eigentümer

Contact now