| Rent | 900 € |
|---|
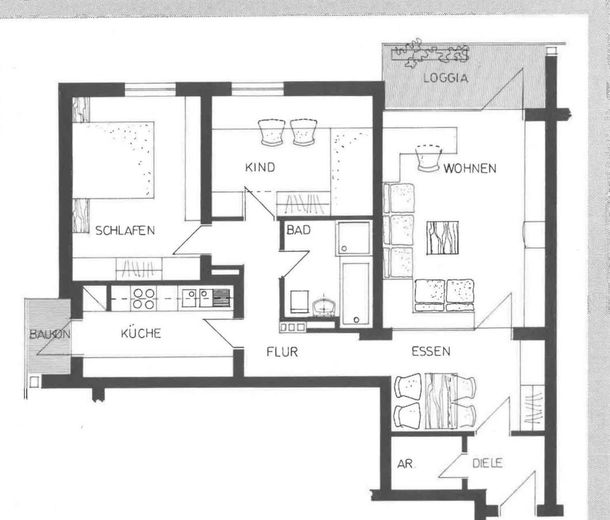
Diese frisch sanierte 3-Zimmer-Wohnung mit ca. 75 m² Wohnfläche bietet einen praktischen Grundriss und ein modernes Wohnambiente. Die Wohnung verfügt über eine neue Einbauküche sowie helle, gut geschnittene Räume.
Die Fassade wurde mit einem Wärmedämmverbundsystem ausgestattet und sorgt für ein angenehmes Raumklima und geringe Energiekosten. Ideal für Paare oder kleine Familien, die eine bezugsfertige Wohnung in gepflegtem Zustand suchen.
Die Immobilie liegt in zentraler und begehrter Lage von Buxtehude, in der Altländerstraße 51. Einkaufsmöglichkeiten, Schulen, Kindergärten und die charmante Altstadt sind fußläufig erreichbar.
Die S-Bahn-Station Buxtehude bietet eine direkte Verbindung nach Hamburg und Stade, und über die B73 sowie A26 besteht eine gute Anbindung an das Umland.
Die Umgebung überzeugt durch eine ruhige Wohnatmosphäre mit Nähe zur Natur des Alten Landes – ideal für alle, die stadtnah und dennoch grün wohnen möchten.