Wohnzimmer (Originalfoto)
Wohnzimmer (Originalfoto)
Wohnküche (Originalfoto)
Wohnküche (Originalfoto)
Gäste WC (Originalfoto)
Kinderzimmer (Originalfoto)
Arbeitszimmer (Originalfoto)
Schlafzimmer (Originalfoto)
Hobby/Schlafen (Originalfoto)
Hobby/Schlafen  (Originalfoto)
Bad en Suite (Originalfoto)
Duschbad 1. OG (Originalfoto)
EG
1. OG
Außen  (Originalfoto)
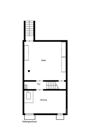
KG
Schlafzimmer (Originalfoto)
Sonnenterrasse (Originalfoto)
DG

Direkt einzugsbereit - Reihenhaus, großer Garten, Garage in Langenfeld Richrath

Get the full address via contact
40764 Langenfeld – Langenfeld (Rheinland)
Nordrhein-Westfalen
549.000 €
Selling Price
119 m²
Living Area
5
Rooms
TraumImmo-ID: VSRJR8T
Partner-ID: 401512
Partner-Property by: ohne-makler.net
Contact:
Angebot von Bastian Schiemann

Contact now

Information

  • Type: Mid-Terrace Town House
  • Living Area ca.: 119 m²
  • Free From: sofort
  • Rooms: 5
CellarGuest-ToiletGarden

  • Property Area: 276.0
  • Construction Year: 1966
  • Condition: FullyRenovated
  • Heating Type: CentralHeating
  • Firing Type: Gas
  • Storeys: 3
  • Usable Floor Space: 152.0
  • Bathrooms: 2.0

Selling Price & Extra Costs

Selling Price549.000 €
Courtageno courtage for buyers

About this dream house

Property Description

Feiern Sie Weihnachten in Ihrem neuen Zuhause!

+++ Inseratsbilder sind echte Fotos vom Haus +++

Ein großzügiges, lichtdurchflutetes Reihenhaus mit großem Garten und Garage in beliebter Lage von Langenfeld Richrath.

Das Haus verfügt über 1 großes Wohnzimmer mit ausreichend Platz für einen Essbereich, 1 Wohnküche, 2 Schlafzimmer, 2 Kinderzimmer / Arbeitszimmer, 2 Duschbäder, 1 WC, 1 Sonnenterrasse und 1 großzügigen Garten mit viel Privatsphäre.

- Wohnküche mit Blick in den Vorgarten
- Bodenbeläge: Eiche-Parkett und Fliesen
- Fenster aus 2025
- Weiße moderne Innentüren
- Helles Gäste-WC im Erdgeschoss
- Duschbad im 1. Obergeschoss
- Duschbad en Suite im 2. Obergeschoss
- Großzügige Terrasse im Garten
- Heizung aus 2025
- 2 großzügige Kellerräume, einer mit Zugang zum Garten
- 1 Garage + 2 Stellplätze vor der Garage


2-3 Gehminuten sind es bis zur nächsten Grundschule und Kita. Die nächste weiterführende Schule ist in 8-10 Minuten erreichbar.

Eine Besichtigung ist kurzfristig möglich. Vereinbaren Sie gerne einen Termin mit uns.

Weitere Unterlagen stellen wir Ihnen gerne zur Verfügung.


Other

Impressum
Bastian Schiemann
Max-Planck-Ring 14
40764 Langenfeld
E-Mail: mail@schiemann-immobilien.de


Location

Location description

Langenfeld Richrath - Gute Verkehrsanbindung, Supermärkte, Ärzte, Apotheken, Schulen, Kitas (Grundschule und Kita in 2-3 Gehminuten) und Wälder in der nahen Umgebung

ohne-makler.net
Contact:
Angebot von Bastian Schiemann

Contact now