Bad
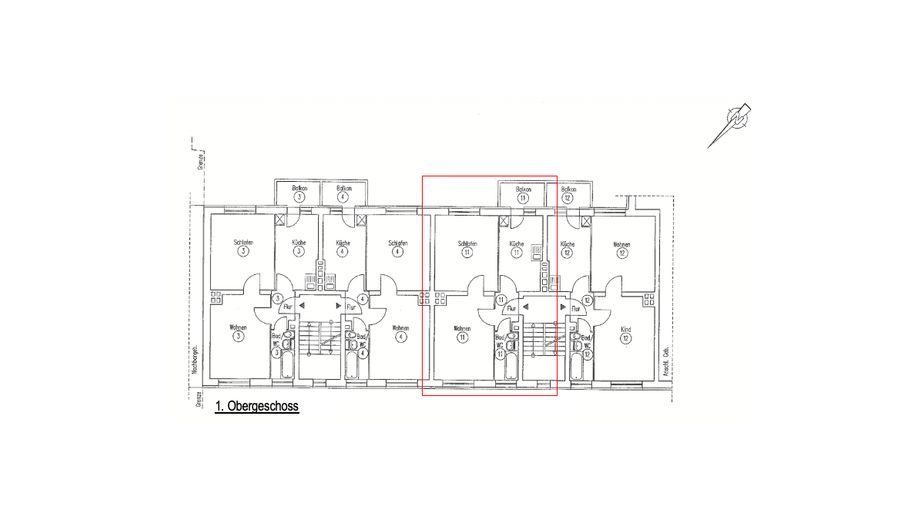
1. Obergeschoss
Nord-Westansicht
Süd-Ostansicht
Dachgeschoss
Schnitt
Keller
Schlafzimmer
Schlafzimmer
Wohnzimmer
Wohnzimmer
Schlafzimmer
Schlafzimmer
Bad
Küche
Balkon
Balkon
Küche
Bad
Küche
Garten
Gebäude

Helle 2-Zimmer Wohnung im 1. OG in Martinsviertel

Get the full address via contact
64289 Darmstadt – Darmstadt
Hessen
213.000 €
Selling Price
45 m²
Living Area
2
Rooms
TraumImmo-ID: W9Z8N4N
Partner-ID: 410972
Partner-Property by: ohne-makler.net
Contact:
Privat vom Eigentümer

Contact now

Information

  • Type: Flat
  • Storey: 1
  • Living Area ca.: 45 m²
  • Free From: Nach Vereinbarung
  • Rooms: 2
CellarBalcony

  • Construction Year: 1933
  • Condition: Modernized
  • Heating Type: CentralHeating
  • Firing Type: Gas
  • Storeys: 1
  • Bathrooms: 1.0

Selling Price & Extra Costs

Selling Price213.000 €
Courtageno courtage for buyers

About this dream apartment

Property Description

Diese helle 2-Zimmer-Wohnung mit ca. 45 m² Wohnfläche befindet sich im 1. Obergeschoss eines gepflegten Mehrfamilienhauses im beliebten Martinsviertel. Die Wohnung verfügt über ein Badezimmer und einen Balkon, der zum Entspannen einlädt. Ein Keller und ein Abstellraum im Dachgeschoss bieten zusätzlichen Stauraum.

Die Wohnanlage verfügt über einen Innenhof mit großzügiger Grünfläche.

Die Wohnung wird ab dem 1.1.2026 verfügbar sein.


Furnishing

In Wohn- und Schlafzimmer und im Flur gibt es einen Holzdielenboden. Das Laminat im Wohnzimmer ist schwebend verlegt und wird auf Wunsch von Mieter entfernt.

Die Küche und das Bad verfügen über einen Fließenboden.

Der Zustand der Wohnung ist normal und bietet Potenzial für individuelle Gestaltung.

Das Hausgeld zurzeit in der Höhe von 316 €/Monat ist inklusive der Nebenkosten für Heizung, Warmwasser, Wasser, Abwasser- und Abfallentsorgung, Straßenreinigung, Hausmeister, Gebäudeversicherung, usw.

Die Küchenzeile kann vom Mieter übernommen werden.

Folgende Sanierungs- und Modernisierungsarbeiten wurden in den letzten drei Jahren durchgeführt:

- Erneuerung des Heizkessels
- Sanierung der Kalt-, Warm- und Abwasserleitungen sowie der Zirkulationsleitungen
- Erstellung eines neuen Müllplatzes
- Grundreinigung der Treppenhäuser
- Erneuerung Heizkörper und WC im Bad


Location

Location description

Die Wissenschaftsstadt Darmstadt ist eine Stadt mit höchster "Zukunftsfähigkeit". Durch die Präsenz wissenschaftlicher Einrichtungen wird auf hohem Niveau entwickelt und produziert. Die Wirtschaft der Stadt wird durch zahlreiche namhafte und weltweit agierende Unternehmen geprägt. Zur Attraktivität trägt die geographische und verkehrsgünstige Lage bei: Der Naturpark Bergstraße / Odenwald bietet einen hohen Freizeitwert. Die Umliegenden Städte Frankfurt, Wiesbaden, Mainz, Aschaffenburg und Heidelberg sind in ca. 30 Minuten erreichbar. Der Flughafen Frankfurt liegt ca. 20 Minuten entfernt. Darmstadt hat ca. 170.000 Einwohner.

Die Wohnung liegt ca. 400 Meter von der UNESCO Welterbe Mathildenhöhe entfernt. Die Rosenhöhe und der angrenzende Darmstädter Stadtwald sind in wenigen Minuten fußläufig erreichbar und bieten die Möglichkeit zum Spazierengehen und zur sportlichen Betätigung. Die Innenstadt befindet sich in einer Entfernung von ca. 1,4 Kilometer.

Der Martinsviertel in Darmstadt ist ein lebendiger Stadtteil mit moderater Bevölkerungsdichte und einer guten Mischung aus Wohn- und Gewerbegebieten. Die Anbindung an den öffentlichen Nahverkehr ist ausgezeichnet. Die Nachbarschaft gilt als sicher und bietet eine angenehme Atmosphäre für Studierende, junge Berufstätige und Rentner.

ohne-makler.net
Contact:
Privat vom Eigentümer

Contact now