Moderne Praxisfläche mit Aufzug – optimal für Ärzte & Physiotherapeuten

Get the full address via contact
70499 Stuttgart / Weilimdorf
Baden-Württemberg
8
Rooms
TraumImmo-ID: WAGZ2GR
Partner-ID: 545293656
Partner-Property by: RegionalImmobilien24
Contact:
Anonymous

Contact now

Information

    • Rooms: 8

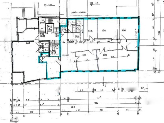
    • Property Area: 321.0

    Rent & Utilities

    Additional Costs1200 €
    Total Rent5550 €
    Courtageno courtage for buyers

    About this dream office

    Property Description

    Diese gepflegte Praxisfläche befindet sich in bester, zentraler Lage von Stuttgart-Weilimdorf. Sie liegt im 2. Obergeschoss eines gepflegten Geschäftshauses und ist bequem über einen Aufzug erreichbar – ideal für Patienten oder Kunden mit eingeschränkter Mobilität.

    Die Räumlichkeiten überzeugen durch eine helle und freundliche Atmosphäre sowie eine durchdachte Raumaufteilung, die sich perfekt für verschiedenste Praxis- oder Büroformen eignet. Dank der zentralen Lage profitieren Sie und Ihre Besucher von einer hervorragenden Erreichbarkeit mit öffentlichen Verkehrsmitteln sowie einer optimalen Infrastruktur in unmittelbarer Umgebung.

    Highlights:
    - Zentrale Lage mit hoher Sichtbarkeit
    - 2. Obergeschoss mit Aufzug
    - Ideal nutzbar als Praxisfläche oder Therapiezentrum
    - Helle und freundliche Räume
    - Gute Anbindung an öffentliche Verkehrsmittel
    - Vielfältige Einkaufsmöglichkeiten und Gastronomie in der Nähe

    Diese Fläche bietet Ihnen den idealen Rahmen, um Ihre Vision im Praxis- oder Therapiebereich zu verwirklichen.


    Location

    Contact:
    Anonymous

    Contact now