Vorderansicht.
P1030244
Rückansicht 04
P1020454
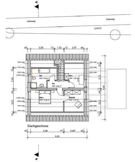
Dachgeschoss
P1020453
P1030242
Ansicht West
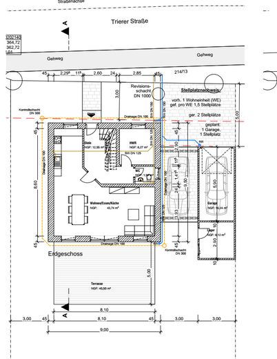
Erdgeschoss3
Ansicht Süd
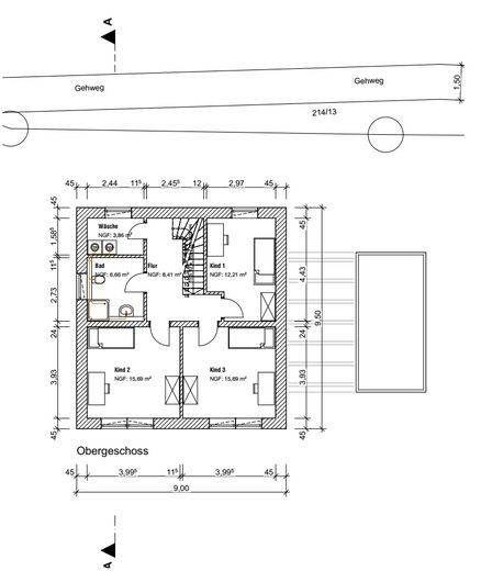
Obergeschoss

Baugrundstück mit Baugenehmigung für großzügiges freistehendes Wohnhaus mit Garage in Zerf

Get the full address via contact
54314 Zerf – Niederzerf
Rheinland-Pfalz
99.000 €
Selling Price
TraumImmo-ID: WSCD32C
Partner-ID: 382510
Partner-Property by: ohne-makler.net
Contact:
Angebot von Norbert Scherf

Phone:
0651 978780

Contact now

Information

    • Free From: Nach Vereinbarung

    • Property Area: 583.0

    Selling Price & Extra Costs

    Selling Price99.000 €
    Courtageno courtage for buyers

    About this dream livingsite

    Property Description

    Schönes Baugrundstück mit Baugenehmigung für großzügiges freistehendes Wohnhaus in gefragter Lage von Zerf

    Schönes Grundstück mit genehmigter Planung für ein großzügiges freistehendes Wohnhaus in gefragter Lage von Zerf.
    Das Grundstück ist ortsüblich erschlossen. Die Hausanschlüsse müssen durch den Erwerber erstellt werden. Die geplante Bebauung sieht ein großzügiges Wohnhaus 2-geschossig mit ausgebautem Dachgeschoß in einer Größe von 9 x 9 m vor. Es ist keine Bauverpflichtung
    vorhanden. Das Grundstück wird mit Baugenehmigung für ein freistehendes Wohnhaus verkauft. Die Planung ist nur beispielhaft. Es ist auch eine andere Planung in Abstimmung mit der Bauverwaltung möglich. Es ist keine Bauverpflichtung vorhanden
    Die jetzige Planung für dieses Objekt sieht im Erdgeschoß den großzügigen Wohnraum/Essbereich mit offener Küche von insgesamt ca. 42 m² vor. Dieser verfügt über mehrere Ausgänge auf die schöne Terrasse und in den Garten. Auf Wunsch kann die Küche wahlweise offen oder geschlossen gestaltet werden. Das Erdgeschoss wird durch den Technik- bzw. Abstellraum sowie das Gäste-WC vervollständigt. Im Obergeschoss befinden sich zwei große helle Kinderzimmer von jeweils ca. 16 m², ein weiteres helles Kinderzimmer von ca. 13 m², das Kinderduschbad mit Fenster sowie der Hauswirtschaftsraum mit Anschluss für Waschmaschine und Trockner. Das Dachgeschoß ist ebenfalls zu Wohnzwecken ausgebaut. Hier befindet sich das große Elternschlafzimmer mit Ankleide von insgesamt ca. 21 m², ein schönes Kinderzimmer/Büro von ca. 10 m² sowie das großzügige Elternbad mit Fenster (ausgestattet mit Wanne und Dusche). Die Wohnfläche beträgt ca. 182 m².


    Other

    Vereinbaren Sie einen Beratungs/Besichtigungstermin !

    In Zusammenarbeit mit einem Finanzierungsvermittler sind wir Ihnen gerne bei der Gestaltung Ihrer Finanzierung behilflich.
    Auf Wunsch kann der Kaufpreis bei entsprechender Bonität bis 100 % finanziert werden. Die Zinsen können z.B. auf die Dauer von 10 oder 15 Jahren festgeschrieben werden. Hierdurch können sich Ihre monatlichen Raten nicht verändern !

    Familien mit Kindern haben die Möglichkeit günstige öffentlliche Baudarlehen über die ISB Rheinland-Pfalz zu erhalten.

    Der Verkauf erfolgt provisionsfrei.

    Lassen Sie sich beraten.

    Weitere interessante Kauf- oder Mietangebote finden Sie unter www.scherf-immobilien.de


    Mit der Angebotsanfrage willigen Sie ein, dass die Firma Scherf Profi Immobilien Service GmbH, mit dem Sitz in Trier, Ihre personenbezogenen Daten zum Zweck der Übermittlung von Angeboten und Kaufverhandlungen mit Zusendung von weiteren Informationen aus dem Immobilienbüro verarbeitet und Ihnen diese Informationen zusendet bzw. Sie anruft. Sie werden hiermit ausdrücklich darüber informiert, dass Sie diese Einwilligung jederzeit und ohne Angaben von Gründen gegenüber dem Immobilienunternehmen widerufen werden kann.


    Location

    Location description

    Zerf, gefragter Wohnort ca 20 Autominuten von Trier. Zerf verfügt über eine sehr gute Infrastruktur. Grundschule mit Essen und Nachmittagsbetreuung, Kindertagesstätte mit Nachmittagsbetreuung, Supermarkt, Banken, Bäckereien, verschiedene Geschäfte, Gastronomie Ärzte, Apotheke etc sind im Ort vorhanden.
    Das Baugrundstück befindet sich Ortsrand von Zerf in der Trierer Straße. Kindergarten und Grundschule sind von hier auf kurzen Wegen erreichbar

    ohne-makler.net
    Contact:
    Angebot von Norbert Scherf

    Phone:
    0651 978780

    Contact now