Haus Einfamilienhaus Mehrfamilienhaus Mehrgenerationenhaus Villa Baugrundstück TOP Lage Overath

Get the full address via contact
51491 Overath – Untereschbach
Nordrhein-Westfalen
870.000 €
Selling Price
345 m²
Living Area
7
Rooms
TraumImmo-ID: WSZKKMS
Partner-ID: 381799
Partner-Property by: ohne-makler.net
Contact:
Privat vom Eigentümer

Phone:
0170 4152495
Mobile:
0170 4152495

Contact now

Information

  • Type: Single Family House
  • Living Area ca.: 345 m²
  • Free From: sofort
  • Rooms: 7
CellarHandicapped AccessibleGuest-ToiletKitchenBalconyGarden

  • Property Area: 1250.0
  • Construction Year: 1975
  • Condition: FullyRenovated
  • Heating Type: CentralHeating
  • Firing Type: Oil
  • Storeys: 3
  • Usable Floor Space: 488.0
  • Bathrooms: 4.0

Selling Price & Extra Costs

Selling Price870.000 €
Courtageno courtage for buyers

About this dream house

Property Description

Unter diesem Link gibt es einen fünfminütigen Film, der mit einer Drohne aufgenommen wurde, die durch das Haus fliegt und die nähere Umgebung, den Garten und die tolle Aussicht zeigt.
Bitte unbedingt angucken

https://youtu.be/jrv8cxRHIj4

Und hier gibt es einen weiteren Film, in dem man einen Blick auf die Innenräume hat.

https://youtu.be/SozZioXPYJU?si=bISqjHqlwWuuNwhv

1. Kurzprofil:

Wohnfläche: ca. 299 m²
Nutzfläche: ca. 480 m²
Grundstück: ca. 1 250 m² (optionale Erweiterung bis 2 560 m² möglich)

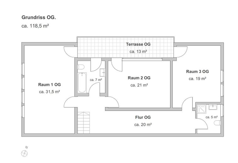
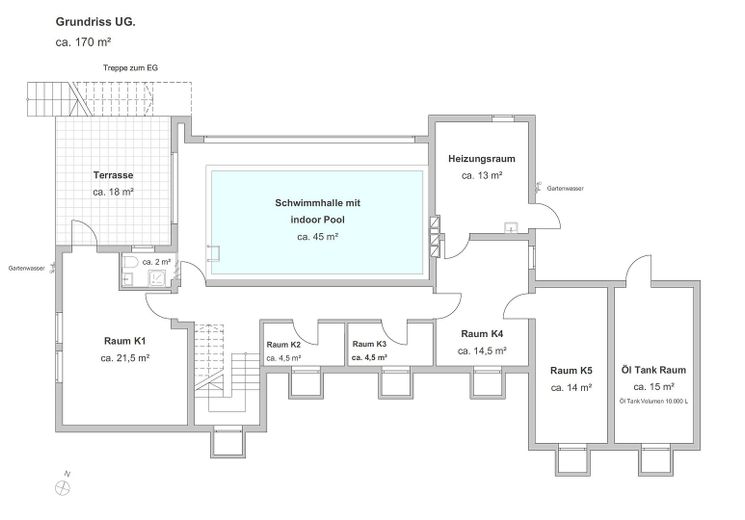
Zimmer: 7 (davon 3 Schlafzimmer) + Küche Diele Abstellräume Weinkeller Heizkeller Öl-Tankkeller usw. Die Anzahl der Räumlichkeiten entnehmen Sie bitte den angehängten Grundrissen.

Baujahr: 1975-76, laufend modernisiert – frisch renoviert, sofort bezugsfertig
Energieausweis: Bedarfsausweis, 80 kWh/(m²*a), Klasse C
Garagen / Stellplätze: eine Doppelgaragen, 2 Außenstellplätze vor dem Haus ca. 6 Aussenstellplätze sind möglich.
Makler frei direkt vom Eigentümer

2. Wohnerlebnis:

Das Haus verbindet zeitlose Architektur mit modernem Wohnkomfort. Großzügige Panoramafenster schaffen fließende Übergänge zwischen innen und außen und öffnen den Blick über das Bergische Land sowie in den Garten. Die Immobile bietet ein hohes Potenzial zur Entwicklung Ihrer individuellen Wohnträume.
Erdgeschoss: offenes Ensemble aus Wohn-, Ess- und Küchenbereich – perfekt für repräsentative Empfänge ebenso wie für gemütliche Familienabende. Von hier aus besteht ein Zugang zu einer Terrasse sowie über eine Treppe separat zum Garten (Möglichkeit einer Anliegerwohnung).
Obergeschoss: drei abgeschlossene Schlaftrakte mit zwei Bädern und Zugang zu einer Panorama Dachterrasse.
Gartengeschoss: beheizter Indoor-Pool als Herzstück, flankiert von potenziellen Hobby-, Wellness, Fitness- und Technikräumen. Zwei Räume bieten ebenfalls die Möglichkeit für den Ausbau verschiedener Saunen.

Besonderheiten:
Indoor-Pool, bodentiefe Panoramafenster, Dachterrasse, für die Lage seltenes großes Grundstück – Parkähnlich, perfekte Räumlichkeiten für Homeoffice
Großzügiger Abstand zur nachbarschaftlichen Bebauung hier guckt ihnen keiner auf den Teller, oder in irgendein Zimmer.


Furnishing

Hochwertige Ausstattung 45 cm dicke und sehr gut isolierte Wände und Böden


Other

4. Energie und Zustand:

Ein aktuelles Gutachten bestätigt den energetisch guten Standard des Gebäudes; weitere Sanierungen sind laut Energieberater nicht erforderlich

5. Ihr nächster Schritt:

Zögern Sie nicht und vereinbaren Sie Ihren persönlichen Besichtigungstermin:
Tel. 0170-4152495 | E-Mail villabergov@gmail.com


Location

Location description

3. Lage:

Ruhige Höhenlage in einem der begehrtesten Wohngebiete Overaths: ruhig, grün und dennoch hervorragend angebunden. Die geschickte Ausrichtung der Terrassen und Wohnbereiche schaffen einen besonderen Ort zur Beobachtung der Natur. Hier finden Sie eine seltene, sehr private Oase der Ruhe mit Weitblick. Die Immobilie befindet sich am Ende einer Sackgasse mit sehr geringem Autoaufkommen (kein Durchgangsverkehr) da die Nutzung lediglich über Anlieger erfolgt.

Geschäfte des täglichen Bedarfs, Ärzte, Freizeitangebote, Reiterhöfe, Kitas und Schulen erreichen Sie in wenigen Minuten. Bis zur Köln-Innenstadt sind es mit dem Auto ca. 25 Min.

ohne-makler.net
Contact:
Privat vom Eigentümer

Phone:
0170 4152495
Mobile:
0170 4152495

Contact now