Wohnung Ost
Wohnung Süd
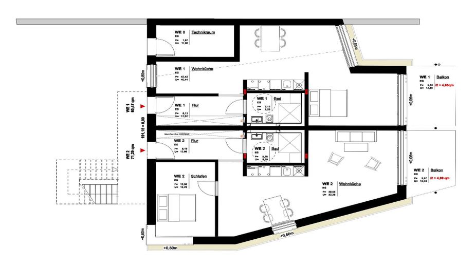
Erdgeschoss
2. Obergeschoss
Ansicht
Variante Erdgeschoss

Wohnen an den Städtischen Kliniken und der Universität

Get the full address via contact
34125 Kassel – Kassel
Hessen
320.805 €
Selling Price
71 m²
Living Area
3
Rooms
TraumImmo-ID: WZMHP94
Partner-ID: 400977
Partner-Property by: ohne-makler.net
Contact:
Privat von C. Sunder Plaßmann

Contact now

Information

  • Type: Flat
  • Storey: 0
  • Living Area ca.: 71 m²
  • Free From: Nach Vereinbarung
  • Rooms: 3
Handicapped AccessibleGarden

  • Construction Year: 2026
  • Condition: FirstTimeUse
  • Heating Type: FloorHeating
  • Storeys: 3
  • Usable Floor Space: 71.0
  • Bathrooms: 1.0

Selling Price & Extra Costs

Selling Price320.805 €
Courtageno courtage for buyers

About this dream apartment

Property Description

Exklusive Eigentumswohnung – Wohnen im KfW 40 Effizienzhaus - bis zu 40 % Finanzierung über das Wachstumschancengesetz
Hier verbindet sich anspruchsvolle Architektur mit höchster Energieeffizienz und einem außergewöhnlichen Wohnambiente. Diese 70 m² große Eigentumswohnung besticht durch ihren offenen Grundriss, hochwertige Materialien und einem Wohngefühl, das gleichermaßen modern wie behaglich ist.
Über den Eingangsbereich mit stilvollem Bad betreten Sie das Herzstück der Wohnung: den offenen, lichtdurchfluteten Wohn- und Essbereich mit edlem Eicheparkett. Hier verschmelzen Kochen, Wohnen und Entspannen zu einem harmonischen Lebensmittelpunkt.
Ein besonderes Highlight ist die großzügige Terrasse bzw. der Balkon mit Ost-Südausrichtung. Schon am Morgen begrüßt Sie die Sonne, während Sie den weiten Blick über den grünen Garten bis in das Kasseler Becken genießen – ein exklusiver Rückzugsort mitten im urbanen Leben.
Mit dem KfW-40-Standard investieren Sie in die Zukunft: modernste Gebäudetechnik, niedrige Energiekosten und attraktive Fördermöglichkeiten über das Wachstumschancengesetz schaffen langfristige Sicherheit.
Genießen Sie ein Wohngefühl, das Weitblick im wahrsten Sinne des Wortes verspricht.


Furnishing

KfW 40 Effizienzhaus – nachhaltiges Wohnen mit höchstem Energiestandard
Energieversorgung durch Photovoltaik und Luft-Wärmepumpe
Hochwertige Ausstattung: Eicheparkett, moderne Fliesen, 3-fach verglaste Fenster
Bodentiefe Fenster für lichtdurchflutete Räume
Großzügiger Balkon/Terrasse mit Ost-/Südausrichtung und Weitblick
Exklusive Architektur mit klarer, moderner Formensprache
Baujahr 2026–2027


Other

sunder plaßmann . noll
plan+bau GmbH

Claudia Sunder Plaßmann
Harald Noll
Treppenstraße 2
D - 34 117 Kassel
Deutschland

fon: +49 (0) 179 8259807
fon: +49 (0) 176 32299086

mail: post@csphn.de
web: www.csphn.de

Amtsgericht Kassel
Handelsregister HRB 18016
USt-Ident.-Nr. DE 325541730


Location

Location description

Die Lage verbindet urbanes Leben mit der Nähe zur Natur: In wenigen Minuten erreichen Sie die Kasseler Innenstadt mit dem Staatstheater, Cafés und Restaurants. Universität und Kliniken liegen ebenso in direkter Nähe wie das Kasseler Umland mit seinen vielfältigen Freizeitmöglichkeiten. Eine schnelle Anbindung an die Straßenbahn und die Autobahn rundet die hervorragende Lage ab.

ohne-makler.net
Contact:
Privat von C. Sunder Plaßmann

Contact now