Kinderzimmer 02
Kinderzimmer 02
Dusche
Gartenbereich
Gartenbereich
Front des Hauses
Flurbereich
Flurbereich
Küche
Küche
Eltern Schlafzimmer
Kinderzimmer 02
Front des Hauses
Flurbereich
Wohnbereich
Wohnbereich
Eltern Schlafzimmer
 Kinderzimmer 01
Badezimmer
Kinderzimmer 01
Badezimmer
Badezimmer
Badezimmer
Gartenbereich

Moderner Bungalow-Neubau

Get the full address via contact
41836 Hückelhoven
Nordrhein-Westfalen
620.000 €
Selling Price
146 m²
Living Area
4
Rooms
TraumImmo-ID: X3RCXDF
Partner-ID: 395820
Partner-Property by: ohne-makler.net
Contact:
Privat von Elvira Gering

Contact now

Information

  • Type: Single Family House
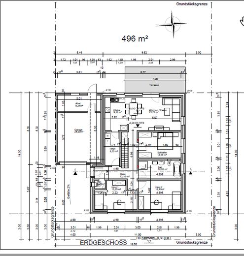
  • Living Area ca.: 146 m²
  • Free From: Nach Vereinbarung
  • Rooms: 4
Guest-ToiletKitchenGarden

  • Property Area: 487.0
  • Construction Year: 2025
  • Condition: MintCondition
  • Firing Type: FiringTypeDistrictHeating
  • Storeys: 1
  • Bathrooms: 1.0

Selling Price & Extra Costs

Selling Price620.000 €
Courtageno courtage for buyers

About this dream house

Property Description

Moderner Bungalow-Neubau (Baujahr 2025) mit 4 Zimmern, Garten und ausbaufähigem Dachgeschoss

Dieses anspruchsvolle Neubau-Objekt (Fertigstellung 2025) wurde als ebenerdiger 
moderner  Bungalow Neubau-Standard gebaut. Dieser Immobilie ist die konsequente, ebenerdige Bauweise, die ein barrierefreies und komfortables Wohnen auf einer einzigen Ebene ermöglicht und bietet einen perfekt durchdachten Grundriss mit fließenden Übergängen.
Eine freitragende Treppe erschließt das komplett ausbaufähige Dachgeschoss.

Besondere Merkmale im Überblick:

· Architektonisches Highlight: Die freitragende Treppe als modernes Gestaltungselement
· Moderne Ausstattung: Baujahr 2025 mit höchsten Energiestandards
· Praktische Aufteilung: 4 Zimmer auf einer Ebene mit separatem Abstellraum
· Eigener Außenbereich: Separater Garten für Erholung und Freizeit
· Flexible Küchenlösung: Einbauküche gegen Aufpreis übernehmbar
Zusätzliches Potenzial: Das komplett ausbaufähige Dachgeschoss bietet vielfältige Nutzungsmöglichkeiten
Gästebereich, Homeoffice, Hobbyraum, Kinderspielbereich

Dieses Objekt vereint ebenerdiges Wohnen mit der Möglichkeit der individuellen Raumerweiterung und bietet damit maximale Gestaltungsfreiheit für Ihre persönlichen Wohnvorstellungen.


Furnishing

Ein entscheidender Mehrwert dieser Immobilie ist das vollständig ausbaufähige Dachgeschoss. Diese zusätzliche Ebene bietet erheblichen Nutzungsspielraum und kann komplett zu Wohnzwecken genutzt werden – ideal für ein Gästebereich, ein separates Kinderreich, ein privates Homeoffice oder ein geräumiges Hobbyzimmer.


Location

Location description

Kleingladbach befindet sich angrenzend an Hückelhoven und besticht durch seine ruhige.
Kleingladbach ist ideal für alle, die das Leben im Grünen schätzen, aber nicht auf eine gute verkehrstechnische Anbindung verzichten möchten. Es vereint Ruhe mit der Nähe zu den zentralen Versorgungsmöglichkeiten Einkaufsmöglichkeiten, Apotheken, Schulen, Restaurats in der Hückelhovener Kernstadt.

ohne-makler.net
Contact:
Privat von Elvira Gering

Contact now