Titelbild
2. OG - Wohnen
2. OG - Wohnen/Essen
2. OG - Küche
2. OG - Küche
2. OG - Schlafen
2. OG - Schlafen
2. OG - Eingang Wohnung
Ansicht - Oben
Treppenhaus (Allgemein)
Treppenhaus (Allgemein)
Treppenhaus (Allgemein)
2. OG - Wohnen
2. OG - Balkon
2. OG - Küche
2. OG - Küche
2. OG - Balkon
2. OG - Balkon
2. OG - Garderobe
2. OG - Schlafen
2. OG - Bad
2. OG - Bad
Ansicht - Stadtlage
Ansicht - Süd
Ansicht - Süd
EG - Abstellräume
Außen - Eingang Straße
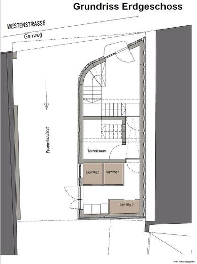
Grundriss - EG
Außen - Ansicht Straße
Grundriss - Wohnung
EG - Abstellräume
2. OG - Balkon

+++ Stilvolle Wohnung zum Erstbezug im Herzen der Altstadt inkl. Einbauküche und Balkon

Westenstraße 39a
85072 Eichstätt – Eichstätt
Bayern
960 €
Rent without service charge
58 m²
Living Area
2
Rooms
TraumImmo-ID: XQ96RJM
Partner-ID: 393235
Partner-Property by: ohne-makler.net
Contact:
Angebot von Team 1516 Immobilien

Contact now

Information

  • Type: Flat
  • Storey: 2
  • Living Area ca.: 58 m²
  • Free From: sofort
  • Rooms: 2
Guest-ToiletBalcony

  • Construction Year: 2025
  • Condition: FirstTimeUse
  • Heating Type: CentralHeating
  • Heating Costs included in Service Charge: True

Rent & Utilities

Rent960 €
Additional Costs174 € incl. heating costs

About this dream apartment

Property Description

Die hier angebotene exklusive und moderne Wohnung (Nr. 3) ist Teil eines Neubaus mit 3 Wohneinheiten und ist ab sofort bezugsbereit.

Das Gebäude und sein Haupteingang befinden sich unmittelbar an der Westenstraße. Die Stellplätze sind im rückwärtigen Teil des Grundstücks angelegt und können durch eine Durchfahrt im Hauptgebäude erreicht werden. Zusätzlich verfügt das Objekt über einen zweiten Eingang an der Rückseite, der an den zur Wohnung gehörenden Abstellräumen vorbeiführt und einen alternativen Zugang zum Gebäude ermöglicht. Die Wohnung Nr. 3 befindet sich im 2. Obergeschoss, während die Wohnung Nr. 2 als Maisonettewohnung das 1. und 2. Obergeschoss umfasst. Die Wohnung Nr. 1 ist im 1. Obergeschoss gelegen.

Die Wohnungen sind über das helle Treppenhaus und die großzügig gestaltete Treppe zugänglich. Ein Aufzug ist nicht installiert.

Im zweiten Obergeschoss angekommen, eröffnet sich der Zutritt zur hier angebotenen Wohnung Nr. 3, welche in erster Linie mit einer hohen Bauqualität und einer entsprechend gehobenen Ausstattung und einem hohen Komfort besticht. Besonders hervorzuheben ist die Ausrichtung des Objekts nach Südwesten, welche Ihnen nach einem anstrengenden Arbeitstag noch die Chance auf einige schöne Sonnenstrahlen gewähren sollte.

Wohnung Nr. 3 befindet sich im westlichen Teil der Haushälfte und bietet eine durchdachte Raumaufteilung. Sie verfügt über zwei Zimmer und ein modernes Badezimmer mit einer geräumigen Walk-In Dusche. Zusätzlichen Stauraum bietet ein Abstellraum, der sich praktischerweise hinter der Küche befindet. Gleich rechts vom Eingang ist ein separates Gäste-WC platziert, was den Komfort für Bewohner und Besucher erhöht.

Der Flur bietet genügend Platz, um eine Garderobe einzurichten, in der Jacken und Schuhe bequem verstaut werden können. Von hier aus gelangt man in den lichtdurchfluteten Wohn- und Essbereich, der nahtlos in den Kochbereich mit integrierter Küche übergeht. Ein besonderer Vorteil für Mieter ist, dass die Küche bereits im Mietpreis enthalten ist und keine zusätzliche Ablöse erforderlich ist.

Vom Wohn- und Essbereich gelangt man direkt in das Schlafzimmer, das großzügig geschnitten ist und ausreichend Platz für ein Bett, eine Kommode sowie einen Kleiderschrank bietet. Zudem ist das Badezimmer direkt vom Schlafzimmer aus zugänglich. Das Bad ist modern ausgestattet und verfügt über eine Toilette, einen Waschtisch sowie eine geräumige, begehbare Dusche. Zusätzlich besteht die Möglichkeit, die Waschmaschine direkt im Badezimmer anzuschließen.

Ein besonderes Highlight dieser Wohnung sind die bodentiefen Fenster im Wohn- und Essbereich. Diese großzügigen Fensterelemente erfüllen gleich mehrere Funktionen. Zum einen lassen sie den Raum in einem hellen, freundlichen Licht erstrahlen und schaffen so eine angenehme Atmosphäre. Zum anderen bieten sie einen wundervollen Ausblick über die Altmühl bis hin zur imposanten Willibaldsburg, was dem Wohnraum eine einzigartige Perspektive verleiht. Darüber hinaus dienen diese Fenster als Zugang zum Balkon, der als erweiterter Wohnbereich im Freien genutzt werden kann.

Im Erdgeschoss des Gebäudes ist ein zur Wohnung gehörender absperrbarer Stauraum vorhanden.


Furnishing

Folgende Ausstattungsmerkmale zeichnen das moderne und exklusive Objekt aus:
- Erstbezug
- Küche mit Ofen, Herd (Elektro) und Kühl-/Gefrierkombination
- Bodenheizung
- Bad mit Walk-In Dusche, WC, Waschbecken und Waschmaschinenanschluss
- separates Gäste WC
- Balkon (Ausrichtung süd-west)
- Laminatböden in Wohn- und Schlafräumen
- Außenstellplatz
- Treppenhaus (u.a. integrierte Wand Beleuchtung)
- Fahrradabstellplatz
- Holz-Alu Fenster
- Luft-Wasser-Wärmepumpe
- Lüftungsanlage mit Wärmerückgewinnung


Other

Die Wohnung ist ab sofort verfügbar und wird unbefristet vermietet.

Zusammengefasst setzt sich die Miete wie folgt zusammen:
- Wohnung Grundmiete (kalt) 960,- €
- Grundmiete Stellplatz (kalt) 70,- €
- Betriebskostenvorauszahlung 174,-

Im Rahmen der Kaution sind 2 Kaltmonatsmieten zu leisten.

Die vorhandene Einbauküchen ist bereits im Mietpreis inkludiert. Eine separate Ablöse ist nicht zu leisten.

Optimalerweise ist die anmietende Person Nichtraucher und hält keine Haustiere.

ACHTUNG: Das Betreten des Grundstücks bzw. der Baustelle ist OHNE vorherige Abstimmung und OHNE Begleitung der Makler ausdrücklich untersagt!!

Wir freuen uns auf Ihre Anfrage!
Ihr Team von 1516 Immobilien.


Location

Location description

Das Objekt befindet sich zentral gelegen in der historischen Altstadt der großen Kreisstadt Eichstätt (Postleitzahl 85072, ca. 14.000 Einwohner). Der Marktplatz, welcher zweimal pro Woche in Form eines Wochenmarkts ein breites Angebot an frischen und regionalen Produkten anbietet, ist nur ca. 200 Meter entfernt.

Durch die zentrale Lage sind verschiedene Einzelhandelsgeschäfte, Ärzte, Praxen, Apotheken, Kanzleien, Bildungseinrichtungen, die Klinik Eichstätt sowie touristische, kirchliche und kulturelle Einrichtungen schnell zu Fuß oder mit dem Rad erreichbar. Zu erwähnen ist hier selbstverständlich auch die katholische Universität Eichstätt-Ingolstadt, deren Institute und Einrichtungen in verschiedenen Gebäuden im kompletten Stadtbereich untergebracht sind.

Neben den "klassischen" Bildungseinrichtungen (Kindergärten, Grundschulen, Hauptschulen, Realschulen und Gymnasien) befindet sich in Eichstätt die zweite Bereitschaftspolizeiabteilung, welche unter anderem die Ausbildung des Polizeinachwuchses verantwortet.

Im östlich gelegenen Gewerbegebiet Sollnau sind verschiedene Vollsortimenter, Baumärkte, Fitnessstudios, Autohäuser und mittelständische Unternehmen angesiedelt. Ergänzt wird dieses Angebot durch Firmen der unterschiedlichsten Branchen, welche sich in den umliegenden Gemeinden niedergelassen haben.

Zur Erholung und einer perfekten Work-Life-Balance lässt das Altmühltal und die sich direkt vor der Wohnung befindliche Altmühl natürlich kein Wünsche offen. Aber auch das nur wenige Meter entfernte Inselbad trägt zur Entspannung bei.

Über den Bahnhof Eichstätt-Stadt (ca. 300 Meter von der Wohnung entfernt) ist eine Anbindung an die nächst größeren Städte mit Ingolstadt, Treuchtlingen, Weißenburg, Nürnberg und München gegeben.

ohne-makler.net
Contact:
Angebot von Team 1516 Immobilien

Contact now