Geschmackvolle 3-Zimmer-Wohnung mit Einbauküche in Wackersdorf

Tulpenstr. 18a
92442 Wackersdorf – Alberndorf
Bayern
1089 €
Rent without service charge
99 m²
Living Area
3
Rooms
TraumImmo-ID: YFZNVQ3
Partner-ID: 413110
Partner-Property by: ohne-makler.net
Contact:
Privat von Julian Braun

Contact now

Information

  • Type: Flat
  • Storey: 1
  • Living Area ca.: 99 m²
  • Free From: sofort
  • Rooms: 3
KitchenBalcony

  • Condition: MintCondition
  • Heating Type: SelfContainedCentralHeating
  • Firing Type: Gas
  • Storeys: 2
  • Bathrooms: 1.0
  • Heating Costs included in Service Charge: True

Rent & Utilities

Rent1089 €
Additional Costs110 € incl. heating costs
Deposit2376€

About this dream apartment

Property Description

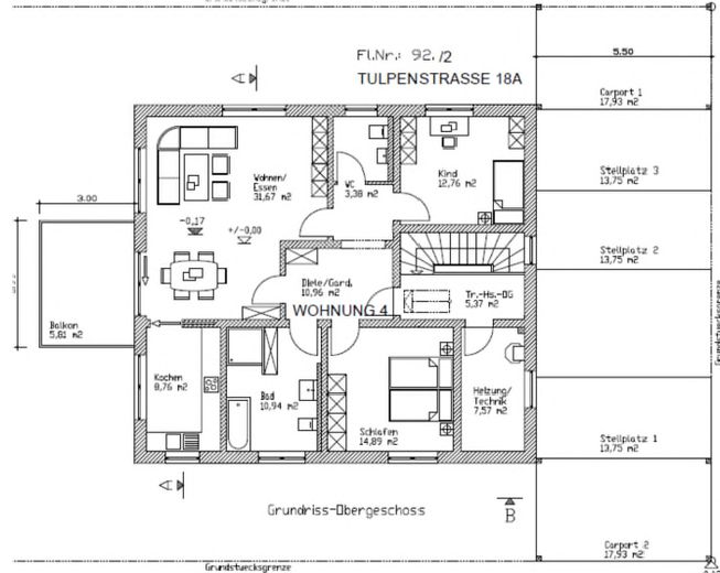
Ab dem 15.12.2025 kann die ansprechende Wohnung, die im 1. Stock liegt, bezogen werden. Die Wohnung verfügt über vier einladende Zimmer. Auf dem Balkon lässt es sich wunderbar vom Alltagsstress erholen. Ihnen stehen außerdem eine Einbauküche sowie ein Stellplatz und ein Carport mit Wall Box für Ihr Auto zur Verfügung.


Location

Location description

Das Objekt liegt in Wackersdorf. In der Nähe befindet sich Schwandorf. Fußläufig von der Immobilie entfernt erreichen Sie zwei Restaurants und einen Supermarkt. Auch eine Bar, ein Modegeschäft, eine Apotheke und einen Tierarzt gibt es in der Nähe. Einige Museen, eine gute medizinische Versorgung, diverse Erholungs- und Sportangebote (u. a. eine Grün- und Parkanlage) und interessante Ausgehmöglichkeiten gibt es schließlich ebenfalls im größeren Umkreis.

ohne-makler.net
Contact:
Privat von Julian Braun

Contact now