Verkaufsraum
Arbeitszimmer
Küchenzeile
Gäste WC
Fassade
Arbeitszimmer
Beleuchtung
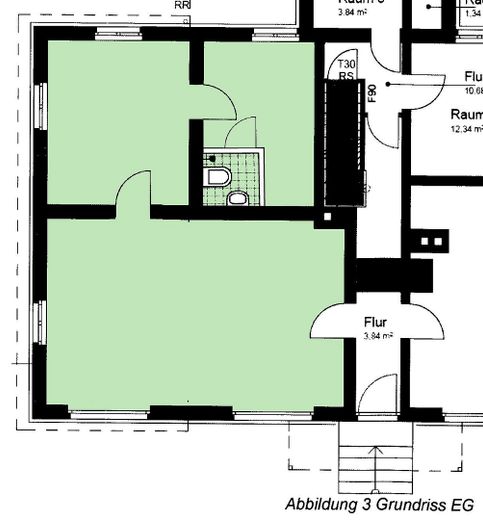
Grundriss Laden
Verkaufsraum

Ladengeschäft in Toplage am Rathausplatz Tegernsee – kernsaniert & bezugsfertig

Rathausplatz 2
83684 Tegernsee – Tegernsee
Bayern
1400 €
Rent without service charge
TraumImmo-ID: ZCPWNCC
Partner-ID: 403568
Partner-Property by: ohne-makler.net
Contact:
Privat von Quirin Joseph Steinbacher

Contact now

Information

  • Type: Office Floor
  • Storey: 0
  • Free From: 01.01.2026
Guest-ToiletKitchen

  • Construction Year: 1848
  • Condition: Refurbished
  • Heating Type: CentralHeating
  • Firing Type: Gas
  • Storeys: 1
  • Heating Costs included in Service Charge: True

Rent & Utilities

Rent1400 €
Additional Costs100 € incl. heating costs
Heating Costs50 €
Deposit4000€
Courtageno courtage for buyers

About this dream office

Property Description

Dieses moderne Ladengeschäft im Herzen von Tegernsee bietet Ihnen die perfekte Kombination aus repräsentativer Lage, moderner Ausstattung und hoher Frequenzlage.

Die Ladenfläche wurde 2013 aufwendig kernsaniert und präsentiert sich in einem sehr gepflegten, neuwertigen Zustand. Dank effizienter Haustechnik profitieren Sie von niedrigen Heiz- und Betriebskosten.

Die Fläche eignet sich ideal für Einzelhandel, Dienstleistung, Showroom, Praxis oder Büro. Große Schaufensterflächen bieten beste Sichtbarkeit und Werbewirkung.


Location

Location description

Das Objekt liegt direkt am Rathausplatz, umgeben von Bank, Ärzten, Rathaus und der Touristeninformation – eine der besten Adressen im Ortskern. Eine Tiefgarage befindet sich unmittelbar gegenüber, was Ihren Kunden und Mitarbeitern kurze Wege garantiert.

ohne-makler.net
Contact:
Privat von Quirin Joseph Steinbacher

Contact now