Arbeitsplatz Ausstattung
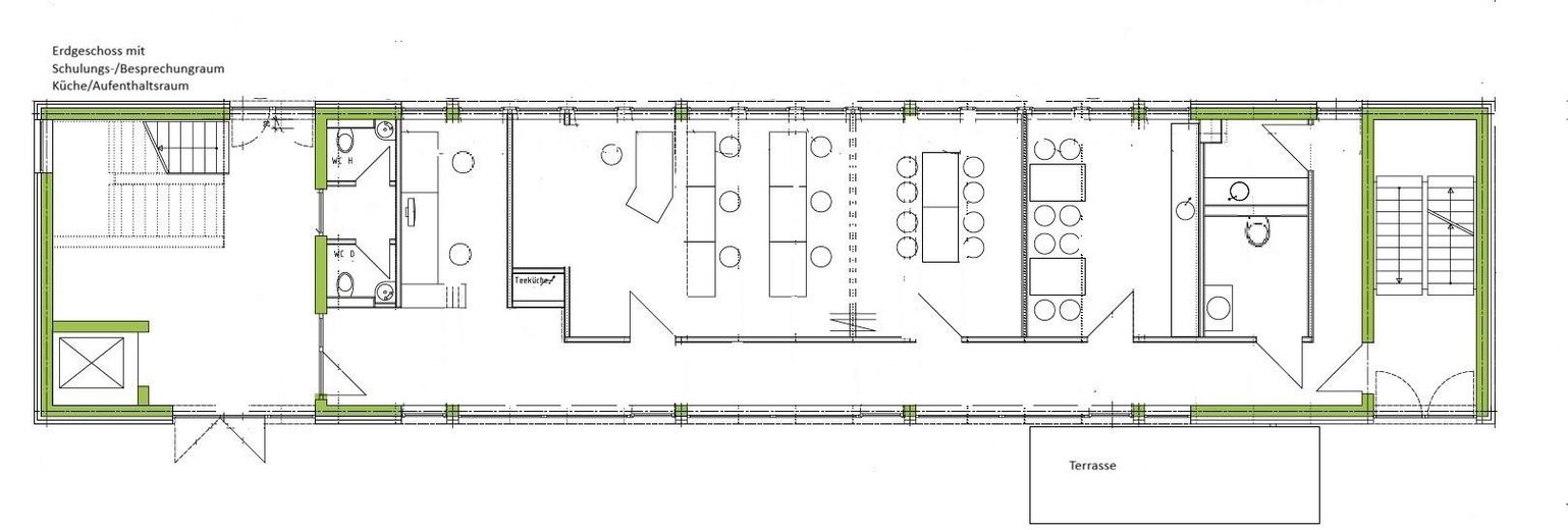
EG
Flur mit Gartenansicht
Schulungs-/Meetingraum
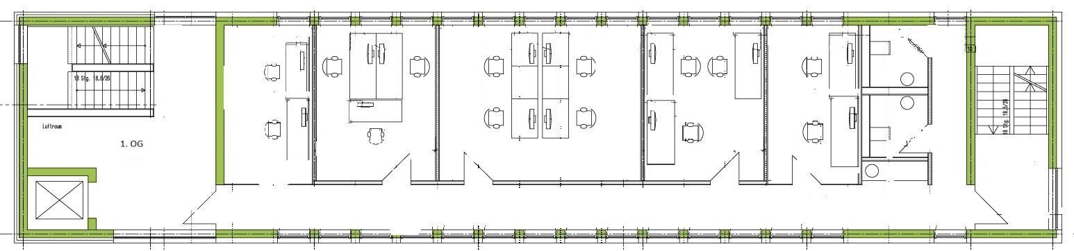
1. OG
Küche/Aufenthalt
Empfang
Gebäude Außenansicht
Repräsentativer Eingang

Premium-Büro in Ditzingen – 380 m² auf 2 Etagen, sofort bezugsfertig!

Dieselstr. 10
71254 Ditzingen – Ditzingen
Baden-Württemberg
5700 €
Rent without service charge
TraumImmo-ID: ZGHV2XP
Partner-ID: 438348
Partner-Property by: ohne-makler.net
Contact:
Privat vom Eigentümer

Contact now

Information

  • Type: Office Floor
  • Storey: 0
  • Free From: Nach Vereinbarung
Guest-ToiletKitchenBalconyGarden

  • Condition: MintCondition
  • Heating Type: FloorHeating
  • Firing Type: Geothermal
  • Storeys: 2

Rent & Utilities

Rent5700 €
Courtageno courtage for buyers

About this dream office

Property Description

Ihr neues Premium-Büro in Ditzingen – 380 m² auf 2 Etagen, sofort bezugsfertig! Flexibel anpassbar.

Sie beziehen 2 Etagen in einer exklusiven Büroimmobilie im zentrumsnahen Gewerbegebiet Ditzingen. Perfekt für wachsende Teams, die Wert auf eine hochwertige und ruhige Umgebung legen.

Sie müssen nichts mehr organisieren. Hochwertige Netzwerk-Verkabelung, WLAN und auf Wunsch auch Arbeitsplatzrechner stehen bereit, die Küche ist voll ausgestattet. Ihr Team kann sofort produktiv sein.

Die Design-Möblierung mit USM Haller Möbeln, die Sie bei Bedarf mieten können, bietet einen klaren Vorteil für Ihre Einrichtung und Ihren Arbeitskomfort. Das Raumkonzept fördert ein ruhiges Arbeitsklima.

Die im Grundriss eingezeichneten Arbeitsplätze sind stellen ein Beispiel dar. Die Einteilung kann individuell an Ihre Wünsche angepasst werden.

Die Böden sind mit hochwertigem Teppich und Fliesen ausgeführt und schaffen eine professionelle, moderne Atmosphäre. Eine vollausgestattete Küche im Erdgeschoss sowie zusätzliche Teeküchen im Erdgeschoss und im 1. OG stehen Ihnen zur Verfügung und ergänzen das Angebot optimal.
An den Aufenthaltsraum im Erdgeschoss schließt eine Terrasse im begrünten Garten an.
Als weiteres Plus befindet sich im Erdgeschoss ein großer moderner und vollausgestatteter Schulungs-/Besprechungsraum, der durch eine variable Wand vergrößert werden kann und mit moderner Online-Konferenz Technik ausgestattet ist. Kombiniert mit der Terrasse im Garten eine tolle Location für Mitarbeiter oder Kunden-Events.

Ihre Gäste empfangen Sie im repräsentativen Empfangsbereich.
Direkt vor dem Gebäude befinden sich PKW-Parkplätze sowie ein Fahrrad-Unterstand.

Diese Bürofläche bietet Ihnen eine sofort beziehbare Lösung, modern und funktional gestaltet. Ökologisch und nachhaltig durch Nutzung von Erdwärme, Photovoltaik und Regenwasseraufbereitung.

Die Vermietung erfolgt direkt vom Vermieter - Keine Maklergebühren.
Sichern Sie sich Ihren Besichtigungstermin noch heute..


Furnishing

Hochwertige, moderne Ausstattung mit einem klaren und durchgängigen Design.
Top elektronische Ausstattung mit Bus-Systemen und aktuellste IT-Ausstattung.
Modern ausgestatteter Schulungs- / Besprechungsraum, der durch eine variable Wand erweitert werden kann.
Zwei Besprechungsräume mit großem Bildschirm für Schulung oder Videokonferenzen.
Die komplette DV-Verkabelung auf dem neuesten Stand der Technik ermöglicht ein sofortiges Arbeiten.
Auf Wunsch bieten wir die professionelle Betreuung Ihres Netzwerkes an und bieten weitere IT-Dienstleistungen für Sie.
Moderne und umfangreiche Sicherheitseinrichtungen zum Schutz des Gebäudes und des Grundstücks.
Möbliert mit USM Haller Designmöbeln, die auf Wunsch mit gemietet werden können.
Voll ausgestattete Küche plus zwei vollausgestattete Kaffeepoints im EG und 1. OG.
Große Terrassenbereiche in einem begrünten Garten.
Fußboden mit hochwertigen Teppichböden, Fliesen.
Aufzug.
Parkplätze direkt vor dem Gebäude können hinzugemietet werden
Fahrradunterstand.


Location

Location description

Im zentrumsnahen Gewerbegebiet Ditzingen. Optimale Anbindung an öffentliche Verkehrsmittel und Autobahn sowie dem Stadtkern Ditzingen.

ohne-makler.net
Contact:
Privat vom Eigentümer

Contact now