| Selling Price | 498.000 € |
|---|---|
| Courtage | no courtage for buyers |
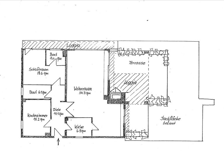
Diese attraktive 3-Zimmer-Penthousewohnung mit 120m² Wohnraumfläche bietet Ihnen modernen Wohnkomfort und eine durchdachte Raumaufteilung in einer beliebten Lage in Hilden. Mit einer großzügigen Dachterrasse und einer hervorragenden Ausstattung ist diese Wohnung ideal für alle, die sowohl Raum zur Entspannung als auch einen praktischen Grundriss schätzen.
Die Wohnung überzeugt durch einen großen, offenen Wohn- und Essbereich, der dank der großen Fensterfronten besonders hell und einladend wirkt. Hier genießen Sie nicht nur viel Tageslicht, sondern auch einen wunderbaren Blick ins Grüne. Die Küche ist ein abgegrenzter Raum und bietet ausreichend Platz für Ihre individuellen Wünsche.
Zwei Badezimmer – eines mit einer Dusche und eines mit einer Badewanne – bieten Ihnen sowohl Funktionalität als auch Komfort. Beide Badezimmer sind mit Fenstern ausgestattet, was für eine gute Belüftung und Tageslicht sorgt.
Ein echtes Highlight dieser Wohnung ist die großzügige Dachterrasse inkl. Balkon mit gesamt 70 m², die nach Süden ausgerichtet ist und Ihnen einen unverbaubaren Blick auf den Menzelsee bietet. Hier können Sie sonnige Stunden im Freien genießen, entspannen oder gesellige Abende mit Freunden verbringen.
Die Wohnung befindet sich in einem sehr guten Zustand, ohne Renovierungsstau, und bietet einen praktischen und gut durchdachten Grundriss. Ein Tiefgaragenstellplatz sowie ein Kellerabteil runden das Angebot ab und sorgen für zusätzlichen Komfort und Stauraum.
Die Wohnung ist mit hochwertigen Steinfließen ausgelegt. Zur Terrasse befinden sich zwei bodentiefe Glasschiebetüren (Aluminium-Rahmen), im Wohnzimmer zudem noch ein weiteres großes Fenster. Alle Fenster in der Wohnung verfügen über elektrische Jalousien und lassen sich so problemlos abdunkeln.
Das kleine Badezimmer mit Duschbad ist deckenhoch verfliest. Das große Badezimmer wurde gehoben renoviert und modernisiert und inkludiert eine Badewanne. Beide Badezimmer sind aufgrund der vorhandenen Fenster natürlich belichtet und zu lüften. Im Schlafraum befindet sich eine große Fensteranlage mit Balkontüre. Alle Wohnräume verfügen über Telefon- sowie TV-Anschlüsse. Auf der Terrasse befindet sich ein kleiner und ein großer Abstellraum, jeweils verschlossen mit einer Naturholztüre. Der große Abstellraum verfügt zudem über einen Strom- sowie Wasseranschluss. Die Terrasse, der lange Balkon sowie die Abstellräume sind ebenfalls gehoben modernisiert worden und mit großen Natursteinplatten ausgelegt.
Die Wohnung liegt in einer besonders gut angebundenen und lebensfreundlichen Lage im Herzen von Hilden. Durch die direkte Anbindung an die Autobahnen A46 und A3 ist die Wohnung ideal für Pendler, die schnell nach Düsseldorf, Köln oder Wuppertal gelangen möchten. Die zentrale Lage ermöglicht es, in kurzer Zeit die wichtigsten Städte der Region zu erreichen, ohne auf eine ruhige und entspannte Wohnumgebung verzichten zu müssen.
Die Infrastruktur in der Umgebung lässt keine Wünsche offen. Zahlreiche Supermärkte, Drogerien und Ärzte sind in wenigen Minuten mit dem Auto oder Nahverkehr zu erreichen und gewährleisten eine bequeme Nahversorgung. Auch Schulen und Kindergärten sind in der näheren Umgebung zu finden, was die Lage besonders für Familien attraktiv macht.
In unmittelbarer Nähe befindet sich eine Therme, die für entspannende Stunden sorgt. Darüber hinaus gibt es viele Grünflächen, Seen und Erholungsgebiete, die zu Spaziergängen und Outdoor-Aktivitäten einladen. Die Region bietet zudem eine Vielzahl von Sporteinrichtungen, kulturellen Angeboten und Freizeitparks, die für Abwechslung sorgen und die hohe Lebensqualität der Gegend unterstreichen.