| Selling Price | 399.000 € |
|---|---|
| Courtage | no courtage for buyers |
Altbaucharme trifft Designer-Modernisierung in Speldorf/Broich
Einziehen. Ankommen. Wohlfühlen.
Diese außergewöhnlich stilvolle 3,5-Zimmer-Altbauwohnung im 1. Obergeschoss eines sehr gepflegten und ordentlichen 3-Familienhauses (Baujahr 1933, umfassend modernisiert 2001, 2025 hochwertig renoviert) vereint das Beste aus zwei Welten: klassische Altbau-Eleganz und modernen Wohnkomfort.
Schon beim Betreten spürt man die besondere Atmosphäre: ca. 3 Meter Deckenhöhe, ein stimmiges Raumgefühl und eine durchdachte, moderne Ausstattung. Die Wohnung ist komplett mit Echtholzparkett ausgestattet – inklusive der Treppe – und wirkt dadurch warm, hochwertig und absolut zeitlos.
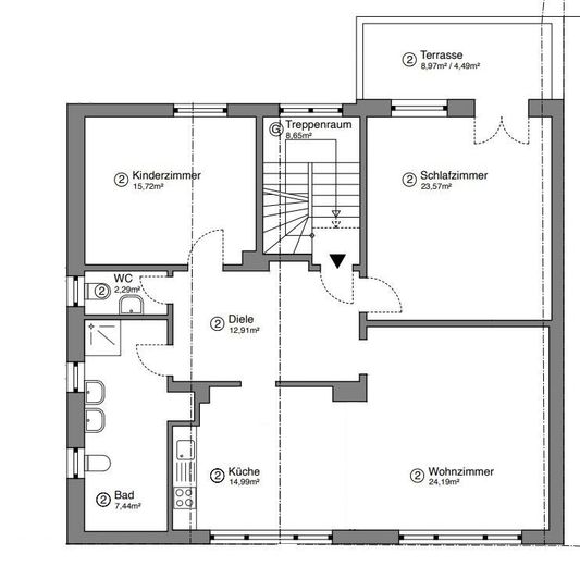
Wohnen mit Stil – ca. 105,9 m², perfekt geschnitten
Auf rund 105,9 m² bietet die Wohnung:
- einen großzügigen Dielenbereich
- eine geräumige Wohnküche als Herzstück der Wohnung
- ein Schlafzimmer mit Zugang zum Balkon und Blick in den Garten (ruhige Rückseite)
- ein Büro-/Kinderzimmer
- ein modernes Bad sowie ein separates Gäste-WC
Highlights, die man nicht oft findet
- Altbaucharme + moderne Sanierung (2025)
- über 3 m Deckenhöhe – repräsentativ & lichtdurchflutet
- Echtholzparkett in der gesamten Wohnung, Treppe ebenfalls Echtholz
- Neue, hochwertige Einbauküche inkl. Geräte (u. a. Spülmaschine, Kühl-/Gefrierkombi, Backofen, Mikrowelle, Kochfeld) – im Kaufpreis enthalten
- Klimaanlage
- Badezimmer mit Badewanne & großzügiger Dusche
- Separates Gäste-WC
Eckdaten
- Keine Käuferprovision
- Hausgeld: ca. 350 € / Monat (davon ca. 200 € Heizkostenvorauszahlung)
- Energieträger: Gas | Zentralheizung
- Endenergiebedarf: 151,8 kWh/(m²·a)
- Bezugsfrei: ab sofort
Alle Spiegel und Einbaumöbel gehören zur Wohnung und sind im Preis inbegriffen.
Lage – Speldorf/Broich: ruhig, grün und hervorragend angebunden
Die Wohnung befindet sich in einer der beliebtesten Wohnlagen Mülheims: Speldorf/Broich, nur wenige Minuten vom Uhlenhorster Wald entfernt.
Die Umgebung bietet mit der Mülheimer Parkstadt auch eine schöne Landschaft, die zum Entspannen und Erholen einlädt.
Einkaufsmöglichkeiten, Schulen und Kitas sind in der Nähe, und die Anbindung an A40 und A3 ermöglicht kurze Wege in die umliegenden Städte.