Schöne Remise mit 4 Wohneinheiten unweit vom Glindower See

Zum See 10-13
14542 Werder – Glindow
Brandenburg
1.325.000 €
Kaufpreis
450 m²
Wohnfläche
TraumImmo-ID: 43P59NC
Partner-ID: 401234
Partner-Objekt von: ohne-makler.net
Anbieter:
Privat vom Eigentümer

Anbieter kontaktieren

Information

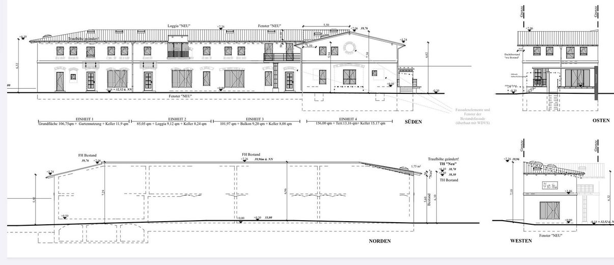
  • Typ: Mehrfamilienhaus
  • Etage: 2
  • Wohnfläche ca.: 450 m²
  • Bezugsfrei ab: Nach Vereinbarung
KellerGäste-WCBalkonGarten

  • Grundstücksfläche: 700.0
  • Baujahr: 2013
  • Zustand: WellKept
  • Heizart: CentralHeating
  • Brennart: Gas
  • Stockwerke: 2

Kaufpreis & Kosten

Kaufpreis1.325.000 €
Provisionkeine Provision für Käufer

Über diese Traum-Anlageimmobilie

Objektbeschreibung

Die Remise würde im Jahr 2013 unter Berücksichtigung alter Elemente (z.B. Kappendecken) hochwertig saniert.
Die Wohnungen sind wie Reihenhäuser mit Kopf- und Endbau strukturiert.
Neben Fußbodenheizung und Parkettfussboden sind die Treppen in Stahl und Holz gehalten. Weiterhin ist das Objekt zeitgemäß gedämmt.


Ausstattung

Alle Wohnungen Verfügung entweder über einen kleinen Garten, Balkon oder Terrasse.
Weiterhin sind jeweils Gäste WC’s vorhanden.


Lage

Lagebeschreibung

Im Ortskern von Glindow, ca. 150 m vom Glindow See gelegen

ohne-makler.net
Anbieter:
Privat vom Eigentümer

Anbieter kontaktieren