| Miete | 680 € |
|---|---|
| Nebenkosten | 140 € inkl. Heizkosten |
| Kaution | 1360€ |
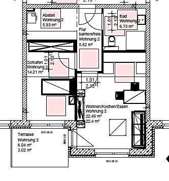
Modernes Mehrfamilienhaus mit 8 WE, Fahrstuhl und Nebengelass
Unser Haus ist Baujahr 2025 und nach dem KFW55-Standard errichtet.
Gehobene Ausstattung:
- Designbodenbelag
- Echtglas-Dusche
- schöne Terrasse
- Fahrstuhl
- Fußbodenheizung
- zusätzlicher Abstell-/Haushaltsbereich in der Wohnung
- Nebengelass zu jeder Wohnung: überdachter Stellplatz mit privatem Abstell-/Arbeitsraum
Zusätzliche Vorteile:
- Neubau mit Erstbezug!
- PROVISIONSFREI: freie Vermietung von Privat
- NIEDRIGE KAUTION: 2 statt 3 Nettokaltmieten Mietkaution
- geringe Nebenkosten
- wenig Energieverbrauch dank KFW55-Bauweise
- Energiequelle: Wärmepumpe
Stellplätze (= Nebengelass)
Die WE-Stellplätze sind überdacht. Zu jeder Wohnung gehört ein Stellplatz mit separatem, abschließbarem Abstellraum.
Zusätzlich gibt es Behindertenparkplätze auf dem Hof.
BESICHTIGUNGSANFRAGEN BITTE NUR BEI ERNSTHAFTEM INTERESSE!!!
Das Mehrfamilienhaus mit 8 Wohneinheiten und Nebengelass befindet sich in einer ruhigen Wohngegend in einer Seitenstraße, umgeben von Eigenheimen mit wenig Durchgangsverkehr.
In der Nähe befinden sich:
- ein Discounter (450m)
- Bäcker
- eine Raiffeisenbank
- der Bahnhof (550m Fußweg)
- eine Apotheke
- Ärzte und Tierärzte