Straßenseite von Nordwesten
Straßenseite von Nordosten
Südseite
Südseite
Dachterrasse
Fernwärmeanschluss im Keller
Heizkreisverteiler + Abdeckung
WC/Bad - Wohnung oben
Erdgeschoss - Gewerbefläche
Garten
3 Haus-Heizkreise im Keller
Heizkreisverteiler Dachgesch.
WC/Bad - Wohnung oben
WC/Bad - Wohnung oben
WC/Bad - Wohnung oben
Dachgeschoss - Wohnung
Keller - Lagerfläche
Südseite Dachgeschoss

Großes Wohn- u. Geschäftshaus mit Wintergarten, Dachterrasse, Fernwärme u. kpl. Fußbodenheizung

Kirchstr. 46
31595 Steyerberg – Steyerberg
Niedersachsen
299.000 €
Kaufpreis
125 m²
Wohnfläche
4
Zimmer
TraumImmo-ID: AH4FU7X
Partner-ID: 390432
Partner-Objekt von: ohne-makler.net
Anbieter:
Privat vom Eigentümer

Anbieter kontaktieren

Information

  • Typ: Einfamilienhaus
  • Wohnfläche ca.: 125 m²
  • Bezugsfrei ab: Nach Vereinbarung
  • Zimmer: 4
KellerGarten

  • Grundstücksfläche: 1613.0
  • Baujahr: 1937
  • Zustand: NeedOfRenovation
  • Heizart: FloorHeating
  • Brennart: FiringTypeDistrictHeating
  • Stockwerke: 2
  • Nutzfläche: 284.0

Kaufpreis & Kosten

Kaufpreis299.000 €
Provisionkeine Provision für Käufer

Über dieses Traum-Haus

Objektbeschreibung

Steyerberg / Niedersachsen: Großes Wohn- und Geschäftshaus mit Wintergarten, Dachterrasse, regenerativer Fernwärme und kpl. Fußbodenheizung

Das Haus in Massivbauweise (ursprünglich 1937 erbaut) wurde 1982 modernisiert und um einen großen kpl. unterkellerten Flachdach-Anbau, 2 Garagen und einem Glashaus/Wintergarten erweitert.

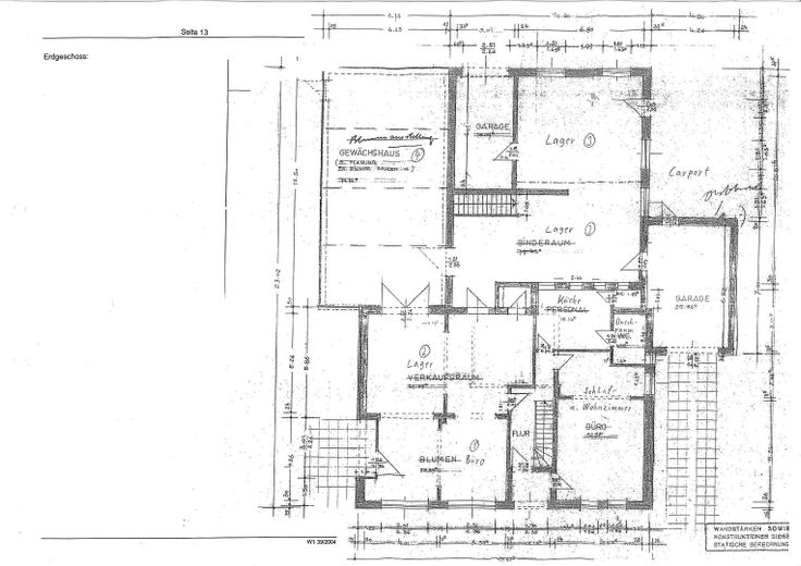
Erdgeschoss:
ca. 284 m²: Geschäfts- u. Sozialräume, Wintergarten (75 m²), Küche u. Bad/WC
(Büro u. Sozialräume können auch als Wohnfläche genutzt werden)
ca. 44 m²: 2 Garagen

Dachgeschoss:
ca. 125 m²: Wohnung mit 4 Zimmern, Küche, Bad/WC, Flur
ca. 125 m²: Dachterrasse

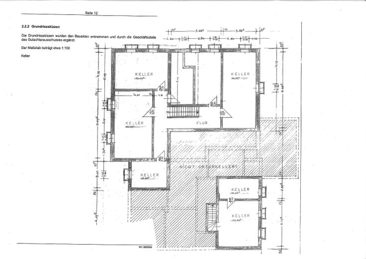
Keller:
ca. 200 m²: mit 6 Lagerräumen u. 1 Heizungsraum

Grundstück: 1613 m²

2024 erfolgte der Anschluss an ein genossenschaftliches Fernwärmenetz (Primärenergie: Biogas – Info: www.best-steyerberg.de) und Erneuerung der Heizungsanlage (Warmwasserspeicher, 3 Haus-Heizkreise mit Energiesparpumpen, 3 Heizkreisverteiler mit 22 Heizkreisen und drahtlos ansteuerbaren Ventilen) für die kpl. verlegte Fußbodenheizung (ca. 409 m²).

Energieeffizienzklasse für Wohnung: C (Endenergieverbrauch 92,6 kWh/(m²a)

Wegen des asymetrischen Satteldaches und der Gaube zur Straßenseite hat nur 1 Zimmer der Dachgeschoss-Wohnung eine Dachschräge.


Ausstattung

Fußboden:
Erdgeschoss: Fliesen
Dachgeschoss: Laminat, Teppich, Fliesen

Bad/WC:
Erdgeschoss: WC, Waschbecken u. ebenerdige Dusche
Dachgeschoss: WC, Doppel-Waschbecken, Vollbad u. Dusche

Holzfenster mit 2-fach Isolierverglasung

Dachgeschoss: 11 Rollläden mit elektrischem Antrieb

Glasfaseranschluss

Es sind einige Reparaturen sowie Renovierungen erforderlich.


Sonstiges

Die Immobilie lässt sich auch zu 5 Wohneinheiten umbauen.

Direktverkauf vom Eigentümer: keine Maklergebühr!

Besichtigung nur nach schriftlicher oder telefonischer Terminabsprache. Bitte nicht spontan klingeln.

Bezug nach Vereinbarung.


Lage

Lagebeschreibung

Steyerberg: halbe Strecke zwischen Hannover und Bremen, in der Nähe von Nienburg/Weser und Steinhuder Meer

Die Immobilie ist sowohl im Ortskern als auch am Ortsrand gelegen.

Unter 1000 m: Ärztehaus, Apotheke, Edeka u. Penny, Amtshof (Rathaus), Postagentur, Sportanlagen inkl. großes Freibad, Fitness-Center, Waldstück Pfarrbusch, Kindergärten, Grundschule, ZOB, Tankstelle

Wohnzimmer, Dachterrasse und Garten sind zum Süden ausgerichtet.

ohne-makler.net
Anbieter:
Privat vom Eigentümer

Anbieter kontaktieren