Bauplätze in herrlicher Randlage Bischofswerda

Get the full address via contact
01877 Bischofswerda
Sachsen
99.000 €
Selling Price
TraumImmo-ID: 4HS7TKB
Partner-ID: 354201017
Partner-Property by: RegionalImmobilien24
Contact:
Anonymous

Contact now

Information

      • Property Area: 1360.0

      Selling Price & Extra Costs

      Selling Price99.000 €
      Courtageno courtage for buyers

      About this dream trade site

      Property Description

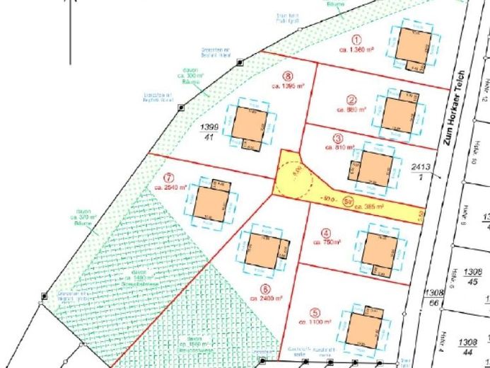
      Die Grundstücke liegen an einer ruhigen Seitenstraße in Bischofswerda im Stadtteil Belmsdorf. Hier können Sie freistehende EFH errichten.
      Herrlich an Feldern & Wiesen gelegen, erreichen Sie in nur 2-3 Minuten das Stadtzentrum von Bischofswerda.
      Eine Busverbindung führt direkt zum Grundstück.

      Die Baugrundstücke bieten wir Ihnen ohne Bauträgerbindung an, können Ihnen jedoch gerne erfahrene Hausbaufirmen vermitteln.

      Parz. 1, KP 99.000,- €, ca. 1.360 m²
      Parz. 2, KP 99.000,- €, ca. 880 m²
      Parz. 3, KP 99.000,- €, ca. 810 m²
      Parz. 4, KP 99.000,- €, ca. 750 m²
      Parz. 5, KP 99.000,- €, ca 1.100 m²
      Parz. 6, KP 125.000,- €, ca. 2.400 m² + ca. 128,33 m² 1/3 Anteil Privatstraße
      Parz. 7, KP 125.000,- €, ca. 2.540 m² + ca. 128,33 m² 1/3 Anteil Privatstraße
      Parz. 8, KP 125.000,- €, ca. 1.395 m² + ca. 128,33 m² 1/3 Anteil Privatstraße


      Location

      Contact:
      Anonymous

      Contact now