Hof und 2. Hauseingang
Südseite Blickrichtung West
Blick von Gartenterrasse
DG Sofaecke
DG Wohnraum
DG Schlafzimmer
EG Duschbad ebenerdig
EG Terrasse Raum 1
Gartenterrasse Kaminholz
EG Praxis/Büro-Raum 1
EG Praxis/Büro-Raum 3
EG Blick auf Eingang u.Raum  2
Kellerraum 29 m² Tageslicht
Sitzplatz mit Feuerstelle
Zugang Büro-Praxis-Bereich
Ostseite
DG Südbalkon
EG Gäste-WC Blick auf R. 3 u 1
Küchenraum im DG
EG Praxis/Büro Raum 2
EG Praxis/Büro-Raum 1

Multifunktionshaus - Einfamilienhaus mit Praxis/Büro - Wohnen und Arbeiten unter einem Dach

Im Kammerfeld 35
53913 Swisttal-Heimerzheim – Heimerzheim
Nordrhein-Westfalen
785.000 €
Selling Price
198 m²
Living Area
7
Rooms
TraumImmo-ID: FPZVPVD
Partner-ID: 389972
Partner-Property by: ohne-makler.net
Contact:
Privat von Norbert Müller

Contact now

Information

  • Type: Single Family House
  • Living Area ca.: 198 m²
  • Free From: Nach Vereinbarung
  • Rooms: 7
CellarGuest-ToiletBalconyGarden

  • Property Area: 642.0
  • Construction Year: 2014
  • Condition: MintCondition
  • Heating Type: FloorHeating
  • Storeys: 2
  • Usable Floor Space: 101.0
  • Bathrooms: 2.0

Selling Price & Extra Costs

Selling Price785.000 €
Courtageno courtage for buyers

About this dream house

Property Description

Individuelles Architektenhaus - Hohe Energieeffizienz -- Ideal für Selbstständige - Von der Konstruktion her potenziell nutzbar (wie bisher) als Einfamilienhaus (ca. 127 m² Wfl) mit getrenntem Praxis-/Bürobereich (ca. 71 m²), aber auch als großes Einfamilienhaus oder als "Großfamilienhaus" mit getrennten Wohnbereichen (nach Nutzungsänderung; dann ca. 198 m² Wfl.).
Besonders für Selbstständige ist hinsichtlich individueller Vertragsgestaltung die Teilung in zwei rechtlich selbstständige Einheiten nach WEG interessant (Wohn-und Teileigentum).So können die beiden Einheiten vom Käufer (z.B.Ehepartner) auch rechtlich getrennt erworben werden!
Die flexiblen Nutzungsmöglichkeiten (s. Grundriss) machen das Haus zukunftssicher für sich im Laufe der Zeit ergebende unterschiedlichste Familien- und Lebenskonstellationen.

Vier Energiequellen auf Basis regenerativer Energien (neue Wärmepumpe, Pelletheizung, Solarthermie und Kaminofen) bieten hohe Versorgungssicherheit und kostenminimierende Flexibilität beim Einsatz dieser Energiequellen.

DG
Zentrum im DG ist der große freundliche Wohnraum mit Holzparkett-Langdielen. Die hohe offene Bauweise mit sichtbarer Dachbalken-Konstruktion und ein Kaminofen schaffen eine besondere heimelige Atmosphäre.
Je nach Sonnen- oder Schattenbedürfnis laden der Ost- oder Südbalkon zu einem gemütlichen Frühstück oder einer Mittagspause ein.
Dem Wohnraum schließen sich ein Schlafzimmer (ebenfalls mit warmem Holzparkett), eine geflieste Küche mit Abstellkammer, ein Duschbad und ein kleines 9m² -Zimmer an.


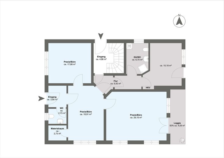
EG
Das in warmem Beige-Ton geflieste Erdgeschoss hat zwei ebenerdige Zugangsmöglichkeiten. Zum einen die auf der Westseite gelegene Haustüre als Zutritt in den Praxis-/Bürobereich (ca. 71 m²) mit drei großen und hellen Räumen, einem WC und einer Abstellkammer und zum anderen über den Hauseingang auf der Nordseite des Hauses. Über diesen Eingang kommt man in den nord-östlichen Teil des EG mit einem Duschbad und einem 15m²-Raum mit Mini-Küche und Zugang in den Garten. Dieser Bereich wird zur Zeit als Arbeitszimmer/Gästeappartement mit Miniküche( ca.32 m²) genutzt und bildet zusammen mit dem DG eine Wohneinheit.
Beide EG-Bereiche (Wohnen und Praxis/Büro) sind über eine Verbindungstür miteinander verbunden.
Das Erdgeschoss ist so konzipiert, dass es ggf. auch (nach Umwidmung) in gesamter Größe als eine Wohnung genutzt werden könnte. Für alle denkbaren Fälle der Raum- und Nutzungsgestaltung sind auch im Praxis-/Bürobereich installationsmäßig Küchenanschlüsse vorbereitet.
Über das Treppenhaus sind DG und EG so miteinander verbunden, dass aus beiden auch ein 198 m²-Einfamilienhaus („Großfamilienhaus“) werden könnte.

Keller
Trockener hochgedämmter Keller in Zimmerhöhe 2,40 m mit Stahlbetonwänden aus Beton C25/30 in WU-Qualität (wasserundurchlässig). Zwei große Kellerräume , beheizt, mit Tageslicht bieten vielfältige Nutzungsmöglichkeiten (Hobby-, Fitness-, Werk-, Hausarbeitsraum o.ä.)
Davon ein Raum (ca. 29m²) gefliest, mit großem Fenster und Kaminofen. Mit Koaxial/CAT-Anschluss für mögliche Nutzung als Arbeitsraum.
Neben dem Heizraum mit Pelletsilo, Pelletkessel und Wärmepumpe gibt es einen 17m² großen Raum mit den Hausanschlüssen und nutzbar als Lagerraum. Anschlussmäßig auch vorbereitet zur Nutzung als Waschraum.


Bausubstanz: Massivbau
Beton-Bodenplatte mit 20 cm Bodenplattendämmung WLG 035
Aufsparrendämmung Bauder PIR Plus
Kellerwand mit 100 mm Perimeterdämmung XPS

Parken
Gute Parkmöglichkeit für mehrere Autos auf dem Grundstück (Carport plus drei weitere Stellplätze)
Für die Fahrräder gibt es einen abschließbaren Fahrrad- und Geräteschuppen

Garten
Der individuell gestaltete Gartenbereich bietet mehrere gemütliche Sonnen- und Schattenplätze (siehe Bilder)


Furnishing

Heizsystem
Hohe Versorgungssicherheit durch zwei Haupt-Wärmeerzeuger (Hybridheizung) Zum einen eine in 2025 neu eingebaute Luft/Wasser-Wärmepumpe und zum anderen eine Pelletheizung.
Zur Zeit so geregelt, dass die Wärmepumpe mit hoher Energieeffizienz die niedrige Vorlauftemperatur für die Fußbodenheizung erzeugt, während die Pelletheizung in Kombination mit den 15 m²-Solarkollektoren die Warmwassererzeugung übernimmt. In der Regel wird im Zeitraum April bis Oktober die Warmwasserbeheizung kostensparend nahezu allein von den Solarkollektoren in Verbindung mit einem 1000 Liter Hygiene-Kombispeicher ermöglicht.

Der Kaminofen für Scheitholz im DG gibt über einen wassergeführten Kreislauf überschüssige Wärme an den Pufferspeicher ab, so dass neben dem thermischen Komfort eines Kaminofens auf diese Weise auch Heizwärme und Warmwasser für das ganze Haus bereitgestellt werden kann.

Immer frische Luft – auch im Winter ! Im Erdgeschoss (Praxis/Bürobereich) sorgt die integrierte Lüftungsanlage mit Wärmerückgewinnung stets für frische Luft, ohne dass man die Fenster öffnen muss.

Internet : Zukunftssicherer Telekom-Glasfaseranschluss im Hausanschlussraum.
Alle Aufenthaltsräume sind mittels Duo-Kabel (Koaxial&CAT) einzeln bis an den Hausanschlusspunkt verbunden, so dass eine flexible Nutzung über kabelgebundenes SAT und/oder Internet erfolgen kann.

Hauseigene 11kW- E-Wallbox (Ladestation) für Elektrofahrzeuge

Große Rollläden und Raffstore-Rollladen mit Elektroantrieb
WERU Kunststofffenster AFINO-one secur II mit 3-fach-Wärmeschutz/Sicherheitsglas A1
Schallschutzfenster WERU Klima Term Phon mit Schalldämmwerten 36/40 dB


Other

Verfügbarkeit: nach Absprache (auch kurzfristig)

Energieeffizienz: Die angegebene Endenergie (43,6 kWh(m².a) gilt für das Wohneigentum. Gemäß GeG muss für den Praxis-/Bürobereich differenziert werden zwischen Endenergiebedarf für Wärme (22,8 kWh(m².a) und (standardisierter) Endenergiebedarf für Beleuchtung/Strom (37,1 kWh(m².a)

Die Flächenberechnung ist den Bauantragsunterlagen entnommen. In der Bauphase kam es vereinzelt zu kleineren Abweichungen bei der Raumausprägung. Eine Gewähr für die exakte Maßbestimmung wird nicht übernommen.
Vertragsgrundlage sind nicht die rechnerischen Maße, sondern die bei der Besichtigung und Prüfung der Immobilie vor Ort real vorgefundenen Raumverhältnisse.

Im Falle der beabsichtigten Wohnnutzung des bisherigen Praxis/Büro-Bereichs ist eine Nutzungsänderung anzuzeigen, die einem vereinfachten Genehmigungsverfahren unterliegt.


Location

Location description

Heimerzheim, mit rund 6600 Einwohnern die größte Ortschaft in der Gemeinde Swisttal Rhein-Sieg-Kreis, liegt westlich von Bonn und ist Mittelpunkt des Dreiecks zwischen Bonn, Euskirchen und Brühl/Köln
Neben Einkaufsmöglichkeiten für den alltäglichen Bedarf gibt es in Heimerzheim mehrere Cafés, Restaurants sowie Ärzte, Apotheken, therapeutische Praxen, Kindergärten und Schulen.

Die Immobilie liegt am Ortsrand von Heimerzheim in wenig befahrener Stichstraße ohne Durchgangsverkehr. Ortskern und Einkaufszentrum (REWE, Aldi, DM u.a.) sind fußläufig in wenigen Minuten erreichbar.

In wenigen Fahrminuten ist man auf der A61. Über die B56 fährt man in 20 Minuten nach Bonn-Duisdorf (Bahnhof) oder Hardtberg.
Busverbindungen gibt es halbstündlich nach Bonn (Hbf) , Rheinbach oder Bornheim und stündlich nach Weilerswist, wo es jeweils auch DB-Bahnhöfe gibt.
Den Bahnhof Weilerswist (Zugstrecke Euskirchen-Köln; P&R) erreicht man in 10 Fahrminuten.

ohne-makler.net
Contact:
Privat von Norbert Müller

Contact now