Neubau Bungalow in KfW-55 Bauweise: ebenerdig, energieeffizient sowie hochwertig ausgestattet

Get the full address via contact
59075 Hamm Bockum-Hövel – Bockum-Hövel
Nordrhein-Westfalen
540.000 €
Selling Price
101 m²
Living Area
3
Rooms
TraumImmo-ID: HAS5GM3
Partner-ID: 395440
Partner-Property by: ohne-makler.net
Contact:
Privat vom Eigentümer

Contact now

Information

  • Type: Bungalow
  • Living Area ca.: 101 m²
  • Free From: Nach Vereinbarung
  • Rooms: 3

  • Property Area: 419.0
  • Construction Year: 2023
  • Condition: MintCondition
  • Heating Type: FloorHeating
  • Firing Type: Electricity
  • Storeys: 1

Selling Price & Extra Costs

Selling Price540.000 €
Courtageno courtage for buyers

About this dream house

Property Description

Der im Juni 2024 fertiggestellte sowie freistehende Bungalow steht auf einem ca. 419 qm großen Grundstück, welches adäquat eingezäunt ist. Die Bauweise vereint zeitgemäßes Wohnen mit aktueller Energieeffiziens.
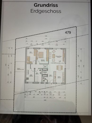
Die Wohnfläche von ca. 101 qm basiert auf einem großzügigen Grundriss und ist mit hochwertiger Ausstattung perfekt für Paare, kleine Familien oder Menschen, die ein Zuhause auf einer Ebene bevorzugen. Der Mittelpunkt des Hauses ist der große, offen gestaltete Wohn-Essbereich mit integrierter Küche.
Eine hochwertige Einbauküche ist bereits enthalten. Bodentiefe Fenster im Wohnbereich, Schlaf- und Arbeitszimmer schaffen eine helle Atmosphäre für zeitgemäßes Wohnen. Ferner bietet der Grundriss ein Schlafzimmer, ein Arbeitszimmer, ein Gäste WC, in der Diele einen Raum für Garderobe, Schuhe etc. sowie ein Tageslichtbad mit ebenerdiger Dusche und einen Hauswirtschaftsraum inklusiv Technikbereich.

Technische Ausstattung:
-KfW 55 Standard
-Solaranlage mit Speicher
-Geothermie-Sole-Wasser-Wärmepumpe inkl. Kühlfunktion
-Kontrollierte Wohnraumlüftung mit
Wärmerückgewinnung
-Fußbodenheizung in allen Räumen
-Dreifach-verglaste Kunststofffenster mit elektrischen
Rollläden
-Glasfaseranschluss

Eine großzügige Garage mit 9 Metern Länge und elektrischem Sektionaltor ermöglicht Platz für Fahrzeug, Fahrräder, Gartengeräte etc. Die technischen Voraussetzungen zur Installation einer Wallbox sind vorhanden.
Fazit: Ein neuwertiger, energieeffizienter Bungalow in ruhiger Lage mit hochwertiger Ausstattung, modernem Grundriss sowie barrierearmer Ausführung.

Nachhaltiges Wohnen mit Komfort zum Wohlfühlen.


Furnishing

Hinsichtlich der technischen Ausstattung hat das Objekt
geringe monatliche Energiekosten. Detailfragen zu den
technischen Ausstattungsvarianten etc. werden gerne beantwortet.


Location

Location description

Der moderne Neubau-Bungalow befindet sich in einem kleinen neu erschlossenen Wohngebiet im Stadtteil Bockum-Hövel in Hamm. Die Umgebung zeichnet sich durch eine ruhige Wohnlage mit kurzen Wegen zum Stadtteilzentrum aus. Einkaufsmöglichkeiten, Schulen und medizinische Einrichtungen sind bequem erreichbar, ebenso ein Park zum verweilen im Grünen. Mit dem fußläufig erreichbaren ÖPNV ist man flexibel
vor Ort an das Mobilitätsnetz angebunden. Insofern ist die Lage besonders attraktiv für Familien sowie Senioren.

ohne-makler.net
Contact:
Privat vom Eigentümer

Contact now