Wassergrundstück
Teterower Peene
Bootshausausfahrt
Angelplatz
Wohnhaus Ostseite
Wohnhaus Nord-West-Seite
Wohnhaus Südseite
Wohnhaus Westseite
Bootshaus
Bootshaus-Wohnbereich
Bootshaus-Hafen ca. 6,00x2,50
Doppelcarport
Carport-Giebelseite
Carport-Werkstattraum
Uferbereich
Angelboot mit Honda-50PS-Motor
Wiese im Garten
Planung Erdgeschoss
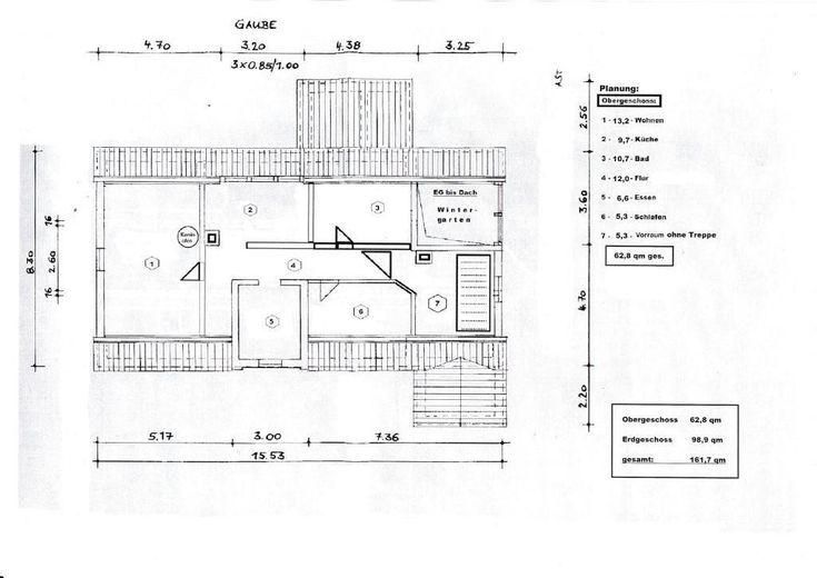
Planung Obergeschoss

WASSERGRUNDSTÜCK - BOOTFAHREN BIS ZUR OSTSEE

Hafenstraße 1
17154 Neukalen – Neukalen
Mecklenburg-Vorpommern
395.000 €
Selling Price
161 m²
Living Area
8
Rooms
TraumImmo-ID: JMWW2W5
Partner-ID: 432890
Partner-Property by: ohne-makler.net
Contact:
Privat vom Eigentümer

Contact now

Information

  • Type: Single Family House
  • Living Area ca.: 161 m²
  • Free From: Nach Vereinbarung
  • Rooms: 8
Guest-ToiletGarden

  • Property Area: 720.0
  • Construction Year: 1880
  • Condition: NeedOfRenovation
  • Heating Type: StoveHeating
  • Storeys: 2
  • Bathrooms: 2.0

Selling Price & Extra Costs

Selling Price395.000 €
Courtageno courtage for buyers

About this dream house

Property Description

Traumgrundstück direkt an der Teterower Peene mit ca. 30 m privater Wasserfront.
Bootshaus für Boote bis ca. 6,00m und bis ca. 2,50m Breite geeignet, plus Wohnbereich.
Wenn Sie die Natur lieben, verlassen Sie Ihr Bootshaus mit dem Paddelboot flussaufwärts
und können dann Eisvögel, Reiher oder Kormorane erleben.
Wenn Sie Angler sind, angeln Sie vom Grundstück aus, oder verlassen Ihr Bootshaus mit dem Angelboot, das einschließlich Straßentrailer im Angebot enthalten ist, in Richtung Kummerower See.
Wenn Sie weite Bootsfahrten lieben, verlassen Sie Ihr Bootshaus mit Ihrem möglichen
Kajütboot, das in Ihrem Bootshaus liegen könnte. Sie erreichen dann über die Peene die
Ostsee. Im Achterwasser an der Boddenseite der Insel Usedom zum Beispiel die Häfen
Krummin oder Zinnowitz.
Auch wenn Sie kein Bootfahrer sind, ist diese Immobilie als zukünftiger Altersruhesitz
bestens geeignet.
Wohnhaus (nicht unter Denkmalschutz):
Gebaut als Einfamilienhaus für den ersten Hafenmeister der Stadt Neukalen.
Außen weitgehend saniert, im Jahr 2011 neuer Dachstuhl und neue Dacheindeckung.
Innen noch nicht fertiggestellt aber teilweise bewohnt. In diesem Bereich mit einem großen Kachelofen und einem modernen Kaminofen beheizt. Möglichkeit für den Bau
einer Solaranlage für Heizsysteme ist vorhanden. Der Energieausweis ist beantragt.
Wohnhausplanung (gesamt ca. 161qm):
Erdgeschoss ca. 99 qm laut beiliegendem Grundriss.
Obergeschoss ca. 62 qm laut beiliegendem Grundriss, als Ferienwohnung geplant.


Furnishing

Stellplätze für Mobile:
2x PKW im Doppelcarport, 1x Wohnmobilparkplatz, 1x Winterparkplatz für Trailer u. Boot.


Location

Location description

In der Peenestadt Neukalen, siehe Internet, direkt an der Teterower Peene.
Einkaufsmöglichkeiten, Arztpraxis, Apotheke und Sparkasse sind vorhanden.
Mehrere Vereine und die freiwillige Feuerwehr gibt es ebenfalls.
Rostock, Stralsund, Greifswald oder Rügen sind jeweils in ca. 1 Autostunde zu erreichen.
Bilder zum Ort und der angebotenen Immobilie finden Sie im Internet, hier hat der Fotograf Berthold Brinkmann aus Rostock schöne Bilder im Bereich bertbrink, fotografie I, Luftbilder, Juli 2021 Neukalen, ins Internet gestellt

ohne-makler.net
Contact:
Privat vom Eigentümer

Contact now