| Rent | 2227 € |
|---|---|
| Additional Costs | 190 € incl. heating costs |
| Heating Costs | 40 € |
Dieses exklusive Einfamilienhaus mit 148,5 m² Wohnfläche (Nutzfläche. 200 m²) entsteht derzeit auf einem 316,84 m² großen Grundstück im preisgekrönten Neubaugebiet in Köfering.
Die Fertigstellung unserer Immobilie im Lerchenfelder Hof erfolgt Anfang 2026 – der Einzug ist ab März/April 2026 möglich.
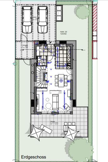
Im Erdgeschoss empfängt Sie ein großzügiger, lichtdurchfluteter Wohn- und Essbereich mit Zugang zur Terrasse und zum Garten. Die hochwertige Einbauküche aus dem Küchenhaus Frey mit Küchenblock und Marken-Elektrogeräten von Miele, Siemens und Neff lässt keine Wünsche offen und ist perfekt in den Wohnraum integriert.
Im Obergeschoss befinden sich zwei große Zimmer sowie ein modernes Badezimmer mit edler Ausstattung. Das voll ausgebaute Dachgeschoss bietet zwei weitere helle Zimmer und ein zusätzliches hochwertiges Bad – ideal als Schlaf-, Arbeits- oder Hobbybereich.
Der voll unterkellerte Bereich schafft zusätzlichen Platz: Neben Hauswirtschafts- und Technikraum stehen Lager- und Hobbyräume zur Verfügung. Auch ein Saunaanschluss ist integriert.
Die Ausstattung überzeugt durch hochwertige Materialien, darunter edles Parkett in allen Wohnräumen sowie stilvolle Fliesen in Küche, Eingangsbereich und den Bädern.
Die Terrasse mit angrenzendem Garten bietet einen freien, derzeit unverbaubaren Blick und wird zukünftig direkt an eine Grünanlage angrenzen – perfekt für entspannte Stunden im Freien.
Zwei Stellplätze vor dem Haus sowie ein kleiner Vorgarten runden das Angebot ab.
Das Haus wird nach modernsten Standards gebaut: KfW-55-Effizienzhaus mit Wärmepumpe, Photovoltaikanlage mit Speicher und dezentraler Lüftung mit Wärmerückgewinnung – für umweltbewusstes und kosteneffizientes Wohnen.
Ob Familienleben, stilvolles Wohnen oder gemütliche Abende auf der Terrasse – dieses Zuhause vereint Funktionalität, Komfort und zeitlose Eleganz.
Haustiere sind leider nicht erwünscht.
Ausstattung
•vollständig unterkellert (HWR, Technikraum, Lager, Hobbyraum)
•hochwertige Einbauküche mit Küchenblock (Markengeräte Miele, Siemens, Neff)
•Luft-Wasser-Wärmepumpe
•Photovoltaikanlage mit Speicher
•Fußbodenheizung
•hochwertige Parkettböden
•elegante Treppenanlage
•moderne Bäder mit gehobener Ausstattung
•dezentrale Lüftung mit Wärmerückgewinnung
•OG-Bad: begehbare Dusche, Badewanne, WC, Doppelwaschbecken mit Unterschrank
•DG-Bad: begehbare Dusche, WC, Waschbecken mit Unterschrank
•separates Gäste-WC im EG
•Terrasse mit angelegtem Garten
•elektrische Rollläden
•2 Stellplätze vor dem Haus
•Vollunterkellert, mit Hauswirtschaftsraum, Hobbyraum und Lager
Für die Vermietung wünschen wir uns Interessenten mit gesichertem, eigenen Einkommen.
Bitte senden Sie uns daher bei Interesse vorab folgende Unterlagen per E-Mail zu:
• Ausgefüllte Mieterselbstauskunft
• Aktuelle SCHUFA-Bonitätsauskunft
• Die letzten drei Gehaltsnachweise
• Kurze Vorstellung (Personenanzahl, Beruf, gewünschter Einzugstermin)
Besichtigungstermine werden nur mit Bewerbern vereinbart, deren Unterlagen vollständig vorliegen. Vielen Dank für Ihr Verständnis.
Köfering ist eine charmante Gemeinde südlich von Regensburg mit ausgezeichneter Infrastruktur und hoher Lebensqualität.
Einkaufsmöglichkeiten, Ärzte, Kindergarten und Schulen befinden sich in unmittelbarer Nähe.
Durch die verkehrsgünstige Lage sind große Arbeitgeber wie BMW, Krones, Osram, Aumovio, Schaeffler und Siemens in nur 10–15 Minuten erreichbar, auch das Stadtzentrum Regensburg oder Arbeitgeber wie die Uniklinik Regensburg oder die Universität/OTH sind schnell erreichbar.
Gleichzeitig bietet die Umgebung zahlreiche Freizeitmöglichkeiten und lädt zu erholsamen Stunden im Grünen ein – ideal für Familien und Berufspendler gleichermaßen.
In der Umgebung zum Haus entsteht ein modernes, familienfreundliches Wohngebiet mit kleinen Grünflächen und angenehmer Nachbarschaftsatmosphäre – der perfekte Ort zum Ankommen und Wohlfühlen.