| Selling Price | 975.000 € |
|---|---|
| Courtage | no courtage for buyers |
Zum Verkauf steht ein freistehendes, verklinkertes Einfamilienhaus der Effizienzklasse KfW 55, erbaut im Jahr 2018. Das Haus vereint moderne Architektur, exzellente Bauqualität und eine hochwertige technische Ausstattung auf einem großzügigen Grundstück mit rund 794 m² Fläche.
Es bietet über drei Etagen rund 260 m² bewohnbare Fläche, die sich flexibel für Familien, Homeoffice oder Mehrgenerationennutzung gestalten lassen.
•Wohnfläche (nach WoFIV): ca. 188,8 m²
•Nutzfläche (nach DIN 277): ca. 164,6 m²
•Gesamtnutzfläche (ohne Terrassen/Balkon/Speicher): ca. 353,4 m²
Dank Erdwärme, kontrollierter Wohnraumlüftung, Fußbodenkühlung/-heizung und Smart-Home-Technologie erleben Sie höchsten Wohnkomfort bei extrem niedrigen Energiekosten.
Grundrisse / Raumaufteilung
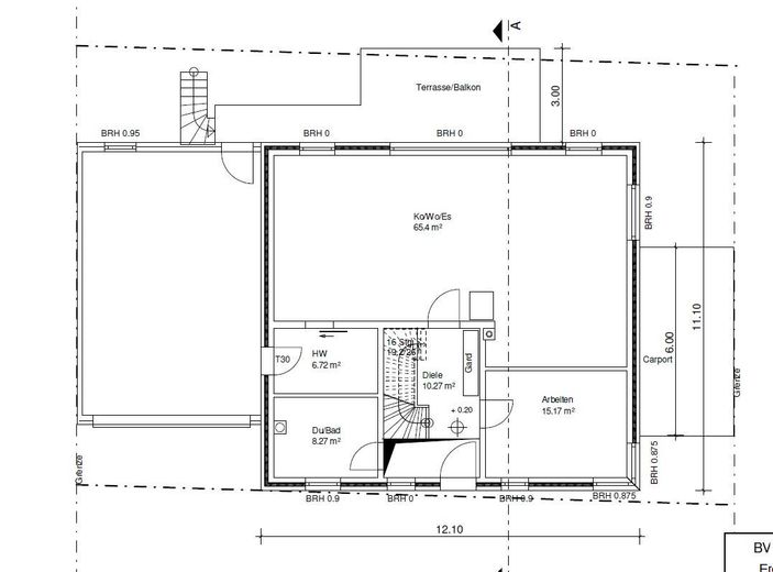
Erdgeschoss:
•Offener Wohn-/Ess-/Kochbereich
•Arbeitszimmer (optional)
•Gäste-WC mit Dusche
•Hauswirtschaftsraum mit zusätzlichem Zugang zur Garage
•Großzügige Diele mit Blick ins OG
Obergeschoss:
•Elternschlafzimmer mit Zugang zum Ankleideraum (Klimatisiert)
•Ankleideraum mit direktem Zugang zum Bad
•Zwei Kinderzimmer (Eins mit zusätzlicher Empore)
•Familienbad mit Dusche, Badewanne, Doppelwaschbecken und WC
Kellergeschoss:
•Hobbyraum (auch als Küche, Wohnzimmer oder Schlafzimmer nutzbar)
•Duschbad mit WC
•Abstellraum (auch als weiteres Schlafzimmer geeignet)
•Heizungsraum
•Waschküche
•Flur mit viel Stauraum
•Energieeffizienz: KfW 55 Standard, Erdwärme, zentrale Lüftungsanlage
•Fenster: 3-fach verglaste Schüco-Fenster mit erhöhtem Einbruchschutz
•Fußbodenheizung/-kühlung: in EG, OG und KG (teilweise auch in den Duschen)
•Deckenhöhe: EG 2,72 / 5,60 m, KG 2,59 m
•Smart Home: Busch & Jäger Schaltsystem, programmierbar und steuerbar über App
•Klimaanlage: im Elternschlafzimmer
•Innenausbau:
o Großformatige Feinsteinzeugfliesen 120 x 60 cm
o Natursteintreppe
o Hochwertiger Vinylboden im Schlafbereich (Industriestandard)
o Extra breite und hohe Türen im gesamten Haus
•Garage & Stellplätze:
o Doppelgarage mit Zugang zum Haus und Garten
o Carport mit Echtglaseindeckung (begehbar)
o 3 überdachte + 5 weitere Stellplätze
•Dach: Glasierte Flachdachziegel
•Keller: vollständig ausgebaut, Betonwände (36,5 cm) im Erdbereich, wohnlich nutzbar
•Garten: sehr gepflegt, mit sonniger Ausrichtung
Verkauf im Bieterverfahren zum Höchstgebot
-Der angegebene Preis ist das Mindestgebot
Besichtigungstermine erfolgen ausschließlich nach Vorlage folgender Unterlagen:
•Gültige Kopie eines Ausweisdokuments
•Finanzierungsnachweis oder Kapitalnachweis über mindestens 1.000.000 €
Erstkontakt bitte ausschließlich per E-Mail.
•Die genaue Adresse wird nach qualifiziertem Erstkontakt gerne mitgeteilt.
________________________________________
Energieangaben
•Energieausweistyp: Bedarfsausweis
•Energieeffizienzklasse: A+
•Endenergiebedarf: 17,08 kWh/(m²·a)
•Primärenergiebedarf: 30,74 kWh/(m²·a)
•Heizungsart: Erdwärme
•Baujahr laut Energieausweis: 2018
Erftstadt-Erp ist ein ruhiger Ortsteil in unmittelbarer Nähe zu Lechenich mit sehr guter Anbindung an Köln, Bonn und Umgebung.
Ideal für Familien: Grundschule, Kita, Supermarkt, Arzt und Apotheke befinden sich direkt vor Ort.
Im nahen Umkreis bietet Erftstadt vielfältige weiterführende Schulen, Einkaufsmöglichkeiten, medizinische Versorgung und ein hervorragendes Freizeitangebot (Ville-Seen, Rad-/Wanderwege).
Verkehrsanbindung:
•A1, A61, A553 in wenigen Minuten erreichbar
•B265 mit direkter Verbindung nach Köln
•Bahnhof Erftstadt-Liblar mit Anschluss an den Regionalverkehr (nach Köln/Bonn)