Aussenansicht ab Garten
OG Essen und Küche (von vorne)
OK Kinderzimmer
OG Durchgang Dachtrerasse
OG Dachterasse
OG Durchgang Dachterasse
Kellerraum 3
Anbau Wohnen 1
Anbau Wohnen 2 (rechte seuite)
Anbau Wohnen 2
Anbau Wohnen 2 (Singleküche)
Anbau Gäste-Schlafkoje
Anbau Bad rechts
Anbau Abstellraum
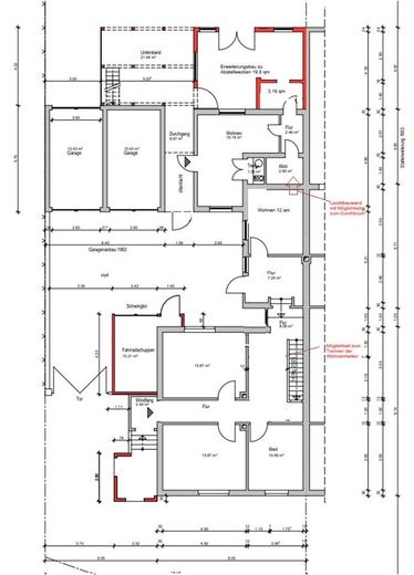
Grundriss EG
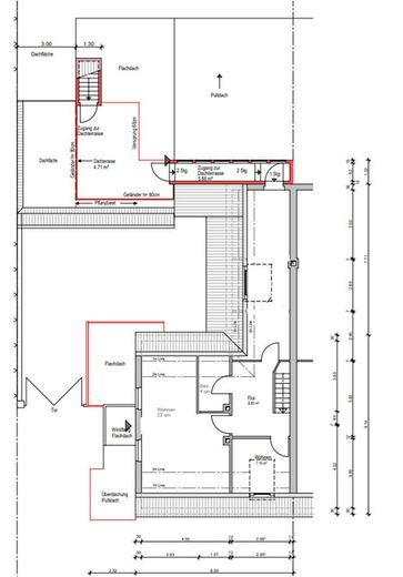
Grundriss OG
EG Flur und Aufgang OG
OG Wohnen
OG Wohnen Kamin
OG Küche und Essen (von hinten
OG Bad
OG Flur
OG kleines Zimmer
OG Dachboden (Klapptreppe)
Kellerraum 1
Kellerraum 2
Kellerzugang
Anbau Bad links
Garten
Gartenansicht ab Dachtertasse
EG Bad (früher Küche)
Außenansicht ab Straße

Doppelhaushälfte mit Potenzial – geeignet für 2 Familien, Mehrgeneration, Wohngemeinschaften

Osterbruchweg, 1
30966 Niedersachsen - Hemmingen
Niedersachsen
395.000 €
Selling Price
178 m²
Living Area
7
Rooms
TraumImmo-ID: UVK5VY3
Partner-ID: 383099
Partner-Property by: ohne-makler.net
Contact:
Privat von Wolfgang Stieler

Contact now

Information

  • Type: Semi-Detached House
  • Living Area ca.: 178 m²
  • Free From: sofort
  • Rooms: 7
CellarKitchenGarden

  • Property Area: 855.0
  • Construction Year: 1948
  • Condition: NeedOfRenovation
  • Heating Type: StoveHeating
  • Firing Type: Electricity
  • Storeys: 2
  • Usable Floor Space: 160.0

Selling Price & Extra Costs

Selling Price395.000 €
Courtageno courtage for buyers

About this dream house

Property Description

Dieses Angebot richtet sich explizit an handwerklich begabte Käufer, die durch Eigenleistung erhebliche Kosten sparen möchten.

Keine Maklerkosten: Sie sparen die übliche Maklerprovision, da diese weder im Verkaufspreis enthalten noch zusätzlich berechnet wird.

Fundierte Sanierungsbasis: Es liegt bereits ein finanzierter Sanierungsplan vor, der nicht nur konkrete Auskunft über die zu erwartenden Sanierungskosten gibt, sondern auch erhebliche zusätzliche Zuschüsse in Aussicht stellt.

Individuelle Gestaltung: Das Haus bietet Ihnen die ideale Leinwand, um es individuell umzubauen und perfekt auf Ihre eigenen Bedürfnisse zuzuschneiden.

Bodenwert im Fokus: Der Bodenrichtwert liegt laut Gutachten bereits zwischen 213.750 € und 273.600 €. Im Vergleich zum Gesamtpreis von 390.000 € verbleibt für das Gebäude selbst lediglich eine Differenz von 116.400 € bis 145.000 € – ein echtes Sparpotenzial!

Suchen Sie ein Projekt, bei dem Sie durch Ihr handwerkliches Geschick einen hohen Mehrwert schaffen und dabei Maklerkosten sowie erhebliche Sanierungszuschüsse nutzen können? Dann ist dieses Haus die perfekte Wahl!

Das 1948 erbaute, vollunterkellerte Haus befindet sich in einer verkehrsberuhigten 30-km/h-Zone in ruhiger, naturnaher Lage – unweit des beliebten Naherholungsgebiets Arnumer See – und überzeugt durch seine zentrale Anbindung bei gleichzeitiger Nähe zur Natur. Im Laufe der Jahre wurde das Gebäude durch geschickte An- und Ausbauten erweitert. Bis zu unserem Kauf 2006 als Zweifamilienhaus genutzt, bot es ursprünglich zwei Haushalten Platz, bevor es zu einem großzügigen Einfamilienheim für eine sechsköpfige Familie umgestaltet wurde.
Die vorhandene Infrastruktur ermöglicht eine problemlose Rückumwandlung in die ursprüngliche Zweifamilienhaus-Struktur – ideal für vielfältige Nutzungskonzepte wie z. B. Eigennutzung mit Mieteinnahmen. Nach dem Auszug der Familie steht das Haus sofort bezugsfertig für neue Eigentümer bereit.

Das Haus wird provisionsfrei von privat angeboten. Der Preis wurde nach gründlicher Marktrecherche bewusst attraktiv kalkuliert und ist bei ernsthaftem Interesse verhandelbar. Damit bietet sich die seltene Chance, ein etabliertes Haus mit guter Bausubstanz und hohem Entwicklungspotenzial zu erwerben.


Furnishing

DAS HAUPTHAUS
Erdgeschoß:
Das Erdgeschoss bietet mit seinen rund 60 m² und separatem Zugang von vorn drei individuell gestaltbare Räume, die sich flexibel nutzen und verändern lassen. Ursprünglich war hier eine abgetrennte Mietwohnung eingerichtet, während der restliche Bereich von den Vorbesitzern selbst bewohnt wurde. Später wurde die Trennungswand entfernt, um eine durchgehende Nutzung des Hauses Familienwohnraum zu ermöglichen. Die vorhandene Struktur erlaubt es jedoch problemlos, das Erdgeschoss wieder in zwei separate Wohneinheiten mit eigenständigen Zugängen aufzuteilen. Zusätzlich ließe sich durch eine geschickte Umgestaltung im Durchgangsbereich ein vierter Raum schaffen, was die Nutzungsmöglichkeiten weiter erhöht.
Obergeschoss:
Das etwa 80 m² große Obergeschoss (durch die teilweise Dachschräge/Kniestock optisch großzügiger wirkend) beherbergt ein geräumiges Wohnzimmer mit gemütlichem Kamin, das sich bei Bedarf in zwei separate Räume unterteilen lässt. Daran schließt sich eine großzügige Küche mit üppigem Essbereich an, von der aus ein direkter Durchgang zur weitläufigen Dachterrasse (über den Garagen) mit Treppenabgang zum Garten führt - ideal für entspannte Sommerabende.
Neben einem Badezimmer bietet diese Etage zusätzlich einen kleineren, vielseitig nutzbaren Raum, der zuletzt als Kinderzimmer diente. Über eine platzsparende Klapptreppe erreicht man das vollständig ausgebaute Dachgeschoss, das bisher als Schlafraum genutzt wurde, aber ebenso als Arbeitszimmer, Kreativbereich oder zusätzlicher Rückzugsraum dienen könnte.
Keller:
Das vollständig unterkellerte Haupthaus verfügt über großzügige Kellerräume. Besonders hervorzuheben ist ein ca. 15 m² großer, mit praktischen Arbeitsflächen ausgestatteter Raum, der bisher als Hobby- und Arbeitsbereich genutzt wurde, sowie ein weiterer Raum mit etwa 15 m². Bei einer möglichen Teilung des Haupthauses in zwei Wohneinheiten ließen sich diese Kellerräume jeweils einer Wohnung zuordnen. Ein zusätzlicher, bisher als Waschkeller genutzter Raum könnte im Zuge einer Sanierung ideal als Heizungskeller umfunktioniert werden. Die vorhandenen Durchgänge und Nischen bieten weitere nutzbare Stell- oder Lagerflächen und erhöhen somit die Vielseitigkeit des Kellers.
DER ANBAU
Der ehemalige Waschküchen- und Stallanbau wurde in den 1960er Jahren von den Vorbesitzern zu einer praktischen Einliegerwohnung mit kleiner Küchenpantry und Bad umgebaut. Ein Teil des Anbaus wurde dabei dem Haupthaus zugeschlagen. Durch den einfachen Rückbau eines Trockenbau-Durchgangs ließe sich der Wohnraum um ca. 40 m² erweitern – eine 2024 bauamtlich genehmigte Option, die vielfältige Nutzungsmöglichkeiten wie einen Gästebereich, ein Arbeitszimmer oder Ähnliches eröffnet.
Hinweis zur Entwässerung:
Ursprünglich waren das Bad und die Küchenzeile des Anbaus an eine nicht mehr genutzte Dreikammer-Klärgrube angeschlossen. Später erfolgte die Entwässerung über eine Hebeanlage, die an den Kanal des Haupthauses geleitet wurde. Diese wurde im Zuge von Abrissarbeiten außer Betrieb genommen und entfernt. Für eine künftige Nutzung ist daher ein neues Entwässerungsmodell durch Anschluss an den Haupthauskanal erforderlich.
Über dem Anbau befindet sich ein Kriechboden, der zusätzlichen Stauraum für das Obergeschoss bietet.
GARAGEN UND ABSTELLFLÄCHEN
Das Grundstück verfügt über zwei massive Garagen, von denen eine einen Durchbruch zum Gartenbereich hat. Weiterhin gibt es eine Fahrradgarage in Leichtbauweise sowie Abstellflächen für weitere Fahrzeuge usw. vor dem Haus, auf dem Hof und unter dem großen Unterstand hinter den Garagen.
GARTEN
Der ca. 320 qm große Garten bietet Hochbeete, Gartenteich und eine Terrasse aus WPC. Dank des Durchbruchs in der Garage ist eine Zufahrt durch Fahrzeuge möglich.


Other

ZUSTAND UND POTENZIAL DES HAUSES
Dieses Haus bietet mit seiner soliden Bausubstanz die ideale Grundlage, um mit kreativen Ideen ein individuelles Zuhause ganz nach Ihren Vorstellungen zu gestalten. Für die erforderliche Sanierung stehen aktuell attraktive Förderprogramme der Bundesregierung zur Verfügung. Ein detaillierter Sanierungsfahrplan, der in diesem Jahr erstellt wurde, liegt zur Einsicht bereit und gibt Ihnen eine klare Richtung vor.
Ursprünglich planten wir, das Haus zu sanieren und in zwei Wohneinheiten aufzuteilen, wobei der Anbau mit Gartenzugang für unsere eigene Nutzung vorgesehen war. Aus Altersgründen haben wir uns nun entschieden, eine Wohnung zu beziehen und das Haus zu verkaufen.
Um das Haus auf den Standard eines Effizienzhauses 55 zu bringen, schlägt der Energieberater die Erweiterung der Außenwanddämmung, die Erneuerung der Fenster im Obergeschoss sowie der Heizungsanlage vor. Darüber hinaus wurden von uns die Überarbeitung der Elektroinstallation und die Modernisierung der Badezimmer in Betracht gezogen. Auch eine Erneuerung der Dachfläche und die Installation von Solarflächen wären eine lohnende Überlegung.
WERTSTEIGERUNGSPOTENZIAL
Dieses Haus eignet sich besonders für handwerklich begabte Käufer, die durch Eigenleistung einen großen Teil der Sanierungskosten einsparen und so eine erhebliche Wertsteigerung erzielen können.
Das gesamte Grundstück ist im Flächennutzungsplan der Stadt Hemmingen als Wohnbaufläche ausgewiesen. Auch wenn derzeit kein Bebauungsplan vorliegt, könnte die zukünftige Entwicklung der Siedlungsstruktur unter Einbeziehung der angrenzenden Grundstücke eine Umwandlung in Bauland ermöglichen. Diese mögliche Perspektive könnte langfristig eine erhebliche Wertsteigerung bedeuten. Diese Angaben beruhen jedoch auf eigenen Spekulationen und stellen keine verbindliche Zusage dar. Maßgeblich sind die künftigen Festsetzungen der Gemeinde.
BESONDERE HINWEISE
Das Haus wird ausdrücklich im sanierungsbedürftigen Zustand und unter Ausschluss jeglicher Garantie- und Gewährleistungsansprüche angeboten.
Frühere Mieter berichteten von tierbedingten Geräuschen im Dachbereich, die vermutlich durch Marder verursacht wurden. Es kann daher nicht ausgeschlossen werden, dass die vorhandene Dämmung Beschädigungen aufweist. Zur Problembehebung wurden chemische Mittel eingesetzt; seitdem wurden keine weiteren Geräusche mehr festgestellt. Ein erneuter Befall kann jedoch nicht ausgeschlossen werden. Es können keine Angaben zu potenziellen, durch Vorbesitzer verbauten Schadstoffen gemacht werden. Sämtliche Angaben erfolgen nach bestem Wissen und Gewissen, jedoch ohne Gewähr.


Location

Location description

Die Lage dieser Immobilie bietet Ihnen ein hohes Maß an Lebensqualität. Sie profitieren von einer hervorragenden Infrastruktur mit einer großen Auswahl an Einkaufsmöglichkeiten, Restaurants, Gesundheitsversorgung, Bildungs- und Freizeiteinrichtungen in unmittelbarer Nähe am Ort.

Einkaufen:
•Lebensmittelmärkte: Großer „Ladage“-Edeka-Markt und PENNY-Discounter
•Bäckereien mit angeschlossenen Cafés: Calenberger Backstube und Brotmeisterei Steinecke
•Weinhandlung, Schreibwarengeschäft und Buchhandlung
Gastronomie:
•Restaurants:
oBacchus 1 (griechisch)
oCao (chinesisch)
oItalienische Küche: Trattoria STROMBOLI, Ristorante il Lago, Buongiorno Eatalian Kitchen
•Pizzabringdienst Pinocchio
•Kebabimbiss „Arnum Döner“
•Eisdiele
Gesundheit:
•Mehrere allgemein- und zahnmedizinische Arztpraxen
•Apotheken
•Physiotherapeutische Praxen
Freizeit & Sport:
•Fitnessklub
•Sportverein mit zahlreichen Sparten wie:
oBoule, Fußball, Funsport, Gesundheitssport, Judo, Leichtathletik, Rad/Wandern, Schwimmen, Taekwondo, Tanzen, Tennis, Tischtennis und Turnen
•Beheiztes Schwimmbad
•Arnumer See (direkt nebenan zum Baden und Entspannen)
Bildung & Betreuung:
•Wäldchen-Grundschule
•Mehrere Kindertagesstätten
Sonstiges:
•Kiosk mit DHL-Dienst (geöffnet von 7–21 Uhr)
Mobilität
•Regelmäßige Buslinien mit einer Haltestelle in ca. 250 m Entfernung.
•Der Stadtbahnendpunkt in Hemmingen mit Park & Ride-Möglichkeiten ist ca. 2500 m entfernt.

Alles andere finden Sie nur wenige Kilometer entfernt und die Stadt Hannover erreichen Sie in wenigen Minuten.

ohne-makler.net
Contact:
Privat von Wolfgang Stieler

Contact now