Einbauküche
Büroräume
Empfangsbereich
Aufzug u. Treppenhaus
Lichtdurchflutetes Treppenhaus
Außenansicht
Eingang
Barrierefreier Zugang
Aufzug
Breites Treppenhaus
Eingangsbereich 1. OG
Flur mit Bürozugängen
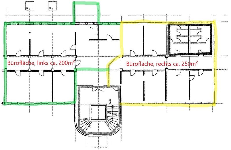
Grundriss OG
Grundriss UG
Representatives Treppenhaus
Büroräume
Helle geräumige Büroräume
Konferenz - oder Büroräume
Toilettenräume mit Duschen

Büro-/Geschäftsräume zwischen 18 und 450m² ab 9€/m², barrierefrei

Wilhelmstraße 78
68799 Reilingen – Reilingen
Baden-Württemberg
TraumImmo-ID: ZDF677N
Partner-ID: 403048
Partner-Property by: ohne-makler.net
Contact:
Angebot vom Eigentümer

Contact now

Information

  • Type: Office Floor
  • Free From: sofort
Handicapped AccessibleGuest-ToiletKitchenBalcony

  • Construction Year: 1995
  • Condition: WellKept
  • Heating Type: CentralHeating
  • Firing Type: Gas
  • Storeys: 2

Rent & Utilities

Courtageno courtage for buyers

About this dream office

Property Description

Sie suchen lichtdurchflutete, flexibel gestaltbare Räume für Ihr Büro, Ihre Praxis oder Ihr Unternehmen?
Großzügige Gewerbeflächen in einem gepflegten Geschäftshaus in Reilingen bieten Ihnen ideale Voraussetzungen für modernes Arbeiten – hell, ruhig und verkehrsgünstig gelegen.
Es stehen Räume in unterschiedlichen Größen von 18m² bis zu 450m² ab 9 €/m² Kaltmiete zur Verfügung. Eine individuelle Gestaltung und Aufteilung ist möglich.


Furnishing

•Barrierefreier Zugang: Großzügiger Aufzug & geräumiges Treppenhaus
•Flexible Nutzung: Ideal für Büros, Agenturen, Praxen oder Kanzleien
•Individuelle Gestaltung: Raumaufteilung und Renovierung in Absprache
•Größe nach Bedarf: Räume in unterschiedlichen Größen von 18m² bis 450m² verfügbar
•Zustand: teilweise klimatisiert, renoviert oder unrenoviert
•Terrasse: Kleine Außenfläche – z. B. für Pausen oder Meetings im Freien
•Sozialräume sowie getrennte Toiletten und Duschmöglichkeiten
•Parkplätze: Außenstellplätze & Tiefgaragenplätze auf Wunsch verfügbar
•Gute Lage: Verkehrsgünstige Anbindung, zentrale Lage in Reilingen


Other

HERAUSGEBER

SPGI Grundstücks GmbH
Wilhelmstraße 78
68799 Reilingen
Fon +49 (0)6205 977496
Fax +49 (0)6205 977468
spgi@schaumaplast.de

Angaben gemäß § 5 DDG (Gesetz über Nutzung von Telediensten)

Geschäftsführer: Bernhard Hauck, Markus Hoffmann
Sitz der Gesellschaft ist Reilingen.
Eingetragen beim Registergericht Mannheim HRB 753795

Umsatzsteueridentifikationsnummer: DE 453291862


Location

Location description

Die Immobilie befindet sich in zentraler ruhiger Lage in Reilingen. Der Standort bietet eine gute Verkehrsanbindung zwischen A5 (6 km, 7 Minuten) und A6 (11 km, 10 Minuten) und ist mit dem Auto und mit öffentlichen Verkehrsmitteln gut zu erreichen. In der Umgebung befinden sich zahlreiche Geschäfte der Nahversorgung, Dienstleister und gastronomische Angebote.

ohne-makler.net
Contact:
Angebot vom Eigentümer

Contact now