WC hofseitig
Verkaufsraum straßenseitig
Uellendahler Strasse 332
Küche
Flur
Verkaufsräume EG links
Nebenräume Keller 10 und 11
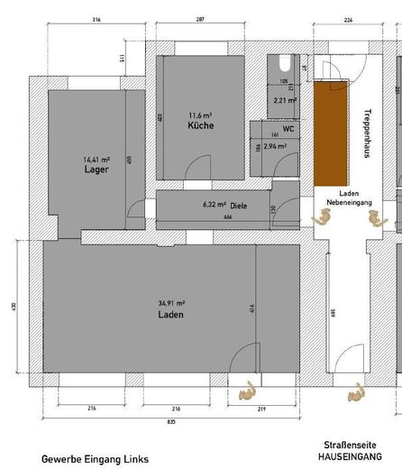
Grundriss EG
Grundriss Keller 10 und 11

Gewerbeeinheit für Systemgastromonie (Pizza, Lieferdienst etc.) oder Laden

Uellendahler Straße 332
42109 Wuppertal – Uellendahl-Katernberg
Nordrhein-Westfalen
1250 €
Kaltmiete
3
Zimmer
TraumImmo-ID: 25ZJKMA
Partner-ID: 428957
Partner-Objekt von: ohne-makler.net
Anbieter:
Privat vom Eigentümer

Anbieter kontaktieren

Information

  • Typ: Restaurant
  • Etage: 0
  • Bezugsfrei ab: Nach Vereinbarung
  • Zimmer: 3
KellerGäste-WC

  • Baujahr: 1910
  • Zustand: WellKept
  • Heizart: SelfContainedCentralHeating
  • Brennart: Gas
  • Stockwerke: 1
  • Badezimmer: 1.0

Miete & Nebenkosten

Miete1250 €
Provisionkeine Provision für Käufer

Über dieses Traum-Gastronomieobjekt

Objektbeschreibung

Zur Vermietung steht eine attraktive und funktional geschnittene Gewerbeeinheit mit ca. 103 m² Nutzfläche in sehr gut sichtbarer Lage der Uellendahler Straße (Höhe McDonald’s).
Das Objekt eignet sich ideal für Systemgastronomie, Imbiss, Take-away, Lieferdienst oder vergleichbare Konzepte.
Die Einheit überzeugt durch eine große Fensterfront zur Straße, die eine gute Sichtbarkeit, Werbemöglichkeit und Präsenz bietet.

Flächen & Grundriss
Die Nutzfläche gliedert sich wie folgt:
ca. 74 m² für Küche, Gastraum, zusätzlichen Nebenraum (z. B. Büro oder Vorbereitung), WC
ca. 29 m² separate Nutzfläche/ Lager
großzügiges Kühlhaus für Warenlagerung
Diese Aufteilung bietet ideale Voraussetzungen sowohl für reinen Lieferbetrieb als auch für Take-away mit Kundenkontakt.

Ausstattung & Besonderheiten
Moderner, leistungsstarker Luftabzug
Großes Kühlhaus
Große Fensterfront mit hoher Außenwirkung
Praktische und flexibel nutzbare Raumstruktur
Gute Voraussetzungen für verschiedene gastronomische Konzepte.

Parkmöglichkeiten
Für das Objekt ist ein Parkplatz inkludiert es können bis maximal 3 weitere PKW-Stellplätze angemietet werden – ideal für Mitarbeiter, Lieferverkehr etc. Die Parkplätze befinden sich im Hof.


Ausstattung

Aktuell liegt eine Genehmigung für die Nutzung als Systemgastronomie, Imbiss, Take-away oder Lieferdienst vor. Der Vermieter is offen in Bezug auf Nutzungsänderungen. Voraussetzung ist eine faire, wirtschaftlich sinnvolle Lösung hinsichtlich Miete oder Pacht, die gemeinsam abgestimmt werden kann.


Lage

Lagebeschreibung

Die Einheit befindet sich an der Uellendahler Straße, einer gut frequentierten Hauptverkehrsachse mit stabiler Kundenfrequenz.
Eine gute Anbindung an den Individualverkehr sowie an den öffentlichen Nahverkehr ist gegeben. Das umliegende Wohn- und Gewerbegebiet bietet ein solides Einzugsgebiet für Liefer- und Abholkonzepte.

ohne-makler.net
Anbieter:
Privat vom Eigentümer

Anbieter kontaktieren