Wohnzimmer
Schlafzimmer
Küchenzimmer (Terrassenzugang)
Küchenzimmer
Terrasse (15m²)
Wohnzimmer (2)
Schlafzimmer (2)
Flur
Innenhof
Hausflur
Umgebung (Schloß CHB)
Gebäude
Umgebung (Spree)
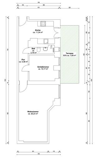
BS16 - Grundriss

2-Zimmer kernsaniert in Charlottenburg | sofort Bezugsfrei | Barrierarm | Ohne Makler

Brauhofstraße 16
10587 Berlin – Charlottenburg
Berlin
379.900 €
Kaufpreis
63 m²
Wohnfläche
2
Zimmer
TraumImmo-ID: 29D3UGD
Partner-ID: 402803
Partner-Objekt von: ohne-makler.net
Anbieter:
Privat von J. Lüdemann

Anbieter kontaktieren

Information

  • Typ: Etagenwohnung
  • Etage: 0
  • Wohnfläche ca.: 63 m²
  • Bezugsfrei ab: sofort
  • Zimmer: 2
Keller

  • Baujahr: 1900
  • Heizart: CentralHeating
  • Brennart: FiringTypeDistrictHeating
  • Badezimmer: 1.0
  • Energieverbrauch beinhaltet warmes Wasser: True

Kaufpreis & Kosten

Kaufpreis379.900 €
Provisionkeine Provision für Käufer

Über dieses Traum-Apartment

Objektbeschreibung

Diese im Erdgeschoss des Seitenflügels gelegene, 63,4 m² große Wohnung wurde 2025 umfassend kernsaniert und befindet sich im Erstbezug. Hohe Decken, originale Stuckelemente und ein durchdachtes Raumkonzept verbinden historischen Altbaucharme mit modernem Wohnkomfort. Der Erstbezug nach der aufwendigen Sanierung bietet ein außergewöhnliches Wohngefühl, bei dem auf Ästhetik und Qualität geachtet wurde.

Die offene Wohnküche schafft einen effektiven, kommunikativen Wohnbereich. Die Nordausrichtung sorgt für angenehm gleichmäßiges Tageslicht; dank der hohen Fenster und des weiten, grünen Innenhofs ist die Wohnung dennoch hell und freundlich.

Ein besonderes Highlight ist die neu angelegte Terrasse (ca. 14 m²) mit 1,60 m hohem Zaun, die zum ruhigen Innenhof ausgerichtet ist.

Das Gebäude aus der Kaiserzeit besticht durch seine prachtvolle Stuckfassade und die repräsentative Lage nahe Schloss Charlottenburg, Ku’damm, Kantstraße und Wilmersdorfer Straße.


Ausstattung

• Echtholzparkettboden
• Barrierearm
• Erneuerung der gesamten Elektrik inkl. Neuem Sicherungskasten und Multimediakasten
• Modernes, schmal geschnittenes Bad mit: Grohe-Armaturen, Ebenerdiger Dusche, Integrierter Ablage, Marazzi Fliesen aus Italien
• Offene Küche mit Vorbereitung für Kücheninsel (inkl. Stromanschluss)
• Jedes Zimmer inkl. Flur mit Fenster
• Neue Innentüren
• Freigelegte Backsteinwände, inszeniert mit Spotlights
• Neue Klingelanlage mit Gegensprechanlage
• Neu gestaltete Terrasse (ca. 14 m²) mit 1,60 m hohem Sicherheitszaun
• Kellerraum vorhanden


Sonstiges

• Das Mobiliar sowie die Küche gehören zum Staging und werden nicht mitverkauft


Lage

Lagebeschreibung

Die Wohnung liegt im Herzen von Charlottenburg, einem der traditionsreichsten und zugleich lebendigsten Bezirke Berlins. Die direkte Umgebung verbindet historische Architektur der Kaiserzeit mit gewachsenem Kiezleben, vielfältiger Gastronomie und erstklassiger Infrastruktur.

Die U-Bahn-Station Richard-Wagner-Platz (U7) befindet sich nur ca. 200 m entfernt. Die Spree liegt in der Nebenstraße, das Schloss Charlottenburg erreichen Sie in ca. 5 Gehminuten. Über den ÖPNV gelangen Sie in nur ca. 15 Minuten zum Berliner Hauptbahnhof. Die Technische Universität Berlin befindet sich ebenfalls in unmittelbarer Nähe.

Einkaufsmöglichkeiten, kulturelle Highlights wie die Deutsche Oper sowie der Kurfürstendamm sind schnell zu Fuß oder mit dem Fahrrad erreichbar. Trotz der zentralen Lage bietet die Umgebung durch ihre grünen Innenhöfe und die Nähe zu Spree und Schlosspark ein ruhiges, angenehmes Wohnumfeld.

ohne-makler.net
Anbieter:
Privat von J. Lüdemann

Anbieter kontaktieren