Straßenansicht
Gartenseite mit Terrasse
Wohnraum
Carport
Küche
Zimmer im OG
Galerie Treppenhaus
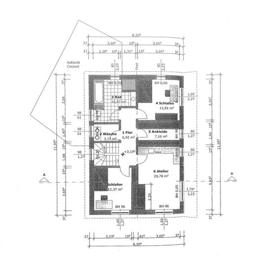
Grundriss Obergeschoss
Grundriss Erdgeschoss
Grundriss Aussenanlage
Energieausweis

Von Privat! Freistehendes Einfamilienhaus Marburg Stadtwald/Ockershausen

Die vollständige Adresse erhalten Sie vom Anbieter
35037 Marburg – Marburg
Hessen
700.000 €
Kaufpreis
158 m²
Wohnfläche
5
Zimmer
TraumImmo-ID: 3GKRKMW
Partner-ID: 418220
Partner-Objekt von: ohne-makler.net
Anbieter:
Privat von Angela Rieger

Anbieter kontaktieren

Information

  • Typ: Einfamilienhaus
  • Wohnfläche ca.: 158 m²
  • Bezugsfrei ab: Nach Vereinbarung
  • Zimmer: 5
KücheGarten

  • Grundstücksfläche: 524.0
  • Baujahr: 2011
  • Zustand: MintCondition
  • Heizart: FloorHeating
  • Brennart: FiringTypeDistrictHeating
  • Stockwerke: 2
  • Nutzfläche: 13.0
  • Badezimmer: 2.0
  • Energieverbrauch beinhaltet warmes Wasser: True

Kaufpreis & Kosten

Kaufpreis700.000 €
Provisionkeine Provision für Käufer

Über dieses Traum-Haus

Objektbeschreibung

Dieses junge Einfamilienhaus, Erstbezug 2012, im skandinavischen Baustil begeistert mit einem durchdachten Grundriss, lichtdurchfluteten Räumen und einer Ausstattung, die höchsten Ansprüchen gerecht wird.
Im Erdgeschoss erwartet Sie ein einladender Eingangsbereich mit Garderobe, ein vollausgestattetes Duschbad mit Tageslicht, ein Arbeits- oder Schlafzimmer mit Blick in den Garten und der schöne Wohnbereich mit integrierter Küche und Essbereich.
Die bodentiefen Terrassentüren sind mit außenliegenden elektrischen Raffstoren versehen. Die hohen Räume mit teils offenen Dachbalken und das natürliche, hochwertige Holzparkett geben dem Haus eine ganz besondere Wohnatmosphäre. Ökologische Baumaterialien, Fußbodenheizung und ein automatisches Be- und Entlüftungssystem tragen darüber hinaus zur hohen Wohnwert-Qualität bei.
Zum Obergeschoss führt eine schöne Holztreppe mit offener, lichtdurchflutender Galerie. Dort befinden sich drei weitere Zimmer, ein Ankleideraum, ein separater Raum für Waschmaschine-/Trockner und das Hauptbadezimmer mit Badewanne sowie einer separaten Dusche. Durch das moderne Pultdach finden Sie auch hier hohe Räume mit bodentiefen Fenstern mit Blick ins Grüne und elektrischem Sonnenschutz.
Das gesamte Haus ist mit Echtholzparkett in den Wohnräumen sowie mit hochwertigen, grauen Fliesen im Eingangsbereich, Kochbereich und den Badezimmern ausgestattet.
Angrenzend zum Haus befindet sich der Carport, ein separates Geräte-/Gartenhaus und der Technikraum, durch den Sie ebenfalls in das Wohnhaus gelangen. Die Außenanlagen und der pflegeleichte Garten wurden durch einen Gartenfachbetrieb geplant und realisiert.


Ausstattung

Individuelle Ausstattungsmerkmale:
•Fußbodenheizung
•Zisterne
•Ankleide
•Einbauküche


Sonstiges

Bei ernsthaftem Kaufinteresse und seriösem Finanzierungsnachweis ist gerne eine Besichtigung nach vorheriger Terminabsprache möglich. Bitte schreiben Sie mir ein paar kurze Zeilen mit Terminvorschlag.
Makleranfragen sind nicht erwünscht.
Vielen Dank für Ihr Verständnis.


Lage

Lagebeschreibung

Die Immobilie befindet sich im beliebten Marburger Stadtteil Stadtwald/Ockershausen, einer attraktiven und ruhigen Wohnlage. Diese Lage vereint die Vorzüge eines gewachsenen Wohngebiets mit einer hervorragenden Infrastruktur und einer naturnahen Umgebung.
In unmittelbarer Nähe finden Sie einen Tegut Supermarkt sowie weitere Supermärkte, Apotheken, Bäckereien und Dienstleister des täglichen Bedarfs in ca. 1,5 km Entfernung. Das Stadtzentrum von Marburg mit dem Lahn-Center ist nur knapp 3-4 km entfernt und bietet erweiterte Einkaufsmöglichkeiten.
Besonders für Familien ist die Lage ideal. Die Freie Schule Marburg liegt in unmittelbarer Nähe zur Immobilie. Zudem befinden sich die Richtsberg-Gesamtschule (ca. 6 km) und die inklusive Erich-Kästner-Schule im näheren Umkreis. Ein moderner Modulbau für die Kinderbetreuung wurde erst kürzlich (2025/2026) fertiggestellt, um der hohen Nachfrage im Viertel gerecht zu werden.

Die Anbindung an den öffentlichen Nahverkehr ist durch die Stadt Marburg gesichert. Mit dem zum Fahrplanwechsel 2026 optimierten Busnetz erreichen Sie die Innenstadt und den Hauptbahnhof in wenigen Minuten. Für Autofahrer ist die schnelle Erreichbarkeit der B3 (Stadtautobahn) ein entscheidender Vorteil, die Sie zügig in Richtung Gießen/Frankfurt oder Kassel bringt.

Die direkte Umgebung lädt zu Aktivitäten im Grünen ein mit zahlreichen Wander- und Radwegen rund um den Stadtwald. Das nahegelegene Südviertel und die historische Marburger Oberstadt bieten zudem ein reiches kulturelles Angebot und eine vielfältige Gastronomie.
Das familienfreundliche und ruhige Wohnumfeld in Kombination aus Bildungseinrichtungen direkt vor der Tür und der schnellen Erreichbarkeit der Marburger City macht diesen Stadtteil zu einer der gefragtesten Lagen im Marburger Süden.

ohne-makler.net
Anbieter:
Privat von Angela Rieger

Anbieter kontaktieren