| Provision | keine Provision für Käufer |
|---|
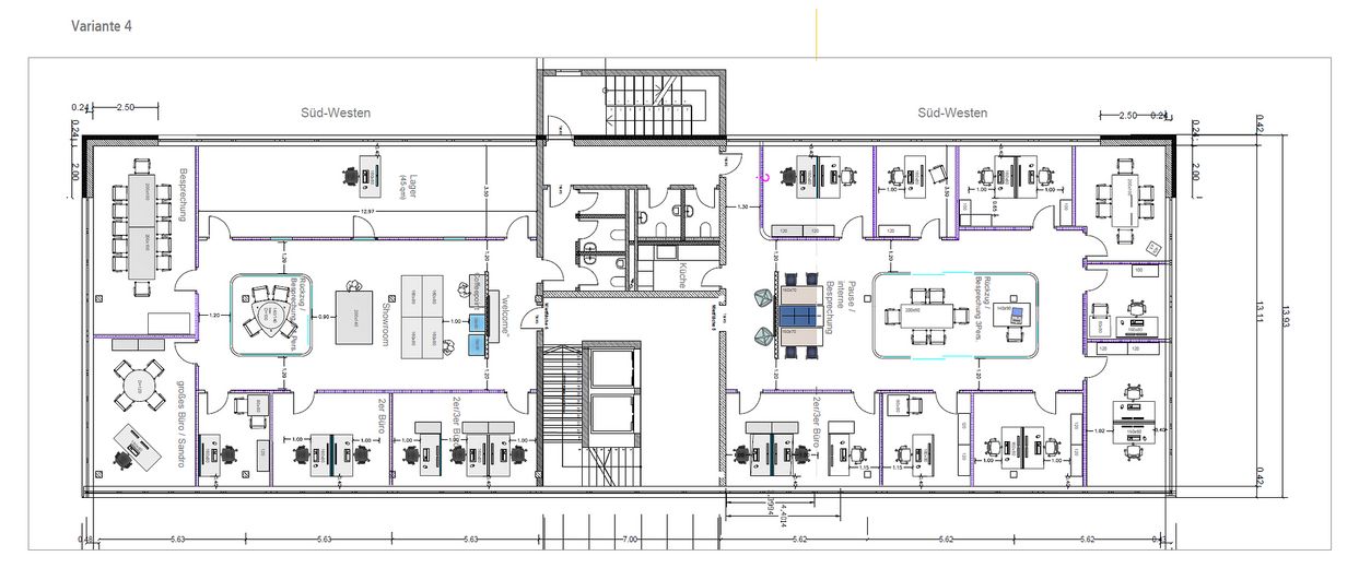
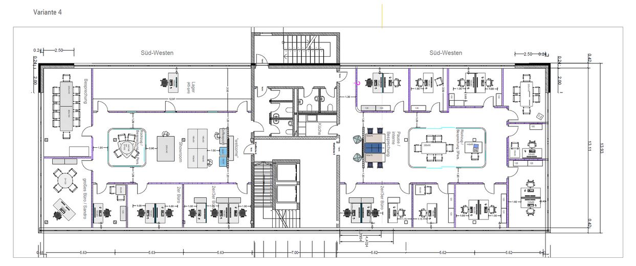
In zentraler Lage von Göttingen entsteht aktuell ein modernes Bürogebäude. Wir als Hauptmieter belegen die gesamte 4. Etage (von 5) mit insgesamt ca. 440 m² und Blick ins Grüne und bieten die Hälfte der Fläche zur Vermietung an. (Teilbar ab 15 m²)
Wir selbst als techcentive GmbH sind ein junges, modernes IT-Unternehmen, welches im kommenden Jahr aus Duderstadt nach Göttingen zieht.
Für die zu vermietende Fläche gibt es zwei denkbare Szenarien:
1. Die Büros einer hälfte werden von uns einzeln vermietet und wir schaffen einen Ort für junge Unternehmen, Startups, Einzelunternehmer, Makler, Agenturen oder Leute die raus aus dem Homeoffice möchten und dem Wunsch nach einem oder mehreren Einzel/Doppelbüros. Hierfür wird es einen gemeinschaftlich nutzbarem Meetingraum, Gemeinschaftsfläche, Internetanschluss und weiteren Annehmlichkeiten geben.
2. Eine Hälfte wird komplett an ein Unternehmen vermietet.
Bei Interesse oder Rückfragen gerne direkt auf mich zukommen. Wir freuen uns über jede Anfrage.
Fläche & Gestaltung
- Aktuell im Bau, der Grundriss ist ein aktueller Entwurf und kann noch individualisiert werden
- Moderne Bauweise, helle Räume, hochwertige Materialien.
- Flexible Nutzungsmöglichkeiten
Ausstattung & Services
- Optionale Möblierung und IT-Arbeitsplatzausstattung: Einzelbüros oder auch die Gesamtfläche können auf Wunsch durch uns ausgestattet werden
- Nebenkosten: beinhalten auf Wunsch Internet, Netzwerkverkabelung und Betriebskosten
Moderne Sanitäranlagen, Teeküche, Aufzug, barrierefreier Zugang
Besonderheiten
Neubau mit modernster Gebäudetechnik
Hohe Flexibilität bei Raumaufteilung und Ausstattung
Attraktives, professionelles Umfeld
Ort: Göttingen
Fläche: ca. 220 m²
Nutzung: Büro / Gewerbe
Status: Im Bau, Bezug nach Fertigstellung (voraussichtlich [03/2026])
Am Rand gelegen im Gewerbegebiet mit Blick ins Grüne. Innenstadt und Einkaufsmöglichkeit in 5-7 Minuten mit Auto/Fahrrad erreichbar.