Empfang
Büro 1
Büro 3
Empfangsbereich
Büro 2
Kellerabgang
EG
UG

Helle, freundliche und ansprechende Büro-oder Praxisräume

Bahnhofstr. 4
91126 Schwabach – Schwabach
Bayern
2250 €
Kaltmiete
TraumImmo-ID: 4K962AE
Partner-ID: 422051
Partner-Objekt von: ohne-makler.net
Anbieter:
Privat von Michael von Lüdinghausen

Anbieter kontaktieren

Information

  • Typ: Büroetage
  • Etage: 0
  • Bezugsfrei ab: sofort
KellerBarrierefreiKüche

  • Baujahr: 1962
  • Zustand: WellKept
  • Heizart: CentralHeating
  • Brennart: Oil
  • Stockwerke: 1
  • Heizkosten in Nebenkosten enthalten: True

Miete & Nebenkosten

Miete2250 €
Nebenkosten450 € inkl. Heizkosten
Kaution8100€
Provisionkeine Provision für Käufer

Über dieses Traum-Büro

Objektbeschreibung

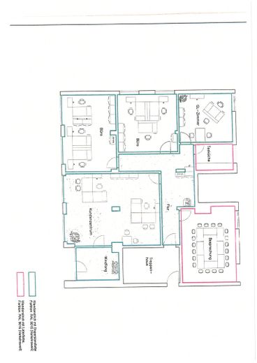
EG komplett LAN-Verkabelung mit Serverschrank im UG, neue doppelverglaste Fenster, sehr zentrale Lage mit öffentlichen Parkplätzen direkt vor dem Haus. Ideal für Parteiverkehr. Empfangsbereich mit Wartebereich, unterschiedlich große Räume. Alles sehr gepflegt, Teppichboden fast neu. Im UG ist der Sanitärbereich mit Herren- und Damen WC, Hauswirtschaftsraum Serverraum, Kellerraum und zusätzliche Lagerfläche. Neben Haupteingang gibt es noch einen separaten Nebeneingang, eventuell für Untervermietung geeignet.


Lage

ohne-makler.net
Anbieter:
Privat von Michael von Lüdinghausen

Anbieter kontaktieren