| Kaufpreis | 329.000 € |
|---|---|
| Provision | keine Provision für Käufer |
Die Wohnung – 2026 komplett neu gedacht
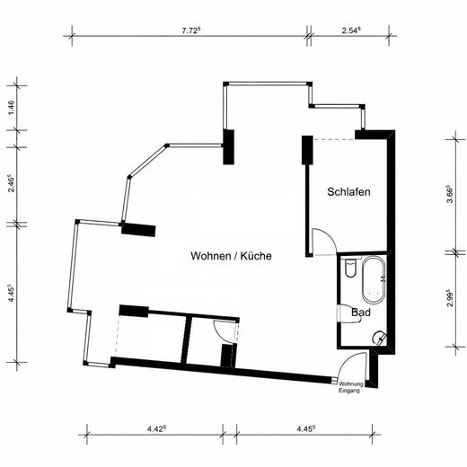
Die ca. 75 m² wurden umfassend saniert:
+ neue Elektrik
+ neue, moderne Schalterserie
+ neue Böden
+ neue Wände
+ neues Bad
+ offener, außergewöhnlich heller Grundriss
+ kleiner Hauswirtschaftsraum in der Wohnung
+ kleine Homeoffice-Nische hinter der Küche
+ separater Kellerraum / Verschlag
Das Ergebnis: Einziehen, Möbel mitbringen, wohlfühlen.
Kein Investitionsstau. Kein Renovierungsstress.
Die Wohnung liegt im 2. Obergeschoss eines gepflegten Hauses aus Baujahr 1982 und besticht durch ihren offenen Schnitt mit viel Sonnenlicht – morgens wie abends.
Mein Tipp für Deine individuelle Küchengestaltung: Eine moderne Küche mit Koch- oder Arbeitsinsel – perfekt für gesellige Abende.
(Beispielbilder wurden KI-gestützt visualisiert.)
Die kleine Homeoffice-Nische dahinter schafft einen clever abgetrennten Arbeitsbereich, ohne Wohnraum zu verlieren.
Das Haus & die WEG:
+ Sehr gepflegtes Mehrfamilienhaus
+ Baujahr 1982
+ Tolle, funktionierende Eigentümergemeinschaft
+ Zentralheizung von 2019
+ Wirtschaftlich solide aufgestellt
+ Keine größeren Maßnahmen geplant
Ein echtes Unikat:
Die WEG verfügt über eine riesige Gartenanlage zur Allgemeinnutzung – mitten im Bremer Viertel - nahezu einmalig.
Platz zum:
+ Spielen für Kinder
+ Grillen im Sommer
+ Entspannen nach Feierabend
+ Treffen mit Freunden
+ Ein grüner Rückzugsort im urbanen Umfeld.
Hausgeld (inkl. Heizung gemäß Wirtschaftsplan 2025)
Gesamt: 327,00 € monatlich
Davon:
ca. 300,00 € umlagefähig
ca. 27,00 € nicht umlagefähig
Heizkosten sind bereits enthalten.
Auch ideal zur Vermietung – Top-Lage mit starker Mietdynamik
Die Wohnung eignet sich hervorragend als Kapitalanlage in absoluter "Viertel-Bestlage".
Frisch sanierte 2-Zimmer-Wohnungen wie diese erzielen im Ostertor / Steintor aktuell sehr gute Quadratmeterpreise.
Finanzierungsbeispiel
Kaufpreis: 329.000 €
100 % Finanzierung
3,8 % Sollzins
1,0 % Tilgung
329.000 € × 4,8 % / 12 = ca. 1.316 € monatliche Rate
Key Facts auf einen Blick
75 m² Wohnfläche
2 Zimmer
2.OG
Baujahr 1982
umfassend saniert 2026
hochwertige Schüco Fenster
kleine Homeoffice-Nische
HWR in der Wohnung
Kellerraum
große Gartenanlage (Gemeinschaftsfläche)
Zentralheizung 2019
Hausgeld inkl. Heizung: 327 €
kein Investitionsstau
sofort bezugsfertig
Provisionsfrei von privat.
Keine Maklergebühr.
Makleranfragen ausdrücklich nicht erwünscht.
Die Lage – urbaner geht’s nicht
Morgens: runtergehen, Frisches vom Bio-Supermarkt holen.
Gegenüber im Harbour Café einen Cappuccino trinken.
Abends noch schnell beim Kiosk im Haus die Lieblingszeitschrift – alles direkt vor der Tür.
Hier wohnst du im Ostertor/Steintor – absolute Bestlage.
Restaurants, Bars, Kultur, Theater, Straßenbahn – alles fußläufig.
Und trotzdem: im Haus selbst ist alles angenehm ruhig.