Reihenhaus – KfW40 QNG, Top-Förderung - Familien ab 0,01% und Kapitalanleger ab 1,31% + 5+5% Afa!

Bamberger Str. 15
96135 Stegaurach – Stegaurach
Bayern
365.000 €
Kaufpreis
83 m²
Wohnfläche
4
Zimmer
TraumImmo-ID: 5HV5YDD
Partner-ID: 405551
Partner-Objekt von: ohne-makler.net
Anbieter:
Angebot von Marc Großkopf

Anbieter kontaktieren

Information

  • Typ: Reihenmittelhaus
  • Wohnfläche ca.: 83 m²
  • Bezugsfrei ab: Nach Vereinbarung
  • Zimmer: 4
Gäste-WCGarten

  • Grundstücksfläche: 250.0
  • Baujahr: 2026
  • Nutzfläche: 92.0

Kaufpreis & Kosten

Kaufpreis365.000 €
Provisionkeine Provision für Käufer

Über dieses Traum-Haus

Objektbeschreibung

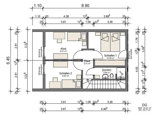
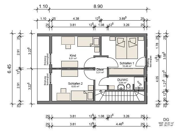
Dieses Neubauprojekt umfasst insgesamt 13 moderne Reihenhäuser in nachhaltiger Holzbauweise. Jedes Haus bietet eine Nutzfläche von 86,66 m² (ohne Terrassenfläche) und verfügt über 4 Zimmer, die sich durch einen effizienten Grundriss auszeichnen. Bei der Umsetzung kommen ausschließlich hochwertige Materialien zum Einsatz, um ein langlebiges und komfortables Zuhause zu schaffen.

Das Projekt wird nach dem KfW 40 QNG-Standard realisiert und erfüllt damit höchste Anforderungen an Energieeffizienz und Nachhaltigkeit.

Familien profitieren zusätzlich von der attraktiven Förderung über das KfW-Programm 300 Wohneigentum für Familien – Neubau, mit Finanzierungsmöglichkeiten ab 0,01% und Förderbeträgen bis zu 270.000 €.
https://www.kfw.de/inlandsfoerderung/Privatpersonen/Neubau/F%C3%B6rderprodukte/Wohneigentum-f%C3%BCr-Familien-(300)/

Kapitalanleger profitieren zusätzlich von der attraktiven Förderung über das KfW-Programm 298 Klimafreundlicher Wohnbau Wohngebäude – Neubau, mit Finanzierungsmöglichkeiten ab 1,31% und Förderbeträgen bis zu 150.000 € sowie Degressive AfA (5%) und Sonderabschreibung für QNG-Gebäude (5% p.a. für 4 Jahre).
https://www.kfw.de/inlandsfoerderung/Privatpersonen/Neubau/F%C3%B6rderprodukte/Klimafreundlicher-Neubau-Wohngeb%C3%A4ude-(297-298)/


Die Grundstücksflächen betragen jeweils ca. 250 m² und bieten ausreichend Platz für individuelle Gestaltung. Die Außenanlagen können von den Eigentümern nach eigenen Vorstellungen angelegt werden; lediglich die Zuwege im Gemeinschaftseigentum werden durch den Bauträger hergestellt. Alle weiteren Kosten wie Erschließung, Hausanschlüsse und Erdarbeiten sind bereits im Kaufpreis enthalten.

Darüber hinaus müssen von Ihnen keine weiteren Arbeiten wie Malerarbeiten, Bodenbeläge oder ähnliche Leistungen erbracht werden – die Häuser werden bezugsfertig übergeben. Einfach einziehen und wohlfühlen.

Die Fertigstellung ist für 2026 geplant, aktuell befindet sich das Projekt noch in der Planungsphase. Jetzt vormerken lassen!


Ausstattung

Stellplatz: 5.000,00 €


Lage

Lagebeschreibung

Die Gemeinde Stegaurach mit rund 6.900 Einwohnern befindet sich im oberfränkischen Landkreis Bamberg und zählt zur Metropolregion Nürnberg. Sie liegt idyllisch im Tal der Aurach, am Fuß der Altenburg, und ist geprägt von Wiesengründen, Wasserläufen und Teichen – eine Umgebung, die Naturverbundenheit und Erholung direkt vor der Haustür ermöglicht

ohne-makler.net
Anbieter:
Angebot von Marc Großkopf

Anbieter kontaktieren