Wohnzimmerbereich
Wohnzimmerbereich
Eingang
Küche
Garten
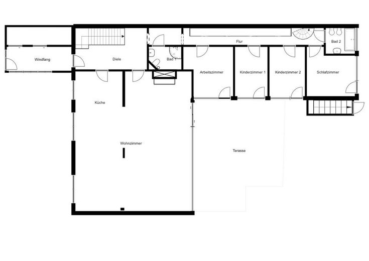
Grundriss EG
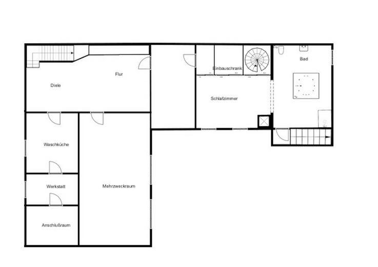
Grundriss Keller

Haus am See

Die vollständige Adresse erhalten Sie vom Anbieter
50769 Köln – Seeberg
Nordrhein-Westfalen
925.000 €
Kaufpreis
339 m²
Wohnfläche
6
Zimmer
TraumImmo-ID: 5MPM8TQ
Partner-ID: 402309
Partner-Objekt von: ohne-makler.net
Anbieter:
Angebot vom Eigentümer

Anbieter kontaktieren

Information

  • Typ: Reihenmittelhaus
  • Wohnfläche ca.: 339 m²
  • Bezugsfrei ab: Nach Vereinbarung
  • Zimmer: 6
KellerBarrierefreiGarten

  • Grundstücksfläche: 536.0
  • Baujahr: 1968
  • Heizart: FloorHeating
  • Brennart: FiringTypeDistrictHeating
  • Stockwerke: 1
  • Nutzfläche: 220.0
  • Badezimmer: 3.0

Kaufpreis & Kosten

Kaufpreis925.000 €
Provisionkeine Provision für Käufer

Über dieses Traum-Haus

Objektbeschreibung

Ein moderner Bungalow in L-Form, der
sich zum südlich gelegenen Garten hin
großzügig öffnet.
Dieser schöne Winkelbungalow befindet
sich in ruhiger Wohnlage am Ende einer
Sackgasse in Köln-Seeberg.


Ausstattung

An die 86 m2 grosse Wohnküche mit großem,
offenen Kamin aus Marmorstein grenzt die ca.
50 m2 große Terrasse.
Durch die bodentiefe Fensterfront, in Richtung
Sonne, ergibt sich ein Höchstmaß an Lichteinfall
und ein freier Blick von fast allen Zimmern in
den uneinsehbaren Garten.
Die hochwertige Wohnküche wird durch eine
neue moderne Kücheneinheit in L-Form
unterteilt. Ein weiteres Highlight ist das Badezimmer
mit anliegendem Elternschlafzimmer im
Untergeschoss zu nennen, das ebenfalls mit
einem Kamin aus Marmorstein ausgestattet
ist. Da das Objekt über Fernwärme beheizt wird, entfallen
etwa die jährliche Wartung oder Erneuerung der
Heizungsanlage, sodass hier Kosten gespart werden.
Außerdem verfügt das Haus über eine
Photovoltaikanlage auf dem Dach. Der Strom wird
eingespeist und erwirtschaftet ca. 100 €/mtl.
Des Weiteren verfügt das Haus über eine Garage.
Durch die ruhige und familienfreundliche Lage am
Rande einer interessanten Grossstadt lädt das schöne
Haus zum Wohlfühlen ein und bietet Familien ebenso
wie Paaren eine in Deutschland selten spektakuläre
Wohnerfahrung.


Lage

Lagebeschreibung

Obwohl nah an den großen Metropolen NRW’s
fühlt man sich das ganze Jahr wie in den Ferien!
• Aus dem Garten geht es direkt in einen großen
Park.
• Der Park geht über in ein Freizeit- und
Naherholungsgebiet mit großem See und
Strandbad.
• Obwohl mitten im Grünen, ist dieses Haus auch
am Autobahnzubringer und somit ist man in 10
Minuten in der Kölner Innenstadt und in 20
Minuten in der Düsseldorfer Innenstadt.
Außerdem ist man in weniger als 10 Minuten in
Leverkusen. Das Ruhrgebiet erreicht man in 45
Minuten.
• Supermärkte und ein großes Einkaufszentrum
sind fußläufig zu erreichen.

ohne-makler.net
Anbieter:
Angebot vom Eigentümer

Anbieter kontaktieren