| Kaufpreis | 498.000 € |
|---|---|
| Provision | keine Provision für Käufer |
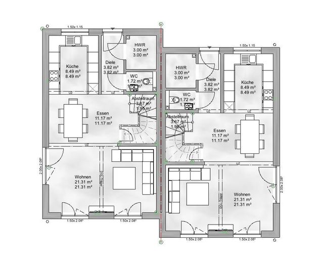
Insgesamt werden auf dem ca. 1580,00 m² großen Grundstück 2 Reihenhäuser und 1 Doppelhaus realisiert.
Hier steht eine Doppelhaushälfte mit Grundstück und Stellplätzen zum Verkauf.
Der Grundstückseigentümer hat die Baugenehmigung erhalten und möchte
nun dieses Grundstück bebauen und mit Wohnhaus verkaufen.
Von der Lebensplatz Projekte GmbH werden alle erforderlichen Bauleistungen erbracht.
Die Häuser werden in Holzbauweise mit entsprechender Wärmedämmung und Photovoltaikanlage erstellt.
Somit ist eine KfW-Förderung möglich.
Die Häuser überzeugen mit viel Platz, geringen Heizkosten und vielen Extras.
Folgende Leistungen sind im Kaufpreis enthalten:
Erdarbeiten für die Bodenplatte und das Herrichten der Außenanlagen
Alle Versorgungsleitungen für die Häuser
Sämtliche Entwässerungsleitungen
Pflaster für Wege, Terrassen und Aufstellflächen
Stauraum Trennwände auf den Terrassen
Einhausung der Müllbehälter
Stabgitterzaun entlang der Grundstücksgrenze
Oberboden mit Raseneinsaat
2x Außenstellplätze Stellplatz mit einer Wallbox
Haus in Holzbauweise mit Holzwolle (Dämmung)
Wärmepumpe für Heizung und Warmwasser
Zentrale Lüftungsanlage mit Wärmerückgewinnung
Fußbodenheizung
Bodenbeläge nach Wahl
Photovoltaikanlage ca. 5 KwP und Batteriespeicher ca. 5 Kwh
Kunststofffenster mit elektrischen Rollläden
Hochwertige Aluminium Haustür
Massive Treppe mit Vollholzstufen (Eche)
Baunebenkosten und Energieberater
Nicht enthalten sind die Kaufnebenkosten und die Kosten der Teilungserklärung.
Die Ortsgemeinde Siefersheim liegt im westlichen Teil von Rheinhessen, im Landkreis Alzey-Worms, und gehört zur Verbandsgemeinde Wöllstein in Rheinland-Pfalz. Der Weinort befindet sich rund 10 km westlich von Alzey und etwa 15 km östlich von Bad Kreuznach, eingebettet in eine hügelige Kulturlandschaft zwischen Rebhängen, Wiesen und Naturschutzgebieten.
Diese Lage macht den Ort auch touristisch attraktiv – so führt beispielsweise die Hiwweltour „Heideblick“ durch die Gemarkung.
Verkehrstechnisch ist Siefersheim über die nahegelegene A61 gut angebunden. Regionale Buslinien sowie ein Bürgerbus sorgen für die Anbindung an das Umland und die Verbandsgemeindeverwaltung in Wöllstein.
In Wöllstein (ca. 4 km entfernt) finden Sie eine gute Auswahl an Einkaufsmöglichkeiten: REWE, ALDI, Netto, eine Drogerie, mehrere Bäckereien und Metzgereien. Außerdem stehen Ihnen Ärzte, Apotheken sowie verschiedene kleinere Dienstleister zur Verfügung.