Einfahrt
Garten
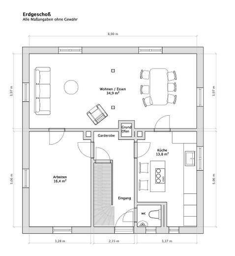
Essen
Wohnzimmer
Grundofen
Küche
Küche
Küche
Arbeiten
Arbeiten
Flur Oben
Bad
Bad
Bad
Bad
Bad
Eltern
Kind1
Kind1
Kind2
Kind2
Dachboden
Dachboden
Heizung
Keller
Keller
Keller
Keller
Hobby
Hobby
Grundriss
Grundriss
Grundriss
Grundriss
Flug
Flug
Flug
Flug
Flug
Carport
Terrasse
Terrasse
Garten
Garten
Lage
Garten
Aussicht
Garten
Lage

Modernisiertes freistehendes Familiendomizil in Aussichtslage mit großem Garten

Die vollständige Adresse erhalten Sie vom Anbieter
71522 Backnang – Backnang
Baden-Württemberg
769.000 €
Kaufpreis
165 m²
Wohnfläche
6
Zimmer
TraumImmo-ID: 5NSHWSH
Partner-ID: 429040
Partner-Objekt von: ohne-makler.net
Anbieter:
Privat von Schakenbos

Anbieter kontaktieren

Information

  • Typ: Einfamilienhaus
  • Wohnfläche ca.: 165 m²
  • Bezugsfrei ab: sofort
  • Zimmer: 6
KellerGäste-WCKücheGarten

  • Grundstücksfläche: 675.0
  • Baujahr: 1930
  • Zustand: Modernized
  • Heizart: CentralHeating
  • Brennart: Electricity
  • Stockwerke: 2
  • Nutzfläche: 260.0
  • Badezimmer: 1.0

Kaufpreis & Kosten

Kaufpreis769.000 €
Provisionkeine Provision für Käufer

Über dieses Traum-Haus

Objektbeschreibung

Mitten in Backnang. Inmitten von Grün. Ein-Familien-Sitz mit Wärmepumpe.

Zum Verkauf steht ein echtes Familiendomizil in guter Wohnlage von Backnang. Baujahr 1930 – im Kern aufwändig renoviert mit verbleibendem Freiraum für individuelles Umbauen und Wohnen. Haustechnisch mit einer Erdwärmepumpe und guter WDVS-Dämmung auf der Höhe der Zeit (Energieverbrauch A). Bei zusätzlichem Bedarf an thermischer Behaglichkeit lässt sich ein moderner Grundofen mit Holz einheizen. Das Ganze steht in einem gewachsenen Wohngebiet in einer verkehrsberuhigten Spielstraße.

Kernsanierung, Dach, Fenster, WDVS im Jahr 2006 und 2007, Heizung im Jahr 2018, der Carport mit Fahrradschuppen und PV wurde im Jahr 2016 errichtet.

Der großzügige, offen gestaltete Ess‑Wohnbereich ist das Herzstück des Hauses. Bodentiefe Fenster nach Süden lassen viel Tageslicht hinein und eröffnen einen schönen Blick in den Garten. Eine hochwertige Einbauküche bietet ideale Bedingungen für den Familienalltag und ambitioniertes Kochen und fügt sich stimmig in das Gesamtbild ein. Die persönlichen Rückzugsbereiche liegen im Obergeschoss: zwei Kinderzimmer, ein Elternschlafzimmer und ein modernes, helles Tageslichtbad.
Das Design-Bad ist familientauglich und modern. Nutzer haben die Wahl zwischen einer geräumigen Runddusche und liegekomfortabler Wanne. Der Raum ist mit moderner Ablufttechnik ausgestattet.

Im Keller befindet sich ein großzügiger Hobbyraum, eine funktionale Waschküche sowie ein Gewölbekeller, der sich je nach Bedarf etwa als Lager- oder Weinkeller nutzen lässt. Der Dachboden bietet zusätzliches Potenzial: Er ist so dimensioniert, dass ein Ausbau zu weiterer Wohnfläche gut realisierbar ist (vorbehaltlich behördlicher Genehmigungen und technischer Prüfung). Damit eignet sich das Haus besonders für Käufer, die neben sofort nutzbarer Wohnfläche auch langfristige Entwicklungs-möglichkeiten schätzen.

Die Beheizung erfolgt über eine Erdwärme-Wärmepumpe, die effizient und umweltfreundlich arbeitet und die laufenden Energiekosten reduziert.
Ergänzend sorgt ein handwerklich erstellter Grundofen für behagliche Strahlungswärme und das sichtbare Feuer erzeugt eine besondere Wohnatmosphäre in der 
kühleren Jahreszeit.

Die einladende Terrasse vor dem Haus lädt zum Grillen, Feiern und Entspannen ein und bildet in den Sommermonaten das Herzstück des Lebens im Freien. Vom Freisitz mit Sonnensegel erschließt eine Natursteintreppe den wunderbaren Naturgarten.

Draußen bietet ein Carport mit Wallbox, Holzlager sowie ein separater Fahrradschuppen komfortable und witterungsgeschützte Abstellmöglichkeiten für Fahrzeuge und Fahrräder.
Auf dem Dach des Carports wurde 2020 ein PV-Balkonkraftwerk installiert, mit dem selbst Strom erzeugt werden kann.


Ausstattung

- Freistehendes Einfamilienhaus, Baujahr 1930, modernisiert
- Großer, angelegter Garten mit mehreren Ebenen, unverbaubare Aussichtslage
- Liegt an einer verkehrsberuhigten Spielstraße (Sackgasse)
- Terrasse zum Grillen und Feiern
- Carport mit Wallbox und Fahrradschuppen
- Bahnhof und Stadtmitte fußläufig in wenigen Minuten erreichbar
- Energetisch saniert
- Zusätzliche Heizquelle: handwerklich erstellter Grundofen
- sofort bezugsfertig


Lage

Lagebeschreibung

Die Immobilie befindet sich in südwestlicher Stadtrandlage von Backnang, der viertgrößten Stadt im Rems-Murr-Kreis mit rund 38.000 Einwohnern. Backnang liegt verkehrsgünstig etwa 30 Kilometer nordöstlich von Stuttgart. Gleichzeitig ist der Naturpark Schwäbisch-Fränkischer Wald nur wenige Kilometer entfernt. Backnang hat als Oberzentrum alle Schulformen und Einkaufsmöglichkeiten.

Er­reichbarkeit:
Stuttgart-Zentr­um: ca. 30-40 min (S-Bahn/RB/Pkw), 
Flughafen Stuttgart: ca. 60 min (S-Bahn)
, Heilbronn: ca. 45 min (Pkw)
, Ludwigsburg: ca. 30 Minuten (S-Bahn/Pkw)

ohne-makler.net
Anbieter:
Privat von Schakenbos

Anbieter kontaktieren