| Kaufpreis | 490.000 € |
|---|---|
| Provision | keine Provision für Käufer |
Diese großzügige und Klimatisierte 5,5-Zimmer Wohnung bietet modernes und energieeffizientes Wohnen Im Sommer wie Winter angenehm mit Weitblick in Bochum-Riemke. Das Gebäude mit Lüftungsanlage mit Wärmerückgewinnung überzeugt durch hochwertige Bauweise, durchdachte Grundrisse und ein zukunftssicheres Energiekonzept nach KfW-40-Plus-Standard.
Die Wohnung eignet sich ideal für Familien, Paare oder anspruchsvolle Eigennutzer, die Wert auf Wohnqualität, Ruhe und niedrige Energiekosten legen.
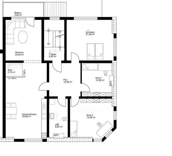
Wohnung & Raumaufteilung
•Großzügiger Wohn- und Essbereich mit Zugang zum West-Balkon
•Drei gut geschnittene Zimmer (Schlaf-, Kinder- oder Arbeitszimmer)
•Modernes Tageslichtbad mit bodentiefer Dusche
•Praktischer Abstellraum
•Kellerraum vorhanden
Die Dachgeschosslage sorgt für viel Tageslicht, ein angenehmes Wohngefühl und zusätzliche Ruhe.
Energie & Nachhaltigkeit
•Energieeffizienzklasse A+
•Endenergiebedarf: 25 kWh/(m²·a)
•Wesentlicher Energieträger: Solar
•Sehr niedrige laufende Energiekosten
•Zukunftssicheres und wertstabiles Wohnkonzept
Ausstattung & Bauqualität
•KfW-40-Plus-Energieeffizienz
•Luft-Wasser-Wärmepumpe
•Fußbodenheizung in allen Räumen
•Photovoltaikanlage mit Stromspeicher
•Lüftungsanlage mit Wärmerückgewinnung
•3-fach verglaste Fenster
•Elektrische Rollläden
•Massivbauweise
•Video-Gegensprechanlage
•LAN-Anschluss in allen Wohnräumen
Die Warmwasserversorgung erfolgt über Wärmepumpe und Solartechnik.
Fertigstellung & Kauf
•Fertigstellung geplant: Oktober 2026
•Erwerb direkt vom Eigentümer
•Keine Maklerprovision
Besichtigung & Kontakt
Bei Interesse oder Fragen freuen wir uns über Ihre Kontaktaufnahme.
Besichtigungen sind nach Absprache möglich.
Lage
Die Wohnung befindet sich in Bochum-Riemke,
Infrastruktur:
•Einkaufsmöglichkeiten (Hannibal-Center) fußläufig erreichbar
•Ärzte, Apotheken, Schulen und Kindergärten in der Nähe
•Gute Anbindung an die U35 (Bochum-Mitte / Ruhr-Universität)
•Schnelle Erreichbarkeit der A40 und A43
•Grünflächen und Parks im Umfeld
Die Lage verbindet städtische Infrastruktur mit einem ruhigen Wohnumfeld.