Wohnbereich
Bad
Außenansicht
Wohnbereich
Arbeitsbereich
Küche
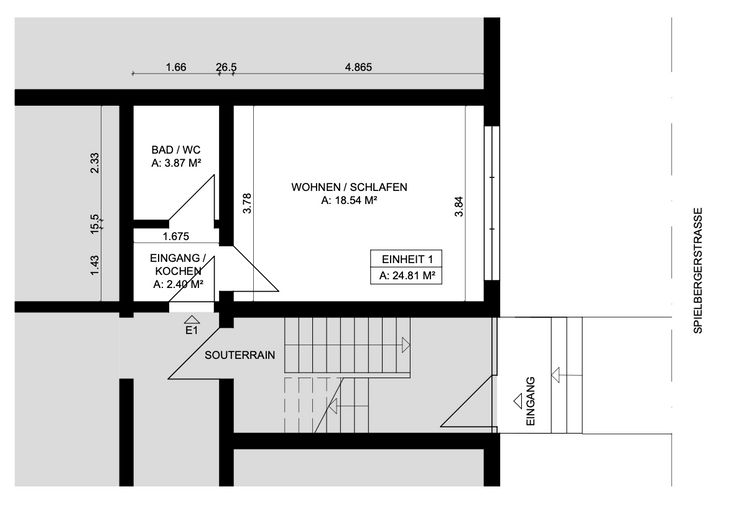
Grundriss

möblierte ETW Zuffenhausen

Spielbergerstraße 32
70435 Stuttgart – Zuffenhausen
Baden-Württemberg
124.500 €
Kaufpreis
25 m²
Wohnfläche
1
Zimmer
TraumImmo-ID: 6DAX6E2
Partner-ID: 387493
Partner-Objekt von: ohne-makler.net
Anbieter:
Angebot von Herr Fröhlich

Anbieter kontaktieren

Information

  • Typ: Etagenwohnung
  • Etage: -1
  • Wohnfläche ca.: 25 m²
  • Bezugsfrei ab: sofort
  • Zimmer: 1
KellerKüche

  • Baujahr: 1975
  • Heizart: CentralHeating
  • Brennart: Oil
  • Stockwerke: 3
  • Badezimmer: 1.0

Kaufpreis & Kosten

Kaufpreis124.500 €
Provisionkeine Provision für Käufer

Über dieses Traum-Apartment

Objektbeschreibung

Die zum Verkauf stehende 1-Zimmer-Souterrainwohnung befindet sich in einem gepflegten Mehrfamilienhaus aus dem Baujahr 1975 mit insgesamt acht Wohneinheiten. Das Gebäude wird über eine Ölheizung aus dem Jahr 2006 beheizt.
Die Wohnung liegt auf derselben Ebene wie der Kellerbereich, bietet jedoch durch ein nach Süden ausgerichtetes Fensterband eine angenehme natürliche Belichtung. Insbesondere zur Mittagszeit gelangt ausreichend Tageslicht in die Wohnräume und sorgt für eine freundliche Atmosphäre.
Die Einheit befindet sich in einem baujahrtypischen Zustand. Die Fenster wurden vor einigen Jahren erneuert und verfügen über doppeltverglaste Kunststoffrahmen. Der funktionale Grundriss umfasst einen Wohn- und Schlafbereich, eine direkt hinter der Eingangstür platzierte Küchenzeile sowie ein vergleichsweise großzügiges Badezimmer mit Waschbecken, WC und Badewanne.
Die Wohnung ist derzeit nicht vermietet und bietet somit sowohl Eigennutzern als auch Kapitalanlegern flexible Nutzungsmöglichkeiten. Sie wird möbliert verkauft; die vorhandene Möblierung ist bereits im Kaufpreis enthalten.
Dank des kompakten Zuschnitts, der vorhandenen Möblierung und der guten Belichtungsverhältnisse eignet sich die Wohnung ideal für Singles, Pendler oder zur kurzfristigen Vermietung. Insgesamt stellt diese Immobilie eine interessante Gelegenheit für Käufer dar, die eine solide und vielseitig nutzbare Einheit erwerben möchten.


Ausstattung

Die Wohnung befindet sich in einem baujahrtypischen Zustand. Die Fenster wurden vor einigen Jahren ausgetauscht und sind mittlerweile doppeltverglaste Kunststofffenster.

Die Küchenzeile, die sich direkt hinter der Eingangstür befindet, ist mit einem Backofen, einem Herd sowie einem Spülbecken ausgestattet. Das angrenzende Badezimmer ist vergleichsweise großzügig und verfügt über ein Waschbecken, ein WC sowie eine Badewanne.

Die Wohnung ist derzeit möbliert, und die Möbel sind bereits im Angebotspreis enthalten.


Lage

Lagebeschreibung

Die Immobilie in der Spielbergerstraße 32 befindet sich in attraktiver Wohnlage im Stuttgarter Stadtteil Zuffenhausen, einem wirtschaftlich starken und etablierten Bezirk im Norden der Landeshauptstadt. Das Umfeld ist geprägt von gepflegten Wohnhäusern und einer ruhigen, gewachsenen Nachbarschaft.
Zuffenhausen überzeugt durch seine hervorragende Verkehrsanbindung. Stadtbahn- und S-Bahn-Stationen sind schnell erreichbar und ermöglichen eine direkte Verbindung in die Innenstadt sowie in die umliegenden Wirtschaftsregionen. Über die B10 und die A81 besteht zudem eine sehr gute Anbindung an das überregionale Straßennetz.

Einkaufsmöglichkeiten für den täglichen Bedarf, Ärzte, Apotheken und gastronomische Angebote befinden sich in unmittelbarer Nähe. Besonders attraktiv ist die Nähe zu großen Arbeitgebern wie dem Porsche-Werk und weiteren Industrie- und Technologieunternehmen, was für eine dauerhaft hohe Wohnraumnachfrage sorgt.

Die Spielbergerstraße selbst ist eine ruhige Wohnstraße mit geringem Durchgangsverkehr und bietet ein angenehmes Wohnumfeld. Insgesamt vereint die Lage urbanes Wohnen, hervorragende Infrastruktur und nachhaltige Vermietbarkeit – ideal für Eigennutzer und Kapitalanleger.

ohne-makler.net
Anbieter:
Angebot von Herr Fröhlich

Anbieter kontaktieren