Grundriss OG
Visualisierung - moderner Stil
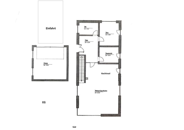
Grundriss EG

Rohbau in guter Wohnlage von Hof

Die vollständige Adresse erhalten Sie vom Anbieter
95032 Hof – Hof
Bayern
379.000 €
Kaufpreis
237 m²
Wohnfläche
7
Zimmer
TraumImmo-ID: 6EPYMB2
Partner-ID: 422703
Partner-Objekt von: ohne-makler.net
Anbieter:
Privat vom Eigentümer

Anbieter kontaktieren

Information

  • Typ: Einfamilienhaus
  • Wohnfläche ca.: 237 m²
  • Bezugsfrei ab: Nach Vereinbarung
  • Zimmer: 7
Gäste-WCBalkonGarten

  • Grundstücksfläche: 1272.0
  • Zustand: NeedOfRenovation
  • Heizart: FloorHeating
  • Brennart: Geothermal
  • Stockwerke: 2
  • Badezimmer: 3.0

Kaufpreis & Kosten

Kaufpreis379.000 €
Provisionkeine Provision für Käufer

Über dieses Traum-Haus

Objektbeschreibung

Angeboten wird ein Rohbau mit bereits fertiggestellter Bodenplatte, gemauerten Ziegelwänden mit integrierter Dämmung sowie einem fertig ausgeführten Flachdach. Die Bauelemente sind bereits eingebaut. Für die Fertigstellung sind unter anderem Arbeiten an der Attika, Außenputz, Abdichtungen sowie der komplette Innenausbau erforderlich. Ideal für Käufer, die eigene Vorstellungen umsetzen möchten und ein Projekt mit Gestaltungsspielraum suchen.


Ausstattung

Rohbau mit fertiggestellter Bodenplatte, gemauerten Ziegelwänden mit integrierter Dämmung sowie ausgeführtem Flachdach. Fenster und Türen sind bereits eingebaut. Grundputz und Rohinstallationen für Elektro und Sanitär vorhanden. Attika, Außenputz, Abdichtungen und der komplette Innenausbau stehen noch aus.


Lage

Lagebeschreibung

Das Haus liegt zwischen bestehender Wohnbebauung und bietet dennoch eine naturnahe Umgebung mit offenem Charakter. Die südliche Ausrichtung sorgt für eine optimale Belichtung und einen angenehmen, sonnigen Grundstücksverlauf.

ohne-makler.net
Anbieter:
Privat vom Eigentümer

Anbieter kontaktieren